Prosimy, odblokuj wyświetlanie reklam w naszym serwisie, są one związane z rynkiem nieruchomości.
To dzięki nim masz darmowy dostęp do naszych treści.

Z pozdrowieniami zespół KRN.pl :)


telefon

wiadomość

mapa

Działki, Pszenno

Działki na sprzedaż Pszenno (woj. Dolnośląskie)

Lokalizacja:

Pszenno, , ul.

Powierzchnia:

5300 m2

Cena:

1 520 500 zł

Dane szczegółowe

lokalizacja:
Dolnośląskie, Pszenno
typ obiektu:
działka na sprzedaż
cena:
1 520 500 zł
powierzchnia:
5300 m2
numer ogłoszenia:
3108
data dodania:
21-10-2022
data modyfikacji:
21-10-2022
jakość wypełnienia oferty:
86%

Szczegóły oferty

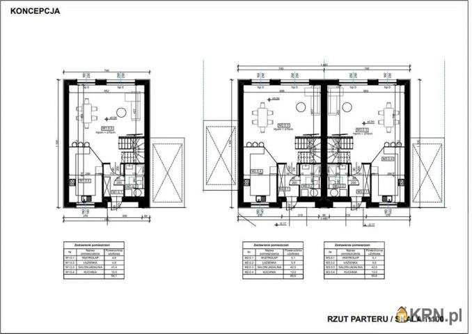
Do sprzedania działka budowlana z pozwoleniem na budowę oraz projektem osiedla zamkniętego w skład, którego wchodzi 7 budynków dwulokalowych w zabudowie bliźniaczej oraz 2 budynki jednorodzinne wszystko zaledwie 4 km od Świdnicy i 40 km od Wrocławia przy drodze 35.
Posiadamy pełną niezbędna dokumentacje, wszystkie decyzje są ostateczne i prawomocne. W skład nieruchomości wchodzą dwie działki budowlane o łącznej wielkości 0,53 ha
Atrakcyjna lokalizacja
Zaledwie 5 km od centrum Świdnicy w bliskiej okolicy Przedszkole, Szkoła, Przechodnia lekarska, przechodnia weterynaryjna oraz Sklepy, bardzo dobre połączenie z Wrocławiem oraz ze Świdnicą.
Projekt
Projekt przewiduje budowę osiedla zamkniętego 14 lokali w zabudowie bliźniaczej o pow. 126m2 każdy oraz dwóch domów jednorodzinnych wolnostojących o pow. 131 m2 w sumie PUM- 2026 m2 Każdy budynek został zaprojektowany tak by ułatwić klientom przyszłe aranżacje. Wydana została decyzja o pozwolenie na budowę, wykonane zostały badanie geologiczne.
Projekt jest opracowaniem autorskim, zaprojektowanym tak by zoptymalizować koszty budowy nie tracąc przy tym na estetyce oraz rozkładzie pomieszczeń.
W najbliższej okolicy działki powstają nowe osiedle z zabudową wolnostojącą jednorodzinną.
Cena netto za m2 działki - 285 zł na całość wystawiana jest faktura VAT
Treść niniejszego ogłoszenia nie stanowi oferty handlowej w rozumieniu Kodeksu Cywilnego.
Oferta wysłana z programu IMO dla biur nieruchomości

Kontakt do agenta:
Wojciech Magin
Zobacz kontakt508384481
Zobacz kontakt508384481
Zobacz kontaktw.magin@in-house.pl

Oceń ofertę


9.99


1195 wydruk błąd schowek

Ostatnio przeglądane

 

 

 

pobieranie

Pobierz wzór umowy

Umowa przedwstępna sprzedaży

wybierz plik do pobrania
doc pdf

 

 

Deweloperzy

);