Prosimy, odblokuj wyświetlanie reklam w naszym serwisie, są one związane z rynkiem nieruchomości.
To dzięki nim masz darmowy dostęp do naszych treści.

Z pozdrowieniami zespół KRN.pl :)


telefon

wiadomość

mapa

Dom, Zabierzów, ul. Krakowska

Dom na sprzedaż Zabierzów (woj. Małopolskie), ul. Krakowska

Lokalizacja:

Zabierzów, , ul. Krakowska

Powierzchnia:

161.73 m2

Cena:

1 150 000 zł

Dane szczegółowe

lokalizacja:
Małopolskie, Zabierzów, ul. Krakowska
typ obiektu:
dom na sprzedaż
cena:
1 150 000 zł
powierzchnia:
161.73 m2
media:
gaz
numer ogłoszenia:
BS4-DS-309818-39
data dodania:
07-03-2026
data modyfikacji:
07-03-2026
jakość wypełnienia oferty:
100%

Szczegóły oferty

|
Na sprzedaż trzy domy w zabudowie bliźniaczej na nowo powstałym osiedlu W Zabierzowie.
Lokalizacja bardzo blisko granicy Krakowa z bardzo dobrą komunikacją. Liczne linie autobusowe, stacja PKP 1,7km.
W pobliżu Tenczyński Park Krajobrazowy, rezerwat przyrody Skały Kmity, szkoły, przedszkola, żłobki. Sklepy Biedronka, Lidl, Lewiatan.
Każda połowa domu ma działkę około 300m2. Z przodu podjazd a z tyłu ogródek z tarasem.
Dom składa się z 3 poziomów:
1) piwnica z garażem dwustanowiskowym i pomieszczeniami technicznymi 59m2
2) parteru 59m2
- salon z jadalnią 34,25m2
- otwartej kuchni
- WC 2,15m2
-wiatrołap i komunikacja
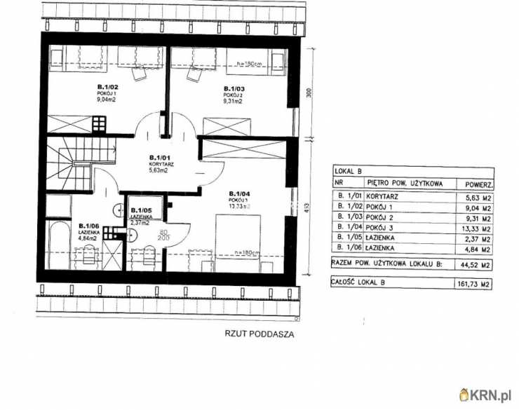
3) poddasze 44,5m2
- 3 pokoje 13m2, 9m2, 9m2, w tym jeden z łazienką lub garderobą
- łazienki
5m2
-korytarz
Domy sprzedawane w stanie developerskim wybudowane z pustaka ceramicznego, ocieplonego 20cm styropianem. Okna PCV trzy szybowe, okna połaciowe Fakro. Kryty blachą Ruukki.
Zrobiona instalacja pod pompę ciepła i klimatyzacje.
Ogrzewanie gazowe piecem dwufunkcyjnym, wodociągi i kanalizacja miejska.
Kontakt:
Michał + Zobacz kontakt48 518 810 080
::DODATKOWE INFORMACJE |
Prąd: jest |
Gaz: tak - miejski |
Woda: piec gazowy dwufunkcyjny |
Dojazd: asfaltowa/kostka |
Otoczenie: działki zabudowane |
Ogrzewanie: C.O. GAZOWE |
Kanalizacja: tak |
Internet: TAK |
Komunikacja publ.: bus, autobus miejski |
Drzwi antywłamaniowe: TAK |
Okna: PCV 3 szyby, ciepły montaż |
Instalacje: dobre |
Balkon: Barierka |
Liczba balkonów: 2 |
Tarasy: taras duży |
Liczba tarasów: 1 |
Powierzchnia ogródka [m2]: 100 |
Wymiary działki [m]: 13x24 |
Zagosp. działki: zagospodarowana |
Ukształtowanie działki: pochyła |
Kształt działki: prostokąt |
Rodzaj domu: bliźniak |
Stan wybudowania: Stan deweloperski |
Typ elewacji: baranek |
Podst. materiał budowlany: cegła, pustak ceramiczny poroterm |
Pokrycie dachu: blacha panelowa |
Pozwolenie na użytkowanie: tak |
Powierzchnia użytkowa [m2]: 102,8100 |
Stan budynku: do wykończenia |
Podpiwniczenie: tak |
Garaż: dwustanowiskowy |
Ogrodzenie działki: brak |
Rok budowy: 2026 |
Liczba pokoi: 4 |
Wysokość pomieszczeń [m]: 2,7000 |
Liczba sypialni: 3 |
Powierzchnia pokoi [m2]: 34m2, 13m2, 9m2,9m2
|
Podłogi pokoi: wylewka |
Ściany pokoi: gładzie gipsowe |
Wystawa okien - pokoje : Pn, Pd, Wsch, Zach |
Typ kuchni: jasna z oknem |
Rodzaj kuchni: otwarta |
Powierzchnia kuchni [m2]: 8,12 |
Podłoga kuchni: wylewka |
Wystawa okien - kuchnia: Pd |
Typ łazienki: razem z wc |
Liczba łazienek: 2 |
Powierzchnia łazienki [m2]: 8 |
Glazura łazienki: bez glazury |
Podłoga łazienki: wylewka |
Wyposażenie łazienki: WC |
Ściany łazienki: tynk |
Liczba WC: 1 |
Powierzchnia WC: 2,15 |
Glazura WC: bez glazury |
Podłoga WC: wylewka |
Ściany WC: tynk |
Liczba przedpokoi: 2 |
Powierzchnia przedpokoi [m2]: 10 |
Podłoga przedpokoi: wylewka |
Ściany przedpokoi: gładzie gipsowe |
::LINK DO STRONY |
sadurscy.pl/offer/BS4-DS-309818
::KONTAKT DO AGENTA |
Michał Dzięcioł |
+ Zobacz kontakt48 518-810-080 |
Zobacz kontaktmichal@sadurscy.pl
::DANE BIURA |
Oddział BS4, Krowodrza |
Kołowa 5/3 |
30-134 Kraków |
Zobacz kontakt12 633-90-20
Pośrednik odpowiedzialny zawodowo za wykonanie umowy pośrednictwa: Dariusz Sadurski (licencja nr: 803)
|
Oferta wysłana z systemu Galactica Virgo
Ogrzewanie: Gazowe
Materiał: Cegła

Kontakt do agenta:
Michał Dzięcioł
Zobacz kontaktmichal@sadurscy.pl
+ Zobacz kontakt48 518-810-080

Oceń ofertę


0


8 wydruk błąd schowek

Ostatnio przeglądane

 

 

 

pobieranie

Pobierz wzór umowy

Umowa przedwstępna sprzedaży

wybierz plik do pobrania
doc pdf

 

 

Deweloperzy

);