Prosimy, odblokuj wyświetlanie reklam w naszym serwisie, są one związane z rynkiem nieruchomości.
To dzięki nim masz darmowy dostęp do naszych treści.

Z pozdrowieniami zespół KRN.pl :)


telefon

wiadomość

mapa

Dom, Narama

Dom na sprzedaż Narama (woj. Małopolskie)

Lokalizacja:

Narama, , ul.

Powierzchnia:

110.70 m2

Cena:

900 000 zł

Dane szczegółowe

lokalizacja:
Małopolskie, Narama
typ obiektu:
dom na sprzedaż
cena:
900 000 zł
powierzchnia:
110.70 m2
numer ogłoszenia:
PAC-DS-8586-5
data dodania:
19-03-2026
data modyfikacji:
19-03-2026
jakość wypełnienia oferty:
100%

Szczegóły oferty


0% PROWIZJI OD KUPUJĄCEGO!!!
Do sprzedania
wolnostojący jednorodzinny dom o pow. użytkowej
102,28m2, pow. całkowitej 110,7m2
usytuowany
w miejscowości
Narama, gm. Iwanowice.
Nieruchomość położona
na nowo budowanym, zamkniętym osiedlu
składającym się z trzynastu domów wolnostojących.
Budynek o nowoczesnej bryle
z przynależnym ogródkiem o pow. o
4 arów,
tarasem
oraz miejscami postojowymi.

Media:
prąd, woda, szambo, internet.
Dom sprzedawany w stanie deweloperskim obejmującym:

podstawowy materiał budowlany: pustak,
więźba dachowa drewniana,
pokrycie dachu: blacha,
okna PCV - energooszczędne,
tynki wewnętrzne,
pompa ciepła,
taras,
balkony francuskie,
osiedle ogrodzone,
videodomofon,
instalacje: wod-kan, elektryczna,
światłowód. Rozkład pomieszczeń:

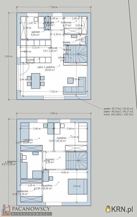
parter:
wiatrołap (2,65m2), kotłownia (4,37m2), toaleta (2,4m2), schody (2m2), salon + jadalnia (28,81m2), kuchnia (7,73m2), schowek (2,16m2), gabinet (6,41m2) -
razem 55,77m2
piętro:
korytarz (6,38m2), sypialnia (10,24m2), sypialnia (10,24m2), łazienka (6,28m2), sypialnia (15,66m2), garderoba (5,38m2) -
razem 46,51m2
strych

LOKALIZACJA
Nieruchomość położona w cichej i spokojnej okolicy wśród luźnej zabudowy jednorodzinnej oraz działek niezabudowanych.
W miejscowości niezbędna infrastruktura - w promieniu 1 km:
sklepy spożywcze, paczkomat, fryzjer, szkoła podstawowa, boisko sportowe, kościół, kwiaciarnia, warsztat samochodowy, anglojęzyczne przedszkole.
Przystanek MPK 500m. W okolicy liczne tereny zielone.

Planowany odbiór budynków: II/III KW 2026r.

Cena: 900.000 zł brutto.

Kupujący nie płaci 2% podatku PCC. Serdecznie polecamy i zachęcamy do bezpłatnej prezentacji !!! Więcej podobnych ofert na naszej stronie www.pacanowscy.pl
Kontakt do opiekuna oferty:
Zobacz kontakt500-813-213 Tomasz Turek Pośrednik odpowiedzialny zawodowo za wykonanie umowy pośrednictwa: Mieszko Pacanowski (licencja nr: 21215)
Oferta wysłana z systemu Galactica Virgo
Ogrzewanie: POMPA CIEPLA
Materiał: Pustak

Kontakt do agenta:
Tomasz Turek
Zobacz kontakttomasz@pacanowscy.pl
Zobacz kontakt500-813-213
Zobacz kontakt500-813-213

Oceń ofertę


0


168 wydruk błąd schowek

Ostatnio przeglądane

 

 

 

pobieranie

Pobierz wzór umowy

Umowa przedwstępna sprzedaży

wybierz plik do pobrania
doc pdf

 

 

Deweloperzy

);