Prosimy, odblokuj wyświetlanie reklam w naszym serwisie, są one związane z rynkiem nieruchomości.
To dzięki nim masz darmowy dostęp do naszych treści.

Z pozdrowieniami zespół KRN.pl :)


telefon

wiadomość

mapa

Dom, Zabierzów, ul. Krakowska

Dom na sprzedaż Zabierzów (woj. Małopolskie), ul. Krakowska

Lokalizacja:

Zabierzów, , ul. Krakowska

Powierzchnia:

104.58 m2

Cena:

869 000 zł

Dane szczegółowe

lokalizacja:
Małopolskie, Zabierzów, ul. Krakowska
typ obiektu:
dom na sprzedaż
cena:
869 000 zł
powierzchnia:
104.58 m2
numer ogłoszenia:
BS2-DS-299169-15
data dodania:
14-09-2024
data modyfikacji:
14-09-2024
jakość wypełnienia oferty:
100%

Szczegóły oferty



Bracia Sadurscy to oficjalny przedstawiciel handlowy dewelopera - kupując z nami nie płacisz prowizji i ukrytych kosztów.

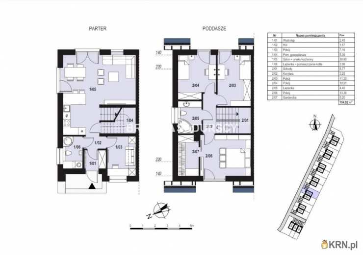
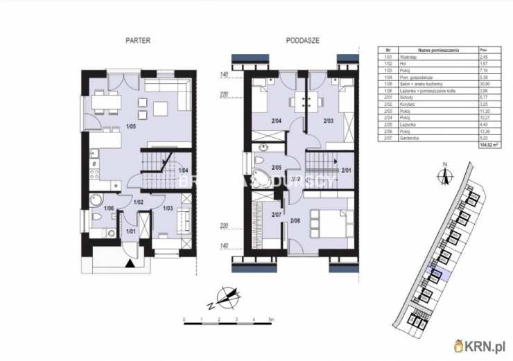
ZABIERZÓW - NOWOCZESNE OSIEDLE DOMÓW JEDNORODZINNYCH W ZABUDOWIE BLIŹNIACZEJ I SZEREGOWEJ

Prezentowana oferta to nowoczesne i funkcjonalne domy położone na działkach od 185 m2 do 380 m2.
Osiedle,
składa się z 12 domów w zabudowie bliźniaczej oraz 3 domów w zabudowie szeregowej, o klasycznej architekturze, idealnie wpisującej się w zabudowę w jurze Krakowsko-Częstochowskiej.
Domy 4-pokojowe, parterowe z użytkowym poddaszem, podzielone na strefę dzienną na parterze i nocną na piętrze. Każdy dom na terenie posesji posiada dwa naziemne miejsca postojowe. Inwestycja wykonana w wysokiej jakości materiałów budowlanych z dbałością o każdy szczegół. Domy oddawanie w wstanie deweloperskim. Teren wokół inwestycji ogrodzony i zagospodarowany.
Osiedle usytuowane w otoczeniu zieleni, a jednocześnie w miejscu dobrze skomunikowanym z miastem. W pobliżu tereny rekreacyjne, placówki edukacyjne, sklepy, punkt komunikacyjny.
Inwestycja z pozwoleniem na użytkowanie.
Zakończenie budowy listopad 2024roku.

POLECAM! Marek Popiel + Zobacz kontakt48 518 967 677
e-mail: Zobacz kontaktmarek@sadurscy.pl
::DODATKOWE INFORMACJE
Kategoria oferty: Mieszkania dla rodzin z dziećmi Prąd: jest Gaz: jest Woda: jest Dojazd: asfalt Otoczenie: zabudowa jednorodzinna Ogrzewanie: centralne Linie telefoniczne: TAK Internet: TAK Teren ogrodzony: TAK Okna: PCV Instalacje: nowe Zagosp. działki: zagospodarowana Ukształtowanie działki: płaska Rodzaj domu: bliźniak Stan wybudowania: Stan deweloperski Typ elewacji: tynk zwykły Podst. materiał budowlany: pustak Pokrycie dachu: dachówka ceramiczna Powierzchnia użytkowa [m2]: 104,5800 Stan budynku: do wykończenia Podpiwniczenie: nie Garaż: miejsce postojowe Ogrodzenie działki: częściowo ogrodzona Rok budowy: 2024 Liczba pokoi: 4 Liczba sypialni: 4 Podłogi pokoi: wylewka betonowa Ściany pokoi: tynk Typ kuchni: aneks kuchenny - połączony z salonem Rodzaj kuchni: aneks kuchenny połączony z jadalnią i salonem Podłoga kuchni: wylewka Liczba łazienek: 2
::LINK DO STRONY
https://sadurscy.pl/offer/BS2-DS-299169
::KONTAKT DO AGENTA
Marek Popiela + Zobacz kontakt48 518-967-677 Zobacz kontaktmarek@sadurscy.pl
::DANE BIURA
Oddział BS2, Rynek Pierwotny Królewska 67 30-081 Kraków Zobacz kontakt12 630-90-45
--------------------------
::GRATIS | Nasza prowizja zawiera: koszt przedwstępnej notarialnej umowy sprzedaży nieruchomości z rynku wtórnego. ::GWARANCJA | Gwarancja zwrotu zadatku. Więcej informacji na sadurscy.pl/zwrot-zadatku/

Ogrzewanie: CENTRALNE
Materiał: Pustak

Kontakt do agenta:
Marek Popiela
Zobacz kontaktmarek@sadurscy.pl
+ Zobacz kontakt48 518-967-677

Oceń ofertę


3.4


500 wydruk błąd schowek

Ostatnio przeglądane

 

 

 

pobieranie

Pobierz wzór umowy

Umowa przedwstępna sprzedaży

wybierz plik do pobrania
doc pdf

 

 

Deweloperzy

);