Prosimy, odblokuj wyświetlanie reklam w naszym serwisie, są one związane z rynkiem nieruchomości.
To dzięki nim masz darmowy dostęp do naszych treści.

Z pozdrowieniami zespół KRN.pl :)


telefon

wiadomość

mapa

Rynek pierwotny, Inwestycja KJF Park Balice , Cholerzyn

Rynek pierwotny, Inwestycja deweloperska, nowe

Lokalizacja:

Cholerzyn

Powierzchnia:


komercyjna:
2200,00 m2

Cena:

komercyjne:
20 PLN/m2

Wszystkie oferty z tej inwestycji

Powierzchnia Cena Pokoje Piętro Numer ogłoszenia

Dane szczegółowe

inwestycja:
KJF Park Balice
wykonawca:
FYI REALESTATE
lokalizacja:
Cholerzyn
typ obiektu:

powierzchnie komercyjne:
2200,00 m2
pokoje:

dostępnych ofert:
1
termin oddania:
gotowe
ceny:
komercyjne:
20 PLN/m2
  • Opis inwestycji
  • Lokalizacja
  • Standard wykończenia

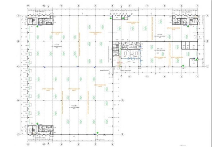
Budynek składa się z części magazynowej oraz z części biurowej. Powierzchnia magazynu to w sumie około 2200 m2, powierzchnia biurowa na tym etapie inwestycji może zostać wykreowana w ilości potrzebnej najemcy.

Na terenie inwestycji dostępny jest zewnętrzny parking na potrzeby najemców.

W kolejnym etapie inwestycji planowany jest magazyn o łącznej powierzchni 5000 m2.

Magazynowe oraz Biurowe:

MAGAZYN: 2220 m2 z możliwością podziału pomiędzy 3-4 najemców
BIURA: możliwość stworzenia zaplecza biurowego zgodnie z oczekiwaniami najemców.

Podstawowe parametry oferty:

  • czynsz magazyn: 4,5 euro/m2
  • czynsz biura: 10 euro/m2
  • opłata serwisowa: 5 PLN/m2
  • kaucja/ depozyt: do uzgodnienia
  • czas trwania umowy: minimum 60 miesięcy
  • opłaty dodatkowe: media – według zużycia

zdjęcie do ofertyzdjęcie do ofertyzdjęcie do ofertyzdjęcie do oferty
zdjęcie do ofertyzdjęcie do ofertyzdjęcie do ofertyzdjęcie do oferty

Inwestycja zlokalizowana jest w zachodniej części Krakowa, w miejscowości Cholerzyn – w sąsiedztwie autostrady A4 oraz portu lotniczego Kraków Balice.

Lokalizacja ta zapewnia bardzo dogodne warunki Obsługi komunikacyjnej względem obwodnicy jak i samego lotniska.

W bezpośrednim sąsiedztwie znajdują się obiekty magazynowe oraz produkcyjne. W najbliższej okolicy znajdują się również przystanki komunikacji miejskiej.

Klasa biurowca: B

Kontrola dostępu: Tak
Okablowanie telefoniczne: Tak
Okablowanie komputerowe: Tak
Okablowanie elektryczne: Tak
Centrala telefoniczna: Tak
Klimatyzacja: Tak
Czujnik dymu i ciepła: Tak
Podnoszone podłogi :Nie
Podwieszany sufit: Tak
Wykładzina: Tak
Otwierane okna: Tak
Łącze światłowodowe: Tak
Ścianki działowe: Tak



1894 wydruk błąd schowek

Ostatnio przeglądane

 

pobieranie

Pobierz wzór umowy

Umowa przedwstępna sprzedaży nieruchomości

wybierz plik do pobrania
doc pdf

Skontaktuj się z ogłoszeniodawcą

FYI REALESTATE

FYI REALESTATE

30-012 Kraków, ul. Poznańska 6/LU1

telefon pokaż kontakt

Telefon: +48 12 311 87 03

Adres e-mail: biuro@biurofyi.pl

Strona www: www.biurofyi.pl

Prześlij mi kopię e-maila

Powiadamiaj mnie o podobnych ofertach

Wyrażam zgodę na otrzymywanie elektronicznego biuletynu KRN.pl. oraz na przetwarzanie moich danych osobowych ( regulamin ) w celach marketingowych przez KRN media sp. z o.o.i spółki powiązane oraz partnerów handlowych.

 

 

Wybrane nieruchomości

mieszkania na sprzedaż w Poznaniumieszkania na sprzedaż w Krakowiemieszkania na sprzedaż w Warszawiemieszkania na sprzedaż w Wrocławiumieszkania na sprzedaż w Gdańskudomy na sprzedaż w Poznaniudomy na sprzedaż w Krakowiedomy na sprzedaż w Warszawiedomy na sprzedaż w Wrocławiudomy na sprzedaż w Gdańskumieszkania do wynajęcia Krakówmieszkania do wynajęcia Warszawamieszkania do wynajęcia Poznańmieszkania do wynajęcia Wrocławmieszkania do wynajęcia Gdyniamieszkania do wynajęcia Gdańskmieszkania do wynajęcia Łódźinne nieruchomości poszukiwane do wynajęcialokale użytkowe do kupieniadomy na sprzedażmieszkania na wynajem powiat Słubickimieszkania na sprzedaż powiat Brodnickidomy na sprzedaż gmina Popówmieszkania na sprzedaż gmina Siechnicedomy na sprzedaż w Nowych Hołowczycachdomy na wynajem w Pierzchałachmieszkania na wynajem w Skarpie

Deweloperzy

);