Prosimy, odblokuj wyświetlanie reklam w naszym serwisie, są one związane z rynkiem nieruchomości.
To dzięki nim masz darmowy dostęp do naszych treści.

Z pozdrowieniami zespół KRN.pl :)


telefon

wiadomość

mapa

Mieszkanie, Kraków, Dębniki, ul. dr. J. Babińskiego

Mieszkanie na sprzedaż Kraków (woj. Małopolskie), Dębniki, ul. dr. J. Babińskiego

Lokalizacja:

Kraków, Dębniki, ul. dr. J. Babińskiego

Powierzchnia:

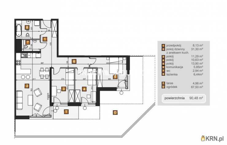
90.48 m2

Cena:

1 411 488 zł

Dane szczegółowe

lokalizacja:
Małopolskie, Kraków, Dębniki, ul. dr. J. Babińskiego
typ obiektu:
mieszkanie na sprzedaż
cena:
1 411 488 zł
pokoi:
4
piętro:
parter
ilość pięter w budynku:
2
powierzchnia:
90.48 m2
powierzchnia dodatkowa:
balkon, ogródek
numer ogłoszenia:
BS2-MS-307193-17
data dodania:
13-02-2026
data modyfikacji:
13-02-2026
jakość wypełnienia oferty:
88%

Szczegóły oferty


DEBNIKI - NOWE MIESZKANIA, STAN DEWELOPERSKI.
Osiedle położone przy Dębnikach to nowoczesne osiedle zaprojektowane z myślą o komforcie, funkcjonalności i wysokim standardzie życia. Doskonała lokalizacja, elegancka architektura oraz liczne udogodnienia sprawiają, że jest to idealne miejsce zarówno dla rodzin, jak i inwestorów.
Projekt zakłada budowę 280 mieszkań o zróżnicowanych metrażach, od kompaktowych kawalerek do przestronnych mieszkań 4 pokojowych.
Możliwość zakupu miejsca postojowego oraz komórki lokatorskiej!

Świetna lokalizacja

Spokojna okolica z szybkim dostępem do centrum Krakowa.
Bliskość komunikacji miejskiej (tramwaje, autobusy).
W pobliżu sklepy, restauracje, szkoły, przedszkola oraz tereny zielone.

Nowoczesna architektura i funkcjonalne mieszkania

Przemyślane układy mieszkań od kawalerek po przestronne apartamenty.
Duże przeszklenia zapewniające naturalne oświetlenie.
Wysoka jakość materiałów i elegancki design budynków.

Komfort i rekreacja

Zielone przestrzenie i tereny rekreacyjne dla mieszkańców.
Plac zabaw dla dzieci i strefy wypoczynkowe.
Cichobieżne windy oraz nowoczesne klatki schodowe.

Wygodne parkowanie i bezpieczeństwo

Podziemny parking oraz naziemne miejsca postojowe.
Monitoring i kontrola dostępu dla większego bezpieczeństwa.

Atrakcyjna oferta cenowa i finansowanie

Możliwość skorzystania z programów wsparcia kredytowego. Skontaktuj się i poznaj szczegóły!

Opiekun oferty: Marek Popiela
Telefon:
Zobacz kontakt518-967-677
E-mail:
Zobacz kontaktmarek@sadurscy.pl

::DODATKOWE INFORMACJE
Kategoria oferty: Mieszkania dla rodzin z dziećmi Rodzaj budynku: nowe budownictwo Dozór budynku: monitoring Głośność: średnio głośne Plac zabaw: TAK Widok: na osiedle Gaz: brak Woda: ciepła - miejska Dojazd: ASFALTOWA Otoczenie: osiedle Ogrzewanie: miejskie Komunikacja publ.: MPK, autobus miejski, tramwaj Winda: TAK Liczba wind: 1 Rozkład: rozkładowe Usytuowanie: jednostronne Opłaty w czynszu: - Rodzaj mieszkania: jednopoziomowe Garaż: możliwość kupna Stan lokalu: deweloperski Okna: PCV Instalacje: nowe Tarasy: taras Liczba tarasów: 1 Powierzchnia balkonów/tarasów [m2]: 4,9600 Powierzchnia ogródka [m2]: 67,5000 Rok budowy: 2025 Liczba pokoi: 4 Liczba sypialni: 1 Podłogi pokoi: wylewka Ściany pokoi: zwykłe Typ kuchni: aneks kuchenny - połączony z salonem Rodzaj kuchni: otwarta na salon Podłoga kuchni: wylewka Typ łazienki: razem z wc Glazura łazienki: bez glazury Podłoga łazienki: wylewka Ściany łazienki: zwykłe Liczba przedpokoi: 1 Podłoga przedpokoi: wylewka Ściany przedpokoi: zwykłe
::LINK DO STRONY
https://sadurscy.pl/offer/BS2-MS-307193
::KONTAKT DO AGENTA
Marek Popiela + Zobacz kontakt48 518-967-677 Zobacz kontaktmarek@sadurscy.pl
::DANE BIURA
Oddział BS2, Rynek Pierwotny Przewóz
47 30-081 Kraków Zobacz kontakt12 630-90-45
--------------------------
::GRATIS | Nasza prowizja zawiera: koszt przedwstępnej notarialnej umowy sprzedaży nieruchomości z rynku wtórnego. ::GWARANCJA | Gwarancja zwrotu zadatku. Więcej informacji na sadurscy.pl/zwrot-zadatku/

Ogrzewanie: Miejskie

Kontakt do agenta:
Marek Popiela
Zobacz kontaktmarek@sadurscy.pl
+ Zobacz kontakt48 518-967-677

Oceń ofertę


0


7 wydruk błąd schowek

Ostatnio przeglądane

 

 

 

pobieranie

Pobierz wzór umowy

Umowa przedwstępna sprzedaży

wybierz plik do pobrania
doc pdf

 

 

Deweloperzy

);