Prosimy, odblokuj wyświetlanie reklam w naszym serwisie, są one związane z rynkiem nieruchomości.
To dzięki nim masz darmowy dostęp do naszych treści.

Z pozdrowieniami zespół KRN.pl :)


telefon

wiadomość

mapa

Mieszkanie, Kraków, Prądnik Biały, ul. 29 Listopada

Mieszkanie na sprzedaż Kraków (woj. Małopolskie), Prądnik Biały, ul. 29 Listopada

Lokalizacja:

Kraków, Prądnik Biały, ul. 29 Listopada

Powierzchnia:

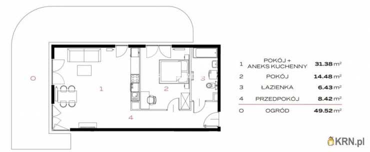
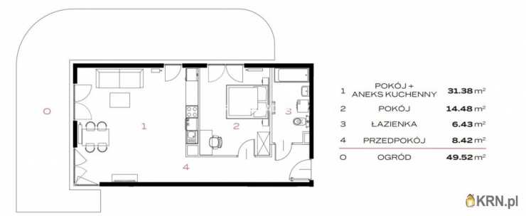
60.68 m2

Cena:

817 794 zł

Dane szczegółowe

lokalizacja:
Małopolskie, Kraków, Prądnik Biały, ul. 29 Listopada
typ obiektu:
mieszkanie na sprzedaż
cena:
817 794 zł
pokoi:
2
piętro:
parter
ilość pięter w budynku:
5
powierzchnia:
60.68 m2
powierzchnia dodatkowa:
ogródek
numer ogłoszenia:
BS2-MS-296159-74
data dodania:
14-09-2024
data modyfikacji:
14-09-2024
jakość wypełnienia oferty:
88%

Szczegóły oferty



GÓRKA NARODOWA - NOWOCZESNE OSIEDLE MIESZKANIOWE, SPOKOJNA OKOLICA - V ETAP.

Prezentowana oferta zlokalizowana jest w północnym rejonie Krakowa, w zielonej i przestrzennej dzielnicy Prądnik Biały.
Inwestycja składa się z trzech nowoczesnych pięciopiętrowych budynków. W ofercie
183 starannie zaprojektowane mieszkania o powierzchni od 31 do 86 m2. Do wyboru 1,-2-,3,-4,-pokojowe.

Mieszkania parterowe będą posiadały ogrody oraz zostaną wyposażone w elektryczne rolety. Na ostatnich piętrach mieszkania z tarasami.

W podziemnej części budynków znajdować się będzie hala garażowa z miejscami postojowymi,
komórkami lokatorskimi oraz miejscami z dedykacją do ładowania samochodów.

Budynki wykonywane z wysokiej jakości materiałów budowlanych z dbałością o każdy szczegół. Inwestycja zostanie ogrodzona w częściach wspólnych oraz monitorowana. Dodatkowo na wspólnym terenie zaprojektowano duży plac zabaw z boiskiem do koszykówki oraz ścianką wspinaczkową.

Idealne miejsce dla aktywnych - z dala od miejskiego zgiełku, a jednocześnie bliskość Parku Leśnego Witkowice ze szlakami rowerowymi, pieszymi i turystycznymi. Wokół pełna infrastruktura handlowo - usługowa (żłobki, przedszkola, sklepy, firmy usługowe). Odległość 4 km od centrum miasta. Idealna oferta dla rodzin z dziećmi.

Mieszkania gotowe do odbioru ::DODATKOWE INFORMACJE
Kategoria oferty: Pewny Partner, Mieszkania dla rodzin z dziećmi Rodzaj budynku: nowe budownictwo Dozór budynku: monitoring Głośność: ciche Plac zabaw: TAK Widok: na inne budynki Gaz: brak Woda: jest Dojazd: asfalt Otoczenie: działki zabudowane Ogrzewanie: miejskie Linie telefoniczne: TAK Telewizja kablowa: TAK Komunikacja publ.: bus, autobus podmiejski, autobus miejski, autobus Winda: TAK Liczba wind: 1 Rozkład: rozkładowe Usytuowanie: narożne Rolety antywłamaniowe: TAK Teren ogrodzony: TAK Opłaty w czynszu: - Rodzaj mieszkania: jednopoziomowe Garaż: możliwość kupna Stan lokalu: deweloperski Okna: PCV Instalacje: nowe Balkon: brak Tarasy: taras Liczba tarasów: 1 Powierzchnia ogródka [m2]: 49,5200 Rok budowy: 2022 Liczba pokoi: 2 Liczba sypialni: 1 Podłogi pokoi: wylewka Ściany pokoi: zwykłe Typ kuchni: aneks kuchenny - połączony z salonem Rodzaj kuchni: otwarta na salon Podłoga kuchni: wylewka Typ łazienki: razem z wc Liczba łazienek: 1 Glazura łazienki: bez glazury Podłoga łazienki: wylewka Ściany łazienki: zwykłe Liczba przedpokoi: 1 Podłoga przedpokoi: wylewka Ściany przedpokoi: zwykłe
::LINK DO STRONY
https://sadurscy.pl/offer/BS2-MS-296159
::KONTAKT DO AGENTA
Arkadiusz Zemła + Zobacz kontakt48 518-706-552 Zobacz kontaktarek@sadurscy.pl
::DANE BIURA
Oddział BS2, Rynek Pierwotny Królewska 67 30-081 Kraków Zobacz kontakt12 630-90-45
--------------------------
::GRATIS | Nasza prowizja zawiera: koszt przedwstępnej notarialnej umowy sprzedaży nieruchomości z rynku wtórnego. ::GWARANCJA | Gwarancja zwrotu zadatku. Więcej informacji na sadurscy.pl/zwrot-zadatku/

Ogrzewanie: Miejskie

Kontakt do agenta:
Arkadiusz Zemła
Zobacz kontaktarek@sadurscy.pl
+ Zobacz kontakt48 518-706-552

Oceń ofertę


3


367 wydruk błąd schowek

Ostatnio przeglądane

 

 

 

pobieranie

Pobierz wzór umowy

Umowa przedwstępna sprzedaży

wybierz plik do pobrania
doc pdf

 

 

Deweloperzy

);