Prosimy, odblokuj wyświetlanie reklam w naszym serwisie, są one związane z rynkiem nieruchomości.
To dzięki nim masz darmowy dostęp do naszych treści.

Z pozdrowieniami zespół KRN.pl :)


telefon

wiadomość

mapa

Mieszkanie, Kraków, Bieńczyce, ul. Albertyńskie

Mieszkanie na sprzedaż Kraków (woj. Małopolskie), Bieńczyce, ul. Albertyńskie

Lokalizacja:

Kraków, Bieńczyce, ul. Albertyńskie

Powierzchnia:

60.26 m2

Cena:

780 000 zł

Dane szczegółowe

lokalizacja:
Małopolskie, Kraków, Bieńczyce, ul. Albertyńskie
typ obiektu:
mieszkanie na sprzedaż
cena:
780 000 zł
pokoi:
3
piętro:
1
ilość pięter w budynku:
8
powierzchnia:
60.26 m2
powierzchnia dodatkowa:
balkon, piwnica
numer ogłoszenia:
BS1-MS-313882-2
data dodania:
20-02-2026
data modyfikacji:
20-02-2026
jakość wypełnienia oferty:
94%

Szczegóły oferty


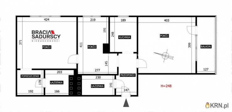
Na sprzedaż 3-pokojowe mieszkanie z loggią, dwiema łazienkami oraz osobną kuchnią. Do mieszkania przynależy piwnica o powierzchni ponad 2 m 2 . Dzielnica: Bieńczyce, Osiedle Albertyńskie. Mieszkanie o łącznej powierzchni 62,76 m 2
(60,26 m 2
bez piwnicy).
Układ i powierzchnia:
rozkład pomieszczeń pozwala na stworzenie idealnej przestrzeni dla rodziny lub jako nieruchomość inwestycyjna. W mieszkaniu gaz do gotowania w kuchni, ogrzewanie oraz woda ciepła miejsca (MPEC). Mieszkanie do remontu, instalacje elektryczne stare.
3 pokoje o powierzchni: ok. 16 m² / ok. 10 m² / ok. 16 m²
2 łazienki o powierzchni: ok. 3,25 m² /
ok. 3,30 m²
Kuchnia: ok. 4,70 m²
Dodatkowe pomieszczenie: ok. 3,50 m²
Przedpokój: ok. 4,10 m²
Balkon: ponad 5 m²
- Piętro: 1
- Winda: tak
- Piwnica: ponad 2 m 2
- Garaż: możliwość dokupienia
Czynsz administracyjny: ok. 720 zł / miesięcznie.
Kontakt:
Norbert Borowiak
+ Zobacz kontakt48 577 072 177

Prezentacja nieruchomości po podpisaniu umowy pośrednictwa jest bezpłatna. ::DODATKOWE INFORMACJE
Rodzaj budynku: blok Dozór budynku: monitoring Głośność: ciche Widok: na podwórko Gaz: jest Woda: ciepła - miejska Dojazd: asfalt Otoczenie: osiedle Ogrzewanie: C.O. miejskie Komunikacja publ.: miejska, tramwaj, tak, autobus Winda: TAK Rozkład: narożne Usytuowanie: dwustronne Opłaty w czynszu: wywóz nieczystości, woda/ryczałt na wodę, woda ciepła, CO, administracja Opłaty wg liczników: prąd, gaz Rodzaj mieszkania: jednopoziomowe Garaż: możliwość kupna Piwnica [m2]: 2 Piwnica: TAK Stan lokalu: do remontu Okna: PCV Instalacje: niewymienione Balkon: jest Liczba balkonów: 1 Powierzchnia użytkowa [m2]: 60,2600 Rok budowy: 1966 Liczba pokoi: 3 Wysokość pomieszczeń [m]: 2,5000 Liczba sypialni: 3 Powierzchnia pokoi [m2]: 16 ; 10 ; 15,8 Podłogi pokoi: panele, inne Ściany pokoi: zwykłe Wystawa okien - pokoje : Pn-Zach, Pn Typ kuchni: jasna z oknem Rodzaj kuchni: oddzielna Powierzchnia kuchni [m2]: 4,7 Podłoga kuchni: gres Wystawa okien - kuchnia: Pn-Zach Typ łazienki: razem z wc Liczba łazienek: 2 Powierzchnia łazienki [m2]: 3,3 ; 3,24 Glazura łazienki: glazura Podłoga łazienki: gres Wyposażenie łazienki: WC, wanna, kabina prysznicowa Ściany łazienki: zwykłe, glazura Liczba WC: 2 Powierzchnia WC: 3,3 ; 3,24 Glazura WC: starszego typu Podłoga WC: gres Ściany WC: glazura Liczba przedpokoi: 1 Powierzchnia przedpokoi [m2]: 4,12 Podłoga przedpokoi: inne Ściany przedpokoi: zwykłe
::LINK DO STRONY
https://sadurscy.pl/offer/BS1-MS-313882
::KONTAKT DO AGENTA
Norbert Borowiak + Zobacz kontakt48 577-072-177 Zobacz kontaktnorbert@sadurscy.pl
::DANE BIURA
Oddział BS1, Kapelanka Kapelanka 1A/1 30-347 Kraków Zobacz kontakt12 429-25-12

Ogrzewanie: Miejskie

Kontakt do agenta:
Norbert Borowiak
Zobacz kontaktnorbert@sadurscy.pl
+ Zobacz kontakt48 577-072-177

Oceń ofertę


0


19 wydruk błąd schowek

Ostatnio przeglądane

 

 

 

pobieranie

Pobierz wzór umowy

Umowa przedwstępna sprzedaży

wybierz plik do pobrania
doc pdf

 

 

Deweloperzy

);