Prosimy, odblokuj wyświetlanie reklam w naszym serwisie, są one związane z rynkiem nieruchomości.
To dzięki nim masz darmowy dostęp do naszych treści.

Z pozdrowieniami zespół KRN.pl :)


telefon

wiadomość

mapa

Mieszkanie, Kraków, Prądnik Biały, ul. Pękowicka

Mieszkanie na sprzedaż Kraków (woj. Małopolskie), Prądnik Biały, ul. Pękowicka

Lokalizacja:

Kraków, Prądnik Biały, ul. Pękowicka

Powierzchnia:

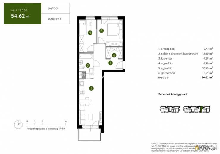
54.62 m2

Cena:

781 066 zł

Dane szczegółowe

lokalizacja:
Małopolskie, Kraków, Prądnik Biały, ul. Pękowicka
typ obiektu:
mieszkanie na sprzedaż
cena:
781 066 zł
pokoi:
3
piętro:
3
ilość pięter w budynku:
3
powierzchnia:
54.62 m2
numer ogłoszenia:
BS2-MS-304192-29
data dodania:
13-03-2026
data modyfikacji:
13-03-2026
jakość wypełnienia oferty:
82%

Szczegóły oferty


Z ogromną przyjemnością przedstawiamy Państwu ofertę mieszkania na sprzedaż w malowniczym rejonie Doliny Prądnika, na północy Krakowa, blisko granicy z gminą Zielonki. Nowoczesne osiedle otoczone jest rozległymi terenami zielonymi, co umożliwia codzienny kontakt z naturą i zapewnia wytchnienie od intensywnego miejskiego życia w centrum miasta.
Osiedle zostało zaprojektowane z myślą o rodzinach, parach oraz singlach, oferując szeroki wybór mieszkań o powierzchni od 26 do 73 m², w układach 1-, 2-, 3- i 4-pokojowych. Dbałość o komfort mieszkańców przejawia się w wysokiej jakości przestrzeni wspólnych, które sprzyjają nawiązywaniu sąsiedzkich relacji: skwer z ławeczkami, plac zabaw...
Budynki nowej inwestycji
mające 3 i 4 kondygnacje, wyróżniają się kameralną architekturą, harmonizującą z okolicą. Przestronność obiektów gwarantuje mieszkańcom poczucie prywatności.
Zalety:

Home Management System
to zaawansowana technologia inteligentnego domu, która umożliwia m.in. zarządzanie ogrzewaniem, oświetleniem i zaworami wody.
Pakiet antysmogowy
w postaci filtrów montowanych w nawiewnikach okiennych dba o czystość powietrza we wnętrzach mieszkań.
Wysoki standard wykończenia części wspólnych obejmuje trwałe płytki gresowe, dekoracyjne panele imitujące drewno oraz energooszczędne oświetlenie LED.
Mieszkania na parterze posiadają tarasy z ogrodami o powierzchni do 123 m², natomiast mieszkania na wyższych kondygnacjach oferują przestronne balkony.
Termoizolacyjne łączniki balkonowe zapobiegają utracie ciepła, co przekłada się na oszczędności energetyczne.
Portfenetrowe okna
zapewniają doskonałe doświetlenie wnętrz.
Na terenie osiedla zostanie zainstalowana stacja ładowania pojazdów elektrycznych, z myślą o mieszkańcach korzystających z ekologicznych środków transportu.
Zielone dachy budynków będą nie tylko estetyczne, ale również poprawią jakość powietrza i obniżą temperaturę otoczenia.

Prądnik biały to doskonale skomunikowana okolica, idealne miejsce dla osób szukających spokoju i bliskości natury, z jednoczesnym dostępem do nowoczesnych rozwiązań technologicznych.
Serdecznie zapraszam do kontaktu

::DODATKOWE INFORMACJE
Kategoria oferty: Mieszkania dla rodzin z dziećmi Rodzaj budynku: blok Parking strzeżony (odległość w metrach) [m]: 300 Dozór budynku: monitoring Głośność: umiarkowanie ciche Plac zabaw: TAK Widok: na osiedle Gaz: brak Woda: ciepła - miejska Dojazd: asfalt Otoczenie: działki zabudowane Ogrzewanie: C.O. miejskie Linie telefoniczne: TAK Internet: TAK Komunikacja publ.: autobus miejski Odległość do komunikacji publicznej [m]: 300 Odl. do sklepu [m]: 400 Odl. do szkoły [m]: 1000 Odl. do przedszkola [m]: 500 Winda: TAK Drzwi antywłamaniowe: TAK Rodzaj mieszkania: jednopoziomowe Garaż: garaż pod budynkiem Stan lokalu: deweloperski Okna: PCV Instalacje: KOMPUTEROWA, TELEFONICZNA Balkon: jest Rok budowy: 2024 Liczba pokoi: 3 Wysokość pomieszczeń [m]: 2,5000 Podłogi pokoi: wylewka Ściany pokoi: tynk Typ kuchni: aneks kuchenny - połączony z jadalnią Rodzaj kuchni: aneks kuchenny połączony z jadalnią i salonem Podłoga kuchni: wylewka Typ łazienki: razem z wc Glazura łazienki: bez glazury Podłoga łazienki: wylewka Ściany łazienki: tynk Glazura WC: bez glazury Podłoga WC: wylewka Ściany WC: tynk Liczba przedpokoi: 1 Podłoga przedpokoi: wylewka Ściany przedpokoi: tynk
::LINK DO STRONY
https://sadurscy.pl/offer/BS2-MS-304192
::KONTAKT DO AGENTA
Patrycja Rubinkiewicz + Zobacz kontakt48 505-236-943 Zobacz kontaktpatrycja@sadurscy.pl
::DANE BIURA
Oddział BS2, Rynek Pierwotny Przewóz
47 30-081 Kraków Zobacz kontakt12 630-90-45
--------------------------
::GRATIS | Nasza prowizja zawiera: koszt przedwstępnej notarialnej umowy sprzedaży nieruchomości z rynku wtórnego. ::GWARANCJA | Gwarancja zwrotu zadatku. Więcej informacji na sadurscy.pl/zwrot-zadatku/

Ogrzewanie: Miejskie

Kontakt do agenta:
Patrycja Rubinkiewicz
Zobacz kontaktpatrycja@sadurscy.pl
+ Zobacz kontakt48 505-236-943

Oceń ofertę


0


8 wydruk błąd schowek

Ostatnio przeglądane

 

 

 

pobieranie

Pobierz wzór umowy

Umowa przedwstępna sprzedaży

wybierz plik do pobrania
doc pdf

 

 

Deweloperzy

);