Prosimy, odblokuj wyświetlanie reklam w naszym serwisie, są one związane z rynkiem nieruchomości.
To dzięki nim masz darmowy dostęp do naszych treści.

Z pozdrowieniami zespół KRN.pl :)


telefon

wiadomość

mapa

Mieszkanie, Kraków, Prądnik Biały, ul. 29 Listopada

Mieszkanie na sprzedaż Kraków (woj. Małopolskie), Prądnik Biały, ul. 29 Listopada

Lokalizacja:

Kraków, Prądnik Biały, ul. 29 Listopada

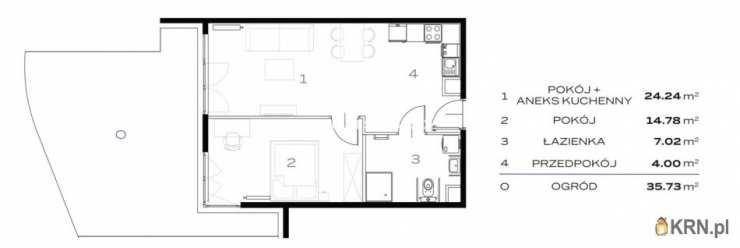
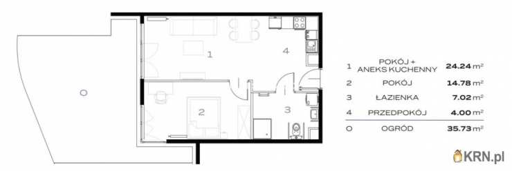
Powierzchnia:

50.07 m2

Cena:

732 095 zł

Dane szczegółowe

lokalizacja:
Małopolskie, Kraków, Prądnik Biały, ul. 29 Listopada
typ obiektu:
mieszkanie na sprzedaż
cena:
732 095 zł
pokoi:
2
piętro:
parter
ilość pięter w budynku:
5
powierzchnia:
50.07 m2
powierzchnia dodatkowa:
balkon
numer ogłoszenia:
BS2-MS-296204-76
data dodania:
30-11-2024
data modyfikacji:
30-11-2024
jakość wypełnienia oferty:
88%

Szczegóły oferty



NOWE MIESZKANIA - PRĄDNIK BIAŁY, GÓRKA NARODOWA.

W ramach kolejnego etapu inwestycji powstanie łącznie 236 mieszkań, ulokowanych w czterech budynkach o sześciu kondygnacjach naziemnych.
Wszystkie z mieszkań 1-, 2-, 3- i 4-pokojowych, w metrażach od 31 m2 do 86 m2 będą posiadały przestronne balkony bądź ogródki, a w przypadku wyższych pięter - tarasy.
W podziemnej części budynków znajdować się będzie hala garażowa z miejscami postojowymi, komórkami lokatorskimi oraz miejscami z dedykacją do ładowania samochodów.
Budynki wykonywane z wysokiej jakości materiałów budowlanych z dbałością o każdy szczegół. Inwestycja zostanie ogrodzona w częściach wspólnych oraz monitorowana. Dodatkowo na wspólnym terenie zaprojektowano duży plac zabaw z boiskiem do koszykówki oraz ścianką wspinaczkową.
- bliskość spokojnej okolicy ( Park Leśny Witkowice ze szlakami rowerowymi, pieszymi i turystycznymi,
- bliskość miejskiej infrastruktury
(żłobki, przedszkola, sklepy, firmy usługowe),

- niedaleka odległość od powstającego przystanku linii szybkiego tramwaju

Odległość 4 km od centrum miasta. Idealna oferta dla rodzin z dziećmi.
Mieszkania gotowe do odbioru

::DODATKOWE INFORMACJE
Kategoria oferty: Pewny Partner, Mieszkania dla rodzin z dziećmi Rodzaj budynku: nowe budownictwo Dozór budynku: monitoring Głośność: ciche Plac zabaw: TAK Widok: na inne budynki Gaz: brak Woda: ciepła - miejska Dojazd: asfalt Otoczenie: działki zabudowane Ogrzewanie: miejskie Linie telefoniczne: TAK Telewizja kablowa: TAK Komunikacja publ.: bus, autobus podmiejski, autobus miejski, autobus Winda: TAK Liczba wind: 1 Rozkład: pełen rozkład Usytuowanie: jednostronne Rolety antywłamaniowe: TAK Teren ogrodzony: TAK Opłaty w czynszu: - Rodzaj mieszkania: jednopoziomowe Garaż: możliwość kupna Stan lokalu: deweloperski Okna: PCV Instalacje: nowe Balkon: taras Liczba balkonów: 1 Rok budowy: 2023 Liczba pokoi: 2 Liczba sypialni: 1 Podłogi pokoi: wylewka Ściany pokoi: zwykłe Typ kuchni: aneks kuchenny - połączony z salonem Rodzaj kuchni: otwarta na salon Podłoga kuchni: wylewka Typ łazienki: razem z wc Liczba łazienek: 1 Glazura łazienki: bez glazury Podłoga łazienki: wylewka Ściany łazienki: zwykłe Liczba przedpokoi: 1 Podłoga przedpokoi: wylewka Ściany przedpokoi: zwykłe
::LINK DO STRONY
https://sadurscy.pl/offer/BS2-MS-296204
::KONTAKT DO AGENTA
Arkadiusz Zemła + Zobacz kontakt48 518-706-552 Zobacz kontaktarek@sadurscy.pl
::DANE BIURA
Oddział BS2, Rynek Pierwotny Przewóz
47 30-081 Kraków Zobacz kontakt12 630-90-45
--------------------------
::GRATIS | Nasza prowizja zawiera: koszt przedwstępnej notarialnej umowy sprzedaży nieruchomości z rynku wtórnego. ::GWARANCJA | Gwarancja zwrotu zadatku. Więcej informacji na sadurscy.pl/zwrot-zadatku/

Ogrzewanie: Miejskie

Kontakt do agenta:
Arkadiusz Zemła
Zobacz kontaktarek@sadurscy.pl
+ Zobacz kontakt48 518-706-552

Oceń ofertę


3


95 wydruk błąd schowek

Ostatnio przeglądane

 

 

 

pobieranie

Pobierz wzór umowy

Umowa przedwstępna sprzedaży

wybierz plik do pobrania
doc pdf

 

 

Deweloperzy

);