Prosimy, odblokuj wyświetlanie reklam w naszym serwisie, są one związane z rynkiem nieruchomości.
To dzięki nim masz darmowy dostęp do naszych treści.

Z pozdrowieniami zespół KRN.pl :)


telefon

wiadomość

mapa

Mieszkanie, Wrocław, Krzyki

Mieszkanie na sprzedaż Wrocław (woj. Dolnośląskie), Krzyki

Lokalizacja:

Wrocław, Krzyki, ul.

Powierzchnia:

45.32 m2

Cena:

688 864 zł

Dane szczegółowe

lokalizacja:
Dolnośląskie, Wrocław, Krzyki
typ obiektu:
mieszkanie na sprzedaż
cena:
688 864 zł
pokoi:
2
piętro:
3
ilość pięter w budynku:
3
powierzchnia:
45.32 m2
numer ogłoszenia:
3252
data dodania:
26-02-2026
data modyfikacji:
26-02-2026
jakość wypełnienia oferty:
82%

Szczegóły oferty

Piękna, nowa, kameralna inwestycja na Klecinie!
Nowe, przestronne mieszkanie z dużym tarasem!
- 0% PROWIZJI OD KUPUJĄCEGO - BEZ 2% PODATKU PCC - 15 MIN. DO CENTRUM MIASTA - TYLKO U NAS
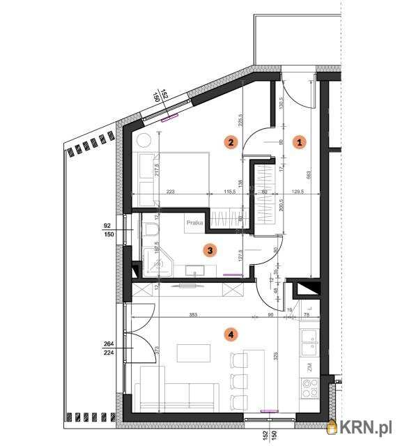
Polecam na sprzedaż komfortowe, przestronne mieszkanie 2-pokojowe o pow. 45,32 mkw zlokalizowane w kameralnej, nowo powstającej inwestycji przy ul. Buraczanej.
Na całkowitą pow. 45,32 mkw składają się: - pokój dzienny połączony z aneksem kuchennym, - oddzielna sypialnia, - łazienka z wc, - przedpokój, - taras.
NAJBARDZIEJ ZIELONA CZĘŚĆ KRZYKÓW
Buraczana 27 to inwestycja powstająca w spokojnej części Wrocławia u zbiegu ulic Buraczanej i Ogórkowej, w pobliżu Parku Klecińskiego oraz Parku Migdałowego w otoczeniu kameralnej, niskiej zabudowy.
DOSKONAŁA LOKALIZACJA
Świetna lokalizacja, tylko 15 minut do centrum Wrocławia. Dostęp do pozostałych części miasta zapewnia sprawnie działająca komunikacja miejska.
Dla podróżujących samochodem olbrzymim ułatwieniem będzie bliskie sąsiedztwo Autostrady A4 i A8, przebiegającej 2 km od inwestycji.
DUŻY WYBÓR MIESZKAŃ
Inwestycja będzie składać się kameralnego, 3-kondygnacyjnego budynku, w którym znajdzie się łącznie 17 mieszkań, 11 komórek lokatorskich oraz 21 miejsc postojowych w podziemnym parkingu.
WSZYSTKO "POD RĘKĄ"
Mieszkańcy będą mieli wszystko na wyciągnięcie ręki. W okolicy inwestycji znajduje się niezbędna infrastruktura użytkowa (sklepy, żłobki, przedszkola, szkoły) oraz rekreacyjna (zieleń parkowa, place zabaw, liczne ścieżki rowerowe).
Mieszkania oddawane będą w standardzie deweloperskim.
Termin zakończenia budowy: 3 kwartał 2027 r.
Gorąco polecamy i zapraszamy na prezentację.
Więcej informacji na temat tego mieszkania i innych dostępnych w tej inwestycji udziela: Jacek Nocny tel. Zobacz kontakt500 645 699 In-house Sp. z o.o.
Biuro Nieruchomości In-house Sp. z o.o. prowadzi sprzedaż bezpośrednią tej inwestycji na zasadach wyłączności, w związku z czym klient kupujący nie ponosi kosztów związanych z pośrednictwem. Nowe, przestronne mieszkanie z balkonem!
Nowa inwestycja na Klecinie!
- 0% PROWIZJI OD KUPUJĄCEGO - BEZ 2% PODATKU PCC - 15 MIN. DO CENTRUM MIASTA - TYLKO U NAS
Polecam na sprzedaż komfortowe, przestronne mieszkanie 4-pokojowe o pow. 72,03 mkw zlokalizowane w kameralnej, nowo powstającej inwestycji przy ul. Buraczanej.
Na całkowitą pow. 72,03 mkw składają się: - pokój dzienny połączony z aneksem kuchennym, - trzy oddzielne sypialnie, - łazienka z wc, - przedpokój, - balkon.
NAJBARDZIEJ ZIELONA CZĘŚĆ KRZYKÓW
Buraczana 27 to inwestycja powstająca w spokojnej części Wrocławia u zbiegu ulic Buraczanej i Ogórkowej, w pobliżu Parku Klecińskiego oraz Parku Migdałowego w otoczeniu kameralnej, niskiej zabudowy.
DOSKONAŁA LOKALIZACJA
Świetna lokalizacja, tylko 15 minut do centrum Wrocławia. Dostęp do pozostałych części miasta zapewnia sprawnie działająca komunikacja miejska.
Dla podróżujących samochodem olbrzymim ułatwieniem będzie bliskie sąsiedztwo Autostrady A4 i A8, przebiegającej 2 km od inwestycji.
DUŻY WYBÓR MIESZKAŃ
Inwestycja będzie składać się kameralnego, 3-kondygnacyjnego budynku, w którym znajdzie się łącznie 17 mieszkań, 11 komórek lokatorskich oraz 21 miejsc postojowych w podziemnym parkingu.
WSZYSTKO "POD RĘKĄ"
Mieszkańcy będą mieli wszystko na wyciągnięcie ręki. W okolicy inwestycji znajduje się niezbędna infrastruktura użytkowa (sklepy, żłobki, przedszkola, szkoły) oraz rekreacyjna (zieleń parkowa, place zabaw, liczne ścieżki rowerowe).
Mieszkania oddawane będą w standardzie deweloperskim.
Termin zakończenia budowy: 3 kwartał 2027 r.
Gorąco polecamy i zapraszamy na prezentację.
Więcej informacji na temat tego mieszkania i innych dostępnych w tej inwestycji udziela: Jacek Nocny tel. Zobacz kontakt500 645 699 In-house Sp. z o.o.
Biuro Nieruchomości In-house Sp. z o.o. prowadzi sprzedaż bezpośrednią tej inwestycji na zasadach wyłączności, w związku z czym klient kupujący nie ponosi kosztów związanych z pośrednictwem.
Treść niniejszego ogłoszenia nie stanowi oferty handlowej w rozumieniu Kodeksu Cywilnego.
Oferta wysłana z programu IMO dla biur nieruchomości
Ogrzewanie: Węglowe/drewno

Informacje dodatkowe:

Kontakt do agenta:
Jacek Nocny
Zobacz kontakt500 645 699
Zobacz kontakt500 645 699
Zobacz kontaktj.nocny@in-house.pl

Oceń ofertę


9.99


278 wydruk błąd schowek

Ostatnio przeglądane

 

 

 

pobieranie

Pobierz wzór umowy

Umowa przedwstępna sprzedaży

wybierz plik do pobrania
doc pdf

 

 

Deweloperzy

);