Prosimy, odblokuj wyświetlanie reklam w naszym serwisie, są one związane z rynkiem nieruchomości.
To dzięki nim masz darmowy dostęp do naszych treści.

Z pozdrowieniami zespół KRN.pl :)


telefon

wiadomość

mapa

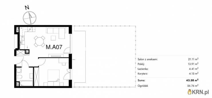
Mieszkanie, Kraków, Prądnik Biały, ul. Stelmachów

Mieszkanie na sprzedaż Kraków (woj. Małopolskie), Prądnik Biały, ul. Stelmachów

Lokalizacja:

Kraków, Prądnik Biały, ul. Stelmachów

Powierzchnia:

43.58 m2

Cena:

697 280 zł

Dane szczegółowe

lokalizacja:
Małopolskie, Kraków, Prądnik Biały, ul. Stelmachów
typ obiektu:
mieszkanie na sprzedaż
cena:
697 280 zł
pokoi:
2
piętro:
parter
ilość pięter w budynku:
2
powierzchnia:
43.58 m2
powierzchnia dodatkowa:
ogródek
numer ogłoszenia:
BS2-MS-314082
data dodania:
25-02-2026
data modyfikacji:
25-02-2026
jakość wypełnienia oferty:
88%

Szczegóły oferty



Start sprzedaży! Funkcjonalne mieszkania 27-109 m² + prywatne ogródki Biuro Nieruchomości Bracia Sadurscy
prezentuje wyjątkową, kameralną inwestycję zlokalizowaną w zielonej części Krakowa - w spokojnych i rodzinnych Bronowicach.

To harmonijnie zaprojektowane osiedle powstało z myślą o komforcie codziennego życia, funkcjonalności oraz budowaniu prawdziwej, sąsiedzkiej wspólnoty. Starannie zaplanowane części wspólne, zielone alejki spacerowe i przestrzenie rekreacyjne sprawiają, że mieszkanie staje się czymś więcej niż adresem - staje się miejscem do życia.

Kameralna architektura i przemyślane mieszkania

Inwestycję tworzą trzy nowoczesne budynki - dwa dwupiętrowe oraz jeden trzypiętrowy - zaprojektowane przez renomowaną pracownię architektoniczną z ponad 30-letnim doświadczeniem. Spójna, elegancka stylistyka oraz wysoka jakość wykonania gwarantują estetykę i funkcjonalność na lata.

W ofercie znajdują się mieszkania o powierzchni od
27,21 m² do 109,61 m²
- od kompaktowych kawalerek po przestronne, 4-pokojowe apartamenty idealne dla rodzin.

Każde mieszkanie posiada
balkon, taras lub prywatny ogródek , zapewniając dodatkową przestrzeń do relaksu i odpoczynku.

Atuty inwestycji:
ergonomiczne i ustawne układy mieszkań,
duże przeszklenia i doskonałe doświetlenie wnętrz,
prywatne, ogrodzone ogródki na parterze,
nowoczesne windy dostępne z poziomu garażu,
wysoki standard wykończenia części wspólnych.
Przestrzeń sprzyjająca relacjom

Osiedle zaprojektowano tak, aby mieszkańcy nie pozostawali anonimowi. Wspólne inicjatywy, integracyjne spotkania oraz funkcjonalne części wspólne budują atmosferę przyjaznej społeczności.

Do dyspozycji mieszkańców przewidziano m.in.:
świetlicę z częścią coworkingową - idealną do pracy zdalnej,
plac zabaw z bezpieczną nawierzchnią,
zielone alejki spacerowe,
wózkownie i rowerownie,
stację naprawy rowerów,
garaż podziemny oraz zewnętrzne miejsca postojowe.
Miejsca postojowe w garażu podziemnym dostępne są w cenie
50 000 zł , a komórki lokatorskie w przedziale od
10 350 zł do 28 950 zł
- w zależności od metrażu.

Lokalizacja
- równowaga między miastem a naturą

To kameralne sąsiedztwo niskiej zabudowy, dostęp do terenów zielonych oraz rozwinięta infrastruktura handlowo-usługowa i edukacyjna.

W pobliżu znajdują się centra handlowe, szkoły oraz trasy rowerowe prowadzące do wyjątkowych terenów rekreacyjnych, takich jak
Dolinki Krakowskie
czy
Ojcowski Park Narodowy .

Dodatkowym atutem jest przystanek komunikacji miejskiej przy wjeździe do inwestycji, zapewniający szybki i wygodny dojazd do centrum miasta.

Standard wykończenia mieszkań


Mieszkania oferowane są w
standardzie deweloperskim , co daje przyszłym właścicielom możliwość indywidualnej aranżacji wnętrz zgodnie z własnym stylem i potrzebami.

Zakres wykończenia obejmuje:
ścianki działowe wykonane z bloczków gipsowych lub betonu komórkowego,
tynki gipsowe na ścianach nośnych (bez gładzi),
posadzki w postaci jastrychów cementowych, przygotowane pod montaż okładzin podłogowych,
stolarkę okienną PVC z mikrowentylacją oraz nawiewnikami,
parapety zewnętrzne z blachy stalowej powlekanej,
na parterze - okna z szybą bezpieczną oraz okuciami antywłamaniowymi klasy WK2,
balkony prefabrykowane betonowe,
balustrady stalowe o konstrukcji ażurowej.

drzwi antywłamaniowe,

wideodomofon przy wejściu,
pełne opomiarowanie mediów,
wyznaczone miejsca pod montaż klimatyzacji,

Zastosowane rozwiązania techniczne zapewniają trwałość, bezpieczeństwo oraz komfort codziennego użytkowania, a jednocześnie stanowią solidną bazę do wykończenia mieszkania według własnej koncepcji.

Osiedle zostało również dostosowane do potrzeb osób z niepełnosprawnościami - windy obsługują wszystkie poziomy, w tym garaż podziemny.


Harmonogram realizacji inwestycji

Zakończenie prac budowlanych:
do 30 września 2026 r.
Uzyskanie pozwolenia na użytkowanie:
do 31 października 2026 r.
Przekazanie mieszkań Nabywcom:
do 30 kwietnia 2027 r.
Przeniesienie własności lokali:
do 30 kwietnia 2027 r.
Harmonogram został zaplanowany z zachowaniem odpowiednich etapów formalno-prawnych, co zapewnia bezpieczny i uporządkowany proces realizacji inwestycji oraz przekazania mieszkań przyszłym właścicielom. To propozycja dla osób, które szukają balansu między spokojem a miejską wygodą. Kameralna zabudowa, funkcjonalne mieszkania, prywatne ogródki i zielone otoczenie tworzą przestrzeń idealną zarówno dla rodzin, jak i osób aktywnych zawodowo.

W celu uzyskania szczegółowych informacji oraz aktualnej oferty mieszkań zapraszamy do kontaktu i na prezentację.

Natalia Słomka
nr tel.:
+ Zobacz kontakt48 577 738 778
lub Zobacz kontaktnatalia@sadurscy.pl
::DODATKOWE INFORMACJE
Kategoria oferty: Pewny Partner, Mieszkania dla rodzin z dziećmi Rodzaj budynku: budynek wielorodzinny Dozór budynku: monitoring Plac zabaw: TAK Gaz: jest Woda: sieć rozprowadzona Dojazd: asfalt Otoczenie: zabudowa mieszana Ogrzewanie: centralne Internet: TAK Komunikacja publ.: MPK, autobus Odległość do komunikacji publicznej [m]: 50 Winda: TAK Liczba wind: 1 Drzwi antywłamaniowe: TAK Rodzaj mieszkania: jednopoziomowe Garaż: garaż pod budynkiem Stan lokalu: deweloperski Okna: PCV 3 szyby, ciepły montaż Instalacje: ELEKTRYCZNA, GAZOWA Balkon: brak Powierzchnia ogródka [m2]: 56,7600 Powierzchnia użytkowa [m2]: 43,5800 Rok budowy: 2027 Liczba pokoi: 2 Liczba sypialni: 1 Typ kuchni: aneks kuchenny - połączony z salonem Rodzaj kuchni: aneks kuchenny Podłoga kuchni: wylewka Typ łazienki: razem z wc Liczba łazienek: 1 Liczba przedpokoi: 1 Podłoga przedpokoi: wylewka
::LINK DO STRONY
https://sadurscy.pl/offer/BS2-MS-314082
::KONTAKT DO AGENTA
Natalia Słomka + Zobacz kontakt48 577-738-778 Zobacz kontaktnatalia@sadurscy.pl
::DANE BIURA
Oddział BS2, Rynek Pierwotny Przewóz
47 30-081 Kraków Zobacz kontakt12 630-90-45
--------------------------
::GRATIS | Nasza prowizja zawiera: koszt przedwstępnej notarialnej umowy sprzedaży nieruchomości z rynku wtórnego. ::GWARANCJA | Gwarancja zwrotu zadatku. Więcej informacji na sadurscy.pl/zwrot-zadatku/

Ogrzewanie: CENTRALNE

Kontakt do agenta:
Natalia Słomka
Zobacz kontaktnatalia@sadurscy.pl
+ Zobacz kontakt48 577-738-778

Oceń ofertę


0


26 wydruk błąd schowek

Ostatnio przeglądane

 

 

 

pobieranie

Pobierz wzór umowy

Umowa przedwstępna sprzedaży

wybierz plik do pobrania
doc pdf

 

 

Deweloperzy

);