Prosimy, odblokuj wyświetlanie reklam w naszym serwisie, są one związane z rynkiem nieruchomości.
To dzięki nim masz darmowy dostęp do naszych treści.

Z pozdrowieniami zespół KRN.pl :)


telefon

wiadomość

mapa

Mieszkanie, Kraków, Dębniki, ul. Soroki

Mieszkanie na sprzedaż Kraków (woj. Małopolskie), Dębniki, ul. Soroki

Lokalizacja:

Kraków, Dębniki, ul. Soroki

Powierzchnia:

43.00 m2

Cena:

450 000 zł

Dane szczegółowe

lokalizacja:
Małopolskie, Kraków, Dębniki, ul. Soroki
typ obiektu:
mieszkanie na sprzedaż
cena:
450 000 zł
pokoi:
2
piętro:
1
ilość pięter w budynku:
2
powierzchnia:
43.00 m2
powierzchnia dodatkowa:
balkon
media:
gaz
numer ogłoszenia:
PNO943294
data dodania:
09-04-2026
data modyfikacji:
09-04-2026
jakość wypełnienia oferty:
88%

Szczegóły oferty

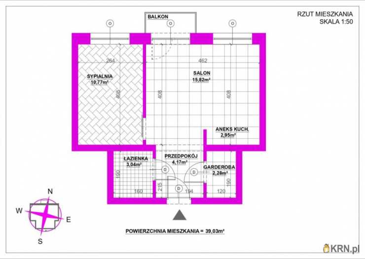
OFERTA BEZ PROWIZJI ZE STRONY KUPUJĄCYCHOferujemy na sprzedaż mieszkanie dwupokojowe o powierzchni 39 mkw, zlokalizowane w Krakowie - Klinach, przy ul. Soroki.. Dodatkowo do lokalu przynależy przestronna piwnica o powierzchni 4mkw. Mieszkanie wymaga gruntownego remontu (poza oknami, które zostały wymienione na nowe, trzyszybowe w grudniu 2024 r.). Mieści się na osiedlu składającym się z kilkunastu domów w zabudowie szeregowej. Układ pomieszczeń- przedpokój,- salon z aneksem kuchennym,- sypialnia,- schowek/garderoba,- łazienka.Lokalizacja- Kliny Zacisze - w najbliższym sąsiedztwie Opatkowic- ok. 15 minut do Ronda Matecznego- szybki wyjazd na autostradę A4 i obwodnicę- dogodny dojazd na lotnisko- przystanek autobusowy tuż przy budynku (linie: 104, 136, 151, 191, 194, 494, 608)- w pobliżu Lasek Wolski, Zalew Kryspinów, Ogród Zoologiczny w Krakowie, liczne ścieżki rowerowe i tereny rekreacyjne- w najbliższym otoczeniu punkty handlowo-usługowe (między innymi: market Avita, Żabka, paczkomat, fryzjer, gabinet kosmetyczny), a także przychodnia, szpital Na Klinach, szkoła, przedszkole, żłobekTo idealna propozycja zarówno dla pary, jak i singielki/singla.Zapraszam na Dzień Otwarty w dniu 15 kwietnia (środa). W celu ustalenia dokładnej godziny Państwa wizyty proszę o kontakt telefoniczny.Wojciech Piotrowski

Oceń ofertę


0


11 wydruk błąd schowek

Ostatnio przeglądane

 

 

 

pobieranie

Pobierz wzór umowy

Umowa przedwstępna sprzedaży

wybierz plik do pobrania
doc pdf

 

 

Deweloperzy

);