Prosimy, odblokuj wyświetlanie reklam w naszym serwisie, są one związane z rynkiem nieruchomości.
To dzięki nim masz darmowy dostęp do naszych treści.

Z pozdrowieniami zespół KRN.pl :)


telefon

wiadomość

mapa

Mieszkanie, Lubań

Mieszkanie na sprzedaż Lubań (woj. Dolnośląskie)

Lokalizacja:

Lubań, , ul.

Powierzchnia:

28.90 m2

Cena:

75 000 zł

Dane szczegółowe

lokalizacja:
Dolnośląskie, Lubań
typ obiektu:
mieszkanie na sprzedaż
cena:
75 000 zł
pokoi:
1
piętro:
1
powierzchnia:
28.90 m2
numer ogłoszenia:
12205/3186/OMS
data dodania:
28-03-2026
data modyfikacji:
28-03-2026
jakość wypełnienia oferty:
58%

Szczegóły oferty

Lubań, dnia 26 marca 2026 roku

GGNiR.6840.8.5.2024


O G Ł O S Z E N I E

Na podstawie art. 39 ust.2 ustawy z dnia 21 sierpnia 1997 r. o gospodarce nieruchomościami (Dz.U. z 2024 roku, poz. 1145 ze zm.), § 13 Rozporządzenia Rady Ministrów z dnia 14 września 2004 roku w sprawie sposobu i trybu przeprowadzania przetargów oraz rokowań na zbycie nieruchomości (Dz.U. z 2021 roku, poz. 2213 ze zm.), §3 ust. 2 pkt 1) Uchwały Nr XXXII/221/2020 Rady Miasta Lubań z dnia 30 grudnia 2020 roku w sprawie zasad gospodarowania nieruchomościami stanowiącymi własność Gminy Miejskiej Lubań (Dz. Urz. Woj. Doln. z 2021 roku, poz. 244 ze zm.), Zarządzenia Nr 160/2025 Burmistrza Miasta Lubań z dnia 22 lipca 2025 roku w sprawie podania do publicznej wiadomości wykazu nieruchomości stanowiących własność Gminy Miejskiej Lubań przeznaczonych do sprzedaży w formie przetargu oraz Zarządzenia Nr 63/2026 Burmistrza Miasta Lubań z dnia 17 marca 2026 roku w sprawie obniżenia ceny wywoławczej w trzecim przetargu ustnym nieograniczonym na sprzedaż nieruchomości stanowiącej własność Gminy Miejskiej Lubań będącej lokalem mieszkalnym nr 4 znajdującym się w budynku położonym w Lubaniu przy ulicy Leśnej 11

B U R M I S T R Z M I A S T A L U B A Ń
o g ł a s z a
trzeci przetarg ustny nieograniczony

na sprzedaż lokalu mieszkalnego Nr 4 znajdującego się w budynku położonym w Lubaniu przy ul. Leśnej 11 wraz z udziałem we współwłasności nieruchomości gruntowej (działka nr 27, AM 15, Obręb V o powierzchni 105 m2, JG1L/ Zobacz kontakt00016302/2)


Widok elewacji frontowej – Leśna 11

Widok lokalu

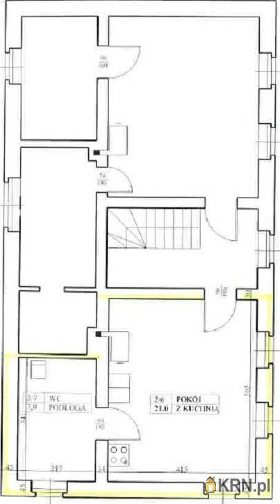
Rzut 1-go piętra


¨ Leśna 11/4
Pierwszy przetarg ustny nieograniczony na sprzedaż przedmiotowej nieruchomości został przeprowadzony w dniu 24 października 2025 roku zgodnie z ogłoszeniem z dnia 22 września 2025 roku i zakończył się wynikiem negatywnym z uwagi na brak osób zainteresowanych.

Drugi przetarg ustny nieograniczony na sprzedaż przedmiotowej nieruchomości został przeprowadzony w dniu 25 lutego 2026 roku zgodnie z ogłoszeniem z dnia 19 stycznia 2026 roku i zakończył się wynikiem negatywnym z uwagi na brak osób zainteresowanych.


Przedmiotowy lokal mieszkalny o powierzchni użytkowej 28,90 m2 położony jest na drugiej kondygnacji wielorodzinnego budynku mieszkalnego zlokalizowanego w Lubaniu przy ulicy Leśnej 11 i składa się z pokoju z kuchnią o powierzchni 21,00 m2 i wc o powierzchni 7,90 m2. Do lokalu mieszkalnego nie przynależy żadne pomieszczenie przynależne.

Udział ułamkowy przypisany do przedmiotowego lokalu mieszkalnego we współwłasności części wspólnych budynku i nieruchomości gruntowej wynosi 17,4% (174/1000).

Przedmiotowa nieruchomość nie jest obciążona długami, prawami ani roszczeniami na rzecz osób trzecich.

Układ funkcjonalny lokalu przeciętny. Podłogi w mieszkaniu drewniane, wyłożone częściowo płytami pilśniowymi. Stolarka okienna z pcv, drzwi drewniane płycinowe. Ogrzewanie lokalu – piecowe. Wysokość pomieszczeń mieszkalnych 2,47 m. Lokal mieszkalny o przeciętnej funkcjonalności. Przedmiotowy lokal mieszkalny znajduje się w stanie wymagającym kapitalnego remontu. Wymiany na nowe wymagają wszystkie instalacje wewnętrzne (instalacja elektryczna, wodna, kanalizacyjna i gazowa – w dniu wyceny lokal nie posiada przyłącza instalacji elektrycznej i gazowej). Nowego rozwiązania wymaga system ogrzewania lokalu, ponieważ znajdujący się w nim piec kaflowy znajduje się w złym stanie technicznym. Wymiana instalacji wymusi wykonanie nowych tynków oraz okładzin ścian. Wymiany na nowe wymagają okna, drzwi wewnętrzne, zewnętrzne oraz wykładziny podłogowe.

Nieruchomość gruntowa zabudowana wielorodzinnym budynkiem mieszkalnym przy ulicy Leśnej 11 zlokalizowana jest w pośredniej strefie lokalizacyjnej miasta Lubania, bezpośrednio przy ulicy Leśnej. Budynek wolnostojący, dwukondygnacyjny z poddaszem użytkowym, w małej części podpiwniczony. Budynek wzniesiony w technologii tradycyjnej w okresie międzywojennym, jako typowa kamienica mieszkalna. Budynek wyposażony jest w instalacje: energii elektrycznej, wodną (sieć miejska), kanalizacyjną (z odprowadzeniem do kanalizacji miejskiej), gazową, ogrzewanie lokali mieszkalnych – piecowe lub co indywidualne dla lokali.

W budynku znajduje się sześć lokali mieszkalnych.

Zgodnie z Uchwałą Rady Miasta Lubania nr XXXVIII/284/2005 z dnia 27 września 2005 r. w sprawie miejscowego planu zagospodarowania przestrzennego obszaru położonego w śródmieściu miasta Lubania, przedmiotowa nieruchomość zabudowana budynkiem wielorodzinnym, położona jest na obszarze oznaczonym symbolem planu 1MN21 – tereny zabudowy mieszkaniowej jednorodzinnej, - strefie OW ochrony archeologicznej.

Lokal mieszkalny Nr 4 można oglądać od poniedziałku do piątku w godzinach od 12.00 do 14.00 po uprzednim telefonicznym umówieniu terminu z Dyrektorem Administracji Mieszkań Komunalnych w Lubaniu, 59–800 Lubań Plac Szarych Szeregów 4 (tel. Zobacz kontakt75 722 26 58).

Cena wywoławcza nieruchomości stanowi kwota 75.000,00 zł (słownie: siedemdziesiąt pięć tysięcy złotych 00/100), na którą składa się:
¨ Cena lokalu mieszkalnego - 73.822,00 zł, tj. 98,4293 % ceny
¨ Cena ułamkowej części gruntu - 1.178,00 zł, tj. 1,5707 % ceny

Wadium 10.000,00 zł (słownie: dziesięć tysięcy złotych 00/100).


Przetarg odbędzie się w dniu 27 kwietnia 2026 roku (poniedziałek) o godzinie 11:00 w budynku Urzędu Miasta Lubania, ul. 7 Dywizji 14, I piętro, sala Nr 11.


Zgodnie z §14 pkt.3 Rozporządzenia Rady Ministrów z dnia 14 września 2004 roku w sprawie sposobu i trybu przeprowadzenia przetargów oraz rokowań na zbycie nieruchomości (Dz. U. z 2021 roku, poz. 2213 ze zm.), postąpienie ustalone zostanie z uczestnikami przetargu i nie może wynosić mniej niż 1% ceny wywoławczej, z zaokrągleniem w górę do pełnych dziesiątek złotych. Licytacji podlegać będzie stawka wywoławcza. Przetarg jest ważny bez względu na liczbę uczestników, jeżeli chociaż jeden uczestnik zaoferuje cenę o co najmniej jedno postąpienie powyżej ceny wywoławczej.

Warunkiem wzięcia udziału w przetargu jest wpłacenie wadium najpóźniej do dnia 20 kwietnia 2026 roku włącznie na rachunek bankowy Urzędu Miasta Lubań Nr Zobacz kontakt60 2030 004 Zobacz kontakt5 1110 0000 0080 6550 prowadzony przez BNP Paribas Bank Polska S.A. Oddział Lubań ul. 7 Dywizji 14. Dla wpłat gotówkowych dokonywanych w Monetia Sp.z.o.o. ul. 7 Dywizji 3 w Lubaniu od dnia 12.07.2021r. pobierana jest prowizja w wysokości:
- 3,00 zł od wpłat do 1.000,00 zł
- 0,3% wpłacanej kwoty od wpłat powyżej 1.000,00 zł.

W tytule wpłaty wadium oprócz danych uczestnika przetargu należy dopisać: „Przetarg lokal Leśna 11/4”.

Wadium należy wnieść w pieniądzu – gotówką lub przelewem na podany powyżej rachunek bankowy Urzędu Miasta Lubań. W przypadku wpłacenia wadium w formie przelewu bankowego wpłata powinna być dokonana odpowiednio wcześniej, tak aby w dniu 20 kwietnia 2026 roku wadium znajdowało się na rachunku bankowym Urzędu Miasta Lubań. Za datę wniesienia wadium uważa się datę wpływu środków na rachunek Urzędu Miasta Lubań.

W przypadku osób fizycznych pozostających w związku małżeńskim i posiadających wspólność ustawową, wadium na przetarg należy wnosić przez oboje małżonków (w tytule wpłaty należy podać imiona i nazwiska osób przystępujących do przetargu).

Wadium wpłacone przez uczestnika przetargu, który wygrał przetarg, zalicza się na poczet ceny nabycia nieruchomości w dniu zapłaty pełnej ceny należności. Pozostałym uczestnikom przetargu wadium zostanie zwrócone w ciągu trzech dni od dnia zamknięcia przetargu.
Wadium ulega przepadkowi w razie uchylenia się uczestnika, który przetarg wygrał od podpisania umowy notarialnej.
Warunkiem udziału w przetargu jest wniesienie wadium w podanym wyżej terminie oraz:
- w przypadku, gdy uczestnikiem przetargu jest osoba fizyczna pozostająca w związku małżeńskim, konieczne jest złożenie oświadczenia o obowiązującym w małżeństwie ustroju majątkowym. Jeżeli nabycie nieruchomości ma nastąpić do majątku wspólnego, warunkiem dopuszczenia do przetargu jest: osobiste stawiennictwo obojga małżonków do przetargu lub przedłożenie pisemnej zgody współmałżonka na dokonanie czynności prawnych związanych z udziałem w przetargu, przy czym podpis powinien być poświadczony notarialnie. Jeżeli zbycie nieruchomości ma nastąpić do majątku osobistego, warunkiem dopuszczenia do przetargu jest przedłożenie wypisu aktu notarialnego ustanawiającego rozdzielność majątkową lub – odpis orzeczenia sądowego ustanawiającego rozdzielność majątkową lub pisemne oświadczenie obojga małżonków o nabywaniu nieruchomości do majątku osobistego jednego z nich z podpisami poświadczonymi notarialnie.
Osoba wyłoniona w wyniku przetargu jako nabywca nieruchomości, przy zawarciu notarialnej umowy sprzedaży, obowiązana jest przedłożyć w formie aktu notarialnego pisemną zgodę współmałżonka na zawarcie umowy sprzedaży, na warunkach ustalonych w przetargu. Wymóg ten nie obowiązuje, jeżeli małżonkowie przystąpią do podpisania notarialnej umowy sprzedaży,
- w przypadku, gdy uczestnikiem przetargu jest osoba fizyczna prowadząca działalność w formie spółki cywilnej – okazanie umowy spółki, REGON-u spółki, odpowiedniej uchwały pozwalającej na odpłatne nabycie nieruchomości bądź stosownego umocowania do działania w imieniu spółki (pozwalające na odpłatne nabycie nieruchomości),
- w przypadku, gdy uczestnikiem przetargu jest osoba fizyczna prowadząca działalność gospodarczą – ważny dokument potwierdzający tożsamość oraz aktualne zaświadczenie o wpisie do Centralnej Ewidencji i Informacji o Działalności Gospodarczej,
- w przypadku, gdy uczestnikiem przetargu jest osoba prawna lub podmiot nie posiadający osobowości prawnej, a prowadzący działalność gospodarczą – przedłożenie aktualnego odpisu z Krajowego Rejestru Sądowego oraz odpowiedniej uchwały wyrażającej zgodę na wzięcie udziału w przetargu i nabycie nieruchomości. Za aktualne uważa się odpisy z KRS sporządzone nie wcześniej niż 1 miesiąc przed dniem przetargu, jak również informacje odpowiadające odpisowi aktualnemu na podstawie art. 4 ust 4aa ustawy z dnia 20 sierpnia 1997 roku o Krajowym Rejestrze Sądowym (Dz.U. z 2025r., poz. 869 ze zm.) wygenerowane nie wcześniej niż 1 miesiąc przed dniem przetargu,
- w przypadku, gdy uczestnikiem przetargu jest osoba będąca cudzoziemcem – uzyskanie zezwolenia Ministra Spraw Wewnętrznych i Administracji na nabycie w/w nieruchomości z uwzględnieniem art. 8 ustawy z dnia 24 marca 1920 roku o nabywaniu nieruchomości przez cudzoziemców (Dz.U. z 2017 r., poz. 2278, ze zm.), a w przypadku wygrania przetargu, okazanie komisji przetargowej promesy lub zezwolenia. Jeżeli nabycie nieruchomości przez cudzoziemca nie wymaga zezwolenia Ministra Spraw Wewnętrznych, nabywca zobowiązany jest do złożenia oświadczenia w tym zakresie w notarialnej umowie nabycia.

W przypadku, gdy osoba zainteresowana wzięciem udziału w przetargu, która spełniła warunku udziału nie może stawić się osobiście w dniu przetargu, wskazana przez nią osoba powinna okazać stosowne pełnomocnictwo. W przypadku umocowania do nabycia nieruchomości pełnomocnictwo powinno określać przedmiot czynności oraz rodzaj czynności. W pełnomocnictwie należy zatem wskazać, iż pełnomocnik jest umocowany do nabycia w imieniu mocodawcy i na rzecz mocodawcy nieruchomości stanowiących przedmiot przetargu. Pełnomocnictwo do udziału w przetargu powinno być stwierdzone dokumentem z podpisem urzędowo poświadczonym (pełnomocnictwo notarialne).

Wraz z pełnomocnictwem należy przedłożyć dowód wniesienia opłaty skarbowej w wysokości 17,00 zł (słownie: siedemnaście złotych 00/100), której należy dokonać na rachunek bankowy Nr Zobacz kontakt11 2030 004 Zobacz kontakt5 1110 0000 0289 2350. Od obowiązku wnoszenia opłaty skarbowej można być zwolnionym w przypadku, gdy pełnomocnikiem strony jest rodzina, zstępni, wstępni lub rodzeństwo.

Wysokość opłat i terminy ich wnoszenia:
Lokal + grunt – 100% ceny wylicytowanej na przetargu;
100% ceny uzyskanej w przetargu za lokal mieszkalny i grunt płatne przez nabywcę najpóźniej w dniu zawarcia aktu notarialnego, przed jego podpisaniem.

Poza wylicytowaną ceną za lokal mieszkalny i grunt nabywca zobowiązany jest do pokrycia kosztów zawarcia aktu notarialnego i opłat sądowych.

Zgodnie z zapisami ustawy z dnia 11 marca 2004 roku o podatku od towarów i usług (Dz. U. z 2025 roku, poz. 775 ze zm.) sprzedaż lokalu wraz z udziałem we współwłasności nieruchomości gruntowej zwolniona jest z uiszczenia podatku VAT.

Informacje o zaliczkach i innych opłatach związanych z utrzymaniem nieruchomości wspólnej dotyczących przedmiotowego lokalu można uzyskać u zarządcy budynku, którym jest Lubańskie Towarzystwo Budownictwa Społecznego Sp.z.o.o. z siedzibą w Lubaniu przy ul. Łącznej 5, 59-800 Lubań.

O terminie i miejscu zawarcia umowy sprzedaży nabywca zostanie powiadomiony w ciągu 21 dni od daty zamknięcia przetargu.
Jeżeli nabywca nieruchomości nie stawi się bez usprawiedliwienia w miejscu i terminie oznaczonym w zawiadomieniu, Burmistrz Miasta Lubań może odstąpić od zawarcia aktu notarialnego, a wpłacone wadium nie podlega zwrotowi.
Przetarg może być odwołany po uprzednim podaniu do publicznej wiadomości ważnych przyczyn jego odwołania.



Ogłoszenie dostępne jest na tablicy ogłoszeń w siedzibie Urzędu Miasta Lubań ul. 7 Dywizji 14, na stronie internetowej www.luban.pl w zakładce „Nieruchomości”, na stronie internetowej Biuletynu Informacji Publicznej Urzędu Miasta Lubań http://bip.miastoluban.pl oraz w Wydziale Gospodarki Gruntami, Nieruchomościami i Rolnictwa Urzędu Miasta Lubań ul. 7 Dywizji 14, I piętro, pokój Nr 5, Tel.: + Zobacz kontakt48 75 646 44 22.



Szczegółowe informacje o przetargu można uzyskać w Wydziale Gospodarki Gruntami, Nieruchomościami i Rolnictwa Urzędu Miasta Lubania, ul. 7 Dywizji 14, I piętro, pokój Nr 5, tel. + Zobacz kontakt48 75 64 64 422.

z up. Burmistrza
Magdalena Wydra
Zastępca Burmistrza




Kontakt:
Urząd Miasta Lubań
tel: Zobacz kontakt75 722 26 58
Zobacz kontaktboi.um@luban.pl


Oferta wysłana z programu dla biur nieruchomości ASARI CRM (asaricrm.com)



Kontakt:
Numer telefonu: Zobacz kontakt75 722 26 58
Adres email: Zobacz kontaktboi.um@luban.pl

Oceń ofertę


0


17 wydruk błąd schowek

Ostatnio przeglądane

 

 

 

pobieranie

Pobierz wzór umowy

Umowa przedwstępna sprzedaży

wybierz plik do pobrania
doc pdf

 

 

Deweloperzy

);