Prosimy, odblokuj wyświetlanie reklam w naszym serwisie, są one związane z rynkiem nieruchomości.
To dzięki nim masz darmowy dostęp do naszych treści.

Z pozdrowieniami zespół KRN.pl :)


telefon

wiadomość

mapa

Mieszkanie, Kraków, Stare Miasto, ul. św. Krzyża

Mieszkanie na sprzedaż Kraków (woj. Małopolskie), Stare Miasto, ul. św. Krzyża

Lokalizacja:

Kraków, Stare Miasto, ul. św. Krzyża

Powierzchnia:

250.00 m2

Cena:

5 250 000 zł

Dane szczegółowe

lokalizacja:
Małopolskie, Kraków, Stare Miasto, ul. św. Krzyża
typ obiektu:
mieszkanie na sprzedaż
cena:
5 250 000 zł
pokoi:
7
piętro:
2
ilość pięter w budynku:
3
powierzchnia:
250.00 m2
powierzchnia dodatkowa:
balkon, piwnica
numer ogłoszenia:
BS1-MS-312538-6
data dodania:
19-12-2025
data modyfikacji:
19-12-2025
jakość wypełnienia oferty:
94%

Szczegóły oferty


ENGLISH BELOW
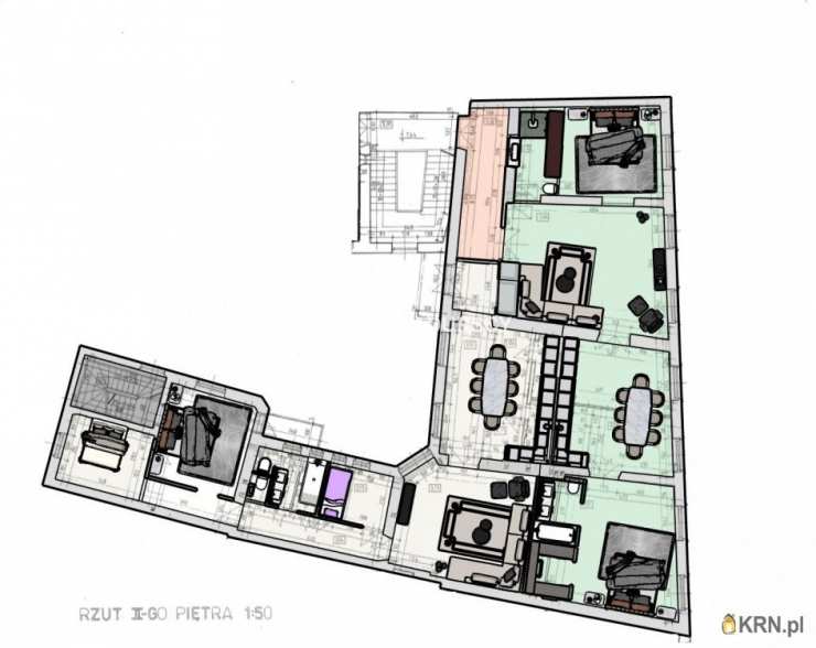
Unikatowa inwestycja w samym sercu Krakowa - 250 m² w odnowionej kamienicy przy ul. Św. Krzyża
Tylko w Biurze Bracia Sadurscy - na sprzedaż niepowtarzalna przestrzeń o łącznej powierzchni 250m², zajmującą niemal całe piętro w eleganckiej, w pełni odrestaurowanej kamienicy z windą, położonej w jednej z najbardziej prestiżowych lokalizacji Starego Miasta -
przy ul. Św. Krzyża, zaledwie 250 metrów od Rynku Głównego.

Potencjał inwestycyjny
To idealna propozycja dla inwestorów poszukujących nieruchomości z wysoką stopą zwrotu. Układ piętra oraz metraż umożliwiają podział na kilka mniejszych lokali - apartamentów lub mikroapartamentów przeznaczonych pod wynajem krótkoterminowy (Airbnb, Booking.com) lub najem długoterminowy klasy premium. Nieruchomość może być wykorzystywana jako siedziba firmy w topowej lokalizacji.
Dzięki znakomitej lokalizacji - 250m od Rynku Głównego, 850m od Wawelu, 950m od Dworca Głównego - nieruchomość gwarantuje stałe obłożenie i atrakcyjny przychód pasywny przez cały rok.
Atuty nieruchomości
- Powierzchnia:
250 m²
- blisko całe piętro z dużym potencjałem aranżacyjnym
- Piętro: 2 z 3
- Stan: do własnej aranżacji / remontu - możliwość stworzenia wyjątkowych apartamentów Premium
- Budynek: po pełnej rewitalizacji, reprezentacyjna klatka schodowa, nowoczesna winda
- Księga wieczysta:
pełna własność

Lokalizacja
Ulica Św. Krzyża to jedna z najbardziej urokliwych i pożądanych lokalizacji Krakowa - spokojna boczna uliczka Starego Miasta, w bezpośrednim sąsiedztwie tętniącego życiem centrum. W okolicy znajdują się liczne restauracje, kawiarnie, puby, bary, galerie sztuki oraz zabytki, a jednocześnie zapewniony jest komfort i cisza charakterystyczna dla prestiżowych kamienic w ścisłym centrum.
Dlaczego warto:
- Prestiżowa lokalizacja w samym centrum Krakowa
- Kamienica po kompleksowej renowacji z windą
- Możliwość podziału na kilka luksusowych apartamentów
- Idealna inwestycja pod najem krótkoterminowy lub długoterminowy
- Pełna własność - nieruchomość objęta księgą wieczystą
Zapraszam do kontaktu w celu uzyskania szczegółowych informacji oraz umówienia prezentacji. To wyjątkowa okazja, by nabyć przestrzeń o ogromnym potencjale w jednej z najbardziej pożądanych lokalizacji Krakowa.
Kontakt
Norbert Borowiak
Zobacz kontakt577 072 177
Zobacz kontaktnorbert@sadurscy.pl
Biuro nie pobiera prowizji od kupującego. Zapraszamy do współpracy.
---------------------
Unique Investment Opportunity in the Heart of Kraków - 250 m² in a Fully Renovated Tenement House on Św. Krzyża Street
For sale:
a unique property with a total area of 250 m², occupying almost the entire floor of an elegant, fully refurbished historic tenement house with an elevator, located in one of the most prestigious areas of Kraków’s Old Town - on Św. Krzyża Street, just 250 meters from the Main Market Square.
Investment Potential
An ideal opportunity for investors seeking high-return real estate in a prime central location. The floor layout and generous size allow for division into several smaller units - apartments or micro-apartments suitable for short-term rentals (Airbnb, Booking.com) or long-term premium leases. The property may serve as a company’s registered office in a prime location.
Thanks to its exceptional location - only 250 m from the Main Square, 850 m from Wawel Castle, and 950 m from the Main Railway Station - the property guarantees high year-round occupancy and stable passive income.
Property Highlights

Area:
250 m² - nearly a full floor with exceptional layout flexibility
Floor:
2nd out of 3
Condition:
to be finished / renovated - possibility to create bespoke premium apartments
Building:
fully revitalized tenement, elegant stairwell, modern elevator
Ownership:
full freehold (registered land and mortgage deed)
Location
Św. Krzyża Street is one of the most charming and desirable addresses in Kraków - a quiet side street of the Old Town, just steps from the vibrant city center. The area offers a wide selection of restaurants, cafés, pubs, bars, art galleries, and historical landmarks, while maintaining the comfort and tranquility characteristic of prestigious historic buildings in central Kraków.
Key Advantages
- Prime, prestigious location in the very heart of Kraków
- Fully renovated building with elevator
- Possibility to divide into multiple luxury apartments
- Ideal for short-term or long-term rental investment
- Full ownership - property with a registered land and mortgage deed
For more details and to arrange a viewing, please contact:
Norbert Borowiak
Zobacz kontakt577 072 177
Zobacz kontaktnorbert@sadurscy.pl
The agency charges no commission from the buyer. We warmly invite cooperation and inquiries from private investors and agencies alike.
::DODATKOWE INFORMACJE
Rodzaj budynku: kamienica Dozór budynku: brak Głośność: umiarkowanie ciche Widok: panorama miasta Gaz: jest Woda: ciepła - piecyk gazowy Dojazd: kostka brukowa Otoczenie: centrum miasta Ogrzewanie: gazowe Komunikacja publ.: miejska, autobus miejski, tramwaj Winda: TAK Liczba wind: 1 Rozkład: pełen rozkład Usytuowanie: trójstronne Opłaty w czynszu: zaliczka na fundusz remontowy, wywóz śmieci, woda/ryczałt na wodę, Winda, administracja Opłaty wg liczników: prąd, gaz Rodzaj mieszkania: jednopoziomowe Garaż: brak Piwnica [m2]: 5 Piwnica: TAK Stan lokalu: do generalnego remontu Okna: drewniane Instalacje: niewymienione Balkon: jest Liczba balkonów: 2 Powierzchnia użytkowa [m2]: 250 Rok budowy: 1450 Liczba pokoi: 7 Wysokość pomieszczeń [m]: 3,4500 Liczba sypialni: 7 Powierzchnia pokoi [m2]: 33, 40, 35, 15, 20, 72, 14, Podłogi pokoi: parkiet Ściany pokoi: malowane, gładzie gipsowe Wystawa okien - pokoje : Pd-Wsch, Pn Typ kuchni: aneks kuchenny Rodzaj kuchni: do remontu Powierzchnia kuchni [m2]: 10 Podłoga kuchni: parkiet Wystawa okien - kuchnia: Pn-Zach Typ łazienki: osobno z wc Liczba łazienek: 2 Powierzchnia łazienki [m2]: 4 Glazura łazienki: glazura Podłoga łazienki: płytki Wyposażenie łazienki: WC, wanna Ściany łazienki: inne Wystawa okien - łazienka : Pn-Zach Liczba WC: 2 Powierzchnia WC: 2 Glazura WC: glazura Podłoga WC: płytki Ściany WC: gładzie gipsowe Liczba przedpokoi: 3 Powierzchnia przedpokoi [m2]: 4
::LINK DO STRONY
https://sadurscy.pl/offer/BS1-MS-312538
Zobacz Wirtualny Spacer: https://my.matterport.com/show/?m=pZeTWaizBZC
::KONTAKT DO AGENTA
Norbert Borowiak + Zobacz kontakt48 577-072-177 Zobacz kontaktnorbert@sadurscy.pl
::DANE BIURA
Oddział BS1, Kapelanka Kapelanka 1A/1 30-347 Kraków Zobacz kontakt12 429-25-12

Ogrzewanie: Gazowe

Kontakt do agenta:
Norbert Borowiak
Zobacz kontaktnorbert@sadurscy.pl
+ Zobacz kontakt48 577-072-177

Oceń ofertę


0


10 wydruk błąd schowek

Ostatnio przeglądane

 

 

 

pobieranie

Pobierz wzór umowy

Umowa przedwstępna sprzedaży

wybierz plik do pobrania
doc pdf

 

 

Deweloperzy

);