Prosimy, odblokuj wyświetlanie reklam w naszym serwisie, są one związane z rynkiem nieruchomości.
To dzięki nim masz darmowy dostęp do naszych treści.

Z pozdrowieniami zespół KRN.pl :)


telefon

wiadomość

mapa

Mieszkanie, Kraków, Stare Miasto

Mieszkanie na sprzedaż Kraków (woj. Małopolskie), Stare Miasto

Lokalizacja:

Kraków, Stare Miasto, ul.

Powierzchnia:

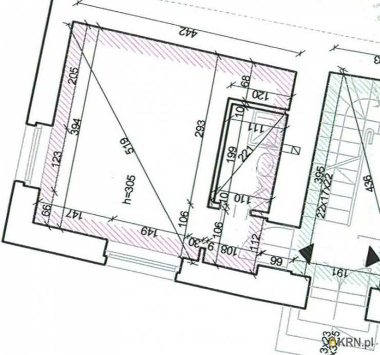
17.00 m2

Cena:

322 000 zł

Dane szczegółowe

lokalizacja:
Małopolskie, Kraków, Stare Miasto
typ obiektu:
mieszkanie na sprzedaż
cena:
322 000 zł
pokoi:
1
piętro:
parter
ilość pięter w budynku:
3
powierzchnia:
17.00 m2
numer ogłoszenia:
SBK-MS-19304
data dodania:
25-11-2025
data modyfikacji:
25-11-2025
jakość wypełnienia oferty:
82%

Szczegóły oferty

|
OFERUJEMY PAŃSTWU DO SPRZEDAŻY
mieszkanie o powierzchni
17 m2 , zlokalizowane w rejonie Placu Biskupiego / ul. Długiej. Mieszkanie znajduje się w 3-piętrowej kamienicy z 1914 roku, na parterze. Mieszkanie do remontu i własnej aranżacji. Typu STUDIO składa się z pokoju i łazienki. Okna PCV, ogrzewanie gazowe z kotłowni w budynku.
Lokalizacja jest idealna - do Rynku Głównego 700 m. Kamienica znajduje się w świetnym punkcie komunikacyjnym, blisko sklepów, restauracji i wszystkich udogodnień, jakie oferuje centrum Krakowa. Doskonała lokalizacja i dojazd w każdym kierunku miasta.

Zapraszam na prezentację.
Kontakt w sprawie oferty; Urszula Bugajska Zobacz kontakt530 260 261
Biuro Nieruchomości SZEMBEK EWA
Grodzka 41
Numer licencji pośrednika odpowiedzialnego zawodowo 2240
Powyższa oferta ma charakter informacyjny i nie stanowi oferty handlowej w rozumieniu Kodeksu Cywilnego oraz innych właściwych przepisów prawnych ::DODATKOWE INFORMACJE |
Rodzaj budynku: kamienica |
Głośność: ciche |
Widok: na inne budynki |
Woda: jest |
Dojazd: asfalt |
Otoczenie: centrum miasta |
Ogrzewanie: C.O. GAZOWE |
Komunikacja publ.: MPK, autobus miejski, miejska, tramwaj, autobus |
Winda: NIE |
Rozkład: jednostronne |
Usytuowanie: jednostronne |
Opłaty wg liczników: prąd |
Rodzaj mieszkania: studio |
Stan lokalu: do remontu |
Okna: PCV |
Balkon: brak |
Powierzchnia użytkowa [m2]: 17 |
Rok budowy: 1914 |
Liczba pokoi: 1 |
Liczba sypialni: 1 |
Typ łazienki: razem z wc |
Liczba łazienek: 1 |
::DANE BIURA |
Biuro Nieruchomości Szembek Ewa |
Grodzka 41 |
31-001 Kraków |
Zobacz kontakt12/432 43 90 |
www.ewaszembek.pl
|
Oferta wysłana z systemu Galactica Virgo
Ogrzewanie: Gazowe

Kontakt do agenta:
Urszula Bugajska
Zobacz kontakturszula.bugajska@ewaszembek.pl
Zobacz kontakt12/432 43 90
Zobacz kontakt530 260 261

Oceń ofertę


0


30 wydruk błąd schowek

Ostatnio przeglądane

 

 

 

pobieranie

Pobierz wzór umowy

Umowa przedwstępna sprzedaży

wybierz plik do pobrania
doc pdf

 

 

Deweloperzy

);