Prosimy, odblokuj wyświetlanie reklam w naszym serwisie, są one związane z rynkiem nieruchomości.
To dzięki nim masz darmowy dostęp do naszych treści.

Z pozdrowieniami zespół KRN.pl :)


telefon

wiadomość

mapa

Lokal użytkowy, Kraków, Bronowice

Lokal użytkowy na sprzedaż Kraków (woj. Małopolskie), Bronowice

Lokalizacja:

Kraków, Bronowice, ul.

Powierzchnia:

753.00 m2

Cena:

5 500 000 zł

oferta nieaktualna

Dane szczegółowe

lokalizacja:
Małopolskie, Kraków, Bronowice
typ obiektu:
lokal użytkowy na sprzedaż
cena:
5 500 000 zł
powierzchnia:
753.00 m2
media:
prąd, gaz, woda
numer ogłoszenia:
381250235
data dodania:
31-08-2023
data modyfikacji:
05-11-2025
jakość wypełnienia oferty:
58%

Szczegóły oferty

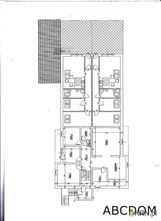
Kraków - Bronowice do sprzedania budynek komercyjny na działce 20,84 ara ~~Do sprzedania wolnostojący budynek komercyjny o powierzchni całkowitej 820 m2, powierzchni użytkowej 753 m2 + duży parking, położony na działce o powierzchni 2084 m2 ( 20,84 ar). ~~Media: woda, kanalizacja, gaz, prąd. ~~Przy budynku duży parking. ~~Budynek jest wolnostojący, dwukondygnacyjny, zbudowany w technologii tradycyjnej murowanej. W 2010 r zrobiono kapitalny remont, nowe instalacje, ocieplenie, tynki wylewki, stolarka zewnętrzna i wewnętrzna.Nowe pokrycie dachu blacha. Wysokość pomieszczeń pierwotna 3 m obecnie 2,70 m (podwieszane sufity). ~~Teren ogrodzony, podwórko ( w tym parking wyłożony kostką brukową). Nieruchomość znajduje się na dużej działce o powierzchni 20,84 ary (w tym możliwość wykorzystania ok.5 ar niezabudowanej działki). ~~Nieruchomość bardzo dobra na działalność gospodarczą typu: hostel, biura, siedziba firmy itp. ~~Dojazd drogą gminną asfaltową, blisko przystanek MPK, wygodny dojazd do centrum miasta, lotniska w Balicach, obwodnicy Krakowa, Business Parku w Zabierzowie. ~~Obecnie wykorzystywany na cele hotelowe: podzielony na 8 samodzielnych mieszkań, ( obecnie 28 pokoi ). Każde z mieszkań posiada oddzielne wejście + własną kuchnię i łazienkę oraz w każdym mieszkaniu oddzielny piec gazowy dwufunkcyjny, własny licznik wody, gazu, prądu. Jest także instalacja internetowa. ~~PARTER ~~- 5 samodzielnych mieszkań (powierzchnie poszczególnych mieszkań: 48,65m2 + 78,70 m2 + 102,04 m2+ 93,59m280,85 m2) ~~PIĘTRO: ~~- 3 samodzielne mieszkania ( powierzchnia poszczególnych mieszkań: 194m2 jest to mieszkanie II-poziomowe + 77,48m2+ 77,48m2 - dwa mieszkania są z dużym tarasem ) ~~. ~~Cena: 5 500 000 zł netto + 23% VAT - 1 265.000 VAT = 6 765 000 zł brutto ~~ZAPRASZAMY....... oferta godna uwagi ...... ~~Więcej informacji udzieli opiekun oferty: Barbara - tel. Zobacz kontakt607 100 103 ~~ABCDOM Biuro Nieruchomości Al. 29 Listopada 75/4, Kraków. ~~Pośrednik odpowiedzialny licencja 4492, tel. Zobacz kontakt12/633-39-33, Zobacz kontakt605 44 88 41 ~~Ogłoszenia umieszczone na naszej stronie nie stanowią oferty w rozumieniu Kodeksu Cywilnego lecz mają charakter informacyjny i mogą ulec zmianie ~~~

Oceń ofertę


3


398 wydruk błąd schowek

Ostatnio przeglądane

 

 

 

pobieranie

Pobierz wzór umowy

Umowa przedwstępna sprzedaży

wybierz plik do pobrania
doc pdf

 

 

Deweloperzy

);