Prosimy, odblokuj wyświetlanie reklam w naszym serwisie, są one związane z rynkiem nieruchomości.
To dzięki nim masz darmowy dostęp do naszych treści.

Z pozdrowieniami zespół KRN.pl :)


telefon

wiadomość

mapa

Lokal użytkowy, Gdynia, Grabówek

Lokal użytkowy na wynajem Gdynia (woj. Pomorskie), Grabówek

Lokalizacja:

Gdynia, Grabówek, ul.

Powierzchnia:

22.27 m2

Cena:

780 zł

Dane szczegółowe

lokalizacja:
Pomorskie, Gdynia, Grabówek
typ obiektu:
lokal użytkowy na wynajem
cena:
780 zł
piętro:
parter
ilość pięter w budynku:
2
powierzchnia:
22.27 m2
media:
prąd, gaz, woda
numer ogłoszenia:
OR017131
data dodania:
05-09-2025
data modyfikacji:
05-09-2025
jakość wypełnienia oferty:
70%

Szczegóły oferty

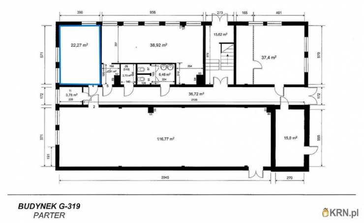
Oferujemy na wynajem lokal biurowy o powierzchni 22,27 m2, usytuowany na parterze budynku biurowego zlokalizowanego w Porcie Gdynia, przy ulicy Budowniczych. Lokal składa się z jednego pomieszczenia o wymiarach 5,71m x 3,90m, z dostępem do dużej ilości światła słonecznego. Przed przekazaniem lokalu najemcy pomieszczenie zostanie wysprzątane i odświeżone. Toalety znajdują się w częściach wspólnych budynku na każdej z kondygnacji. Istnieje dodatkowo możliwość najmu sąsiedniego pomieszczenia magazynowego. Koszt wynajmu wynosi 780,00 zł (35 zł/m2) miesięcznie, dodatkowe opłaty eksploatacyjne 223,00 zł (10 zł/m2) + media według zużycia (płatne proporcjonalnie do zajmowanej powierzchni). Podane kwoty są kwotami netto, należy dodać do nich 23% podatku VAT. Wymagana jest kaucja w wysokości 3-miesięcznego czynszu. Lokalizacja przy ulicy Budowniczych to idealne rozwiązanie dla firm związanych z transportem morskim oraz takich, których funkcjonowanie nie jest uzależnione od napływu klientów "z ulicy". Zapraszamy do kontaktu w celu umówienia się na prezentację!

Kontakt do agenta:
Imię: Natalia
Nazwisko: Sikora-Piernicka
Numer telefonu: Zobacz kontakt58 620 82 11 Kom: Zobacz kontakt572 200 541
Adres email: Zobacz kontaktnatalia@orfin.net.pl

Oceń ofertę


3


318 wydruk błąd schowek

Ostatnio przeglądane

 

 

 

pobieranie

Pobierz wzór umowy

Umowa przedwstępna najmu

wybierz plik do pobrania
doc pdf

 

 

Deweloperzy

);