Prosimy, odblokuj wyświetlanie reklam w naszym serwisie, są one związane z rynkiem nieruchomości.
To dzięki nim masz darmowy dostęp do naszych treści.

Z pozdrowieniami zespół KRN.pl :)


telefon

wiadomość

mapa

Działki, Czechowice-Dziedzice

Działki na sprzedaż Czechowice-Dziedzice (woj. Śląskie)

Lokalizacja:

Czechowice-Dziedzice, , ul.

Powierzchnia:

885 m2

Cena:

330 000 zł

Dane szczegółowe

lokalizacja:
Śląskie, Czechowice-Dziedzice
typ obiektu:
działka na sprzedaż
cena:
330 000 zł
powierzchnia:
885 m2
numer ogłoszenia:
BBN-GS-21557-1
data dodania:
22-11-2025
data modyfikacji:
22-11-2025
jakość wypełnienia oferty:
86%

Szczegóły oferty


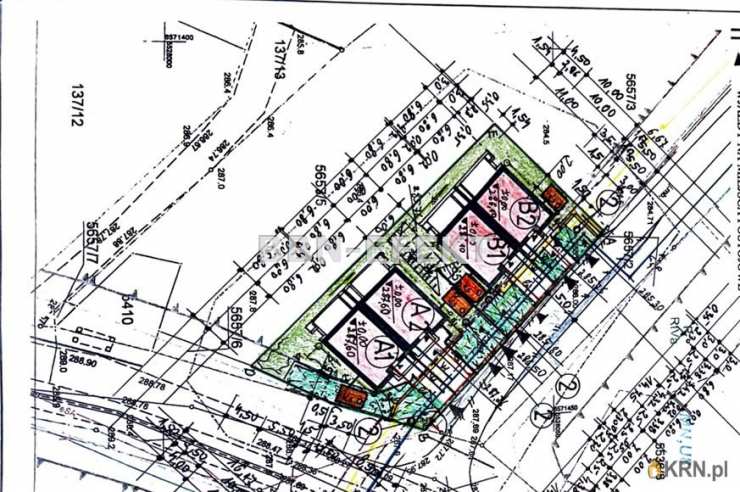
CZECHOWICE - DZIEDZICE
RÓG ULICY MIKOŁAJA KOPERNIKA I PRZEŁĘCZNEJ
GOTOWY PROJEKT INWESTYCYJNY: BUDOWA DWÓCH ZESPOŁÓW BUDYNKÓW BLIŹNIACZYCH- CZTERECH BUDYNKÓW MIESZKALNYCH JEDNORODZINNYCH W ZABUDOWIE BLIŹNIACZEJ NA DZIAŁCE 5657/4

Na sprzedaż działka o powierzchni 885m2 usytuowana na rogu ul. Kopernika i Przełęcznej. Dojazd drogą gminną asfaltową.
Teren płaski, nasłoneczniony w kształcie prostokąta o wymiarach ok. 36mx22m. W okolicy zabudowa jednorodzinna.
Dla terenu obowiązuje MPZP- zabudowa mieszkaniowa z dopuszczeniem funkcji usługowych.
Media: prąd, gaz - na działce, woda w drodze. ::DODATKOWE INFORMACJE
Wymiary działki [m]: 36X22 Ukształtowanie działki: płaska Kształt działki: prostokat Zabudowa działki: brak
::LINK DO STRONY
http://www.bbn-efekt.pl/oferta.aspx?id=1117754
::KONTAKT DO AGENTA
Barbara Jelec BBN EFEKT Nieruchomości Zobacz kontakt33 822 10 32 Zobacz kontakt690 096 966 Zobacz kontaktbasia@bbn-efekt.pl
::DANE BIURA
Bielskie Biuro Nieruchomości EFEKT- Krzysztof Filipek Cieszyńska 132 43-300 Bielsko-Biała Zobacz kontakt519 117 067 www.bbn-efekt.pl
Pośrednik odpowiedzialny zawodowo za wykonanie umowy pośrednictwa: Paweł Walaszek (licencja nr: 14352)
--------------------------
Jako biuro nieruchomości pobieramy za usługę pośrednictwa wynagrodzenie w formie prowizji.
Oferta wysłana z systemu BCK Galactica

Kontakt do agenta:
Barbara Jelec BBN EFEKT Nieruchomości
Zobacz kontaktbasia@bbn-efekt.pl
Zobacz kontakt33 822 10 32
Zobacz kontakt690 096 966

Oceń ofertę


9.99


646 wydruk błąd schowek

Ostatnio przeglądane

 

 

 

pobieranie

Pobierz wzór umowy

Umowa przedwstępna sprzedaży

wybierz plik do pobrania
doc pdf

 

 

Deweloperzy

);