Prosimy, odblokuj wyświetlanie reklam w naszym serwisie, są one związane z rynkiem nieruchomości.
To dzięki nim masz darmowy dostęp do naszych treści.

Z pozdrowieniami zespół KRN.pl :)


telefon

wiadomość

mapa

Działki, Lutom

Działki na sprzedaż Lutom (woj. Wielkopolskie)

Lokalizacja:

Lutom, , ul.

Powierzchnia:

127349 m2

Cena:

999 000 zł

Dane szczegółowe

lokalizacja:
Wielkopolskie, Lutom
typ obiektu:
działka na sprzedaż
cena:
999 000 zł
powierzchnia:
127349 m2
media:
prąd
numer ogłoszenia:
1165280880
data dodania:
29-01-2022
data modyfikacji:
11-06-2025
jakość wypełnienia oferty:
96%

Szczegóły oferty

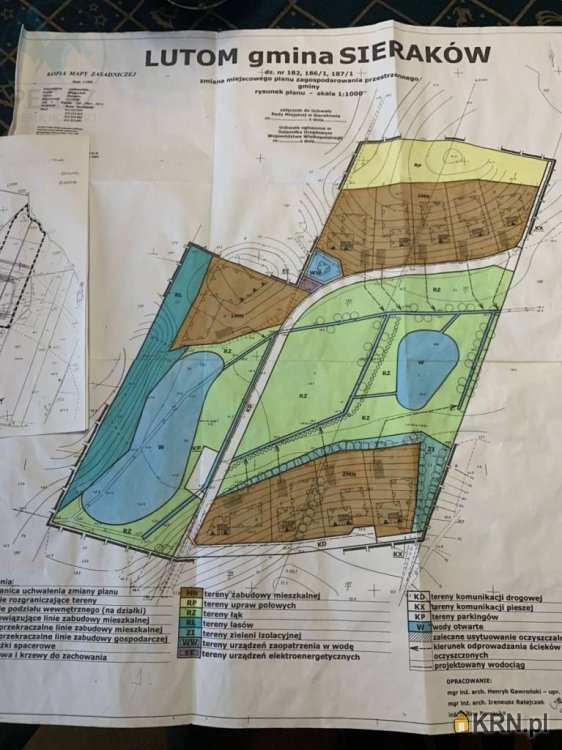
Unikalna okazja inwestycyjna! ~~Szukasz idealnego miejsca na rozwinięcie swojego projektu? Oto propozycja, która spełni Twoje oczekiwania - malowniczo położona, duża działka rolno-budowlana w urokliwym Lutomiu, stanowiąca niepowtarzalną inwestycję życia! ~~Prezentujemy ofertę obejmującą trzy działki rolne, które zgodnie z Miejscowym Planem Zagospodarowania Przestrzennego mają potencjał na podział na aż 10 działek pod zabudowę mieszkaniową. Powierzchnia każdej z działek waha się od 2600 do 6300 m, co daje szerokie możliwości zagospodarowania i rozwoju. ~~Po rekultywacji stawów na terenie działek możliwa będzie ich sprzedaż po znacznie wyższej cenie lub wybudowanie domów z pięknym widokiem na wodę idealnych pod wynajem lub na sprzedaż. ~~Teren jest urozmaicony i niezwykle malowniczy pagórkowaty, częściowo porośnięty drzewami, z dwoma stawami do rekultywacji, co czyni to miejsce jeszcze bardziej atrakcyjnym. To idealne miejsce dla osób pragnących uciec od miejskiego zgiełku, ceniących kontakt z naturą, ciszę i spokój. ~~W bliskiej okolicy znajdziesz cztery czyste jeziora oraz Sierakowski Park Krajobrazowy, co zapewnia dostęp do pięknych terenów rekreacyjnych i przyrodniczych. ~~Zobacz prezentację terenu na filmie:
~~Ta działka to inwestycja z ogromnym potencjałem, otwierająca wiele możliwości rozwoju i zarobku. ~~W skład oferty wchodzą działki o numerach: 182, 186/1 oraz 187/1. ~~Zapraszam do kontaktu, aby poznać więcej szczegółów! ~~Alicja Wojtkowiak ~~Telefon: Zobacz kontakt602 245 270 ~~~

Oceń ofertę


3.4


896 wydruk błąd schowek

Ostatnio przeglądane

 

 

 

pobieranie

Pobierz wzór umowy

Umowa przedwstępna sprzedaży

wybierz plik do pobrania
doc pdf

 

 

Deweloperzy

);