Prosimy, odblokuj wyświetlanie reklam w naszym serwisie, są one związane z rynkiem nieruchomości.
To dzięki nim masz darmowy dostęp do naszych treści.

Z pozdrowieniami zespół KRN.pl :)


telefon

wiadomość

mapa

Dom, Widoma

Dom na sprzedaż Widoma (woj. Małopolskie)

Lokalizacja:

Widoma, , ul.

Powierzchnia:

99.83 m2

Cena:

940 000 zł

Dane szczegółowe

lokalizacja:
Małopolskie, Widoma
typ obiektu:
dom na sprzedaż
cena:
940 000 zł
powierzchnia:
99.83 m2
numer ogłoszenia:
DNX-DS-30673-6
data dodania:
15-03-2026
data modyfikacji:
15-03-2026
jakość wypełnienia oferty:
100%

Szczegóły oferty



DO SPRZEDAŻY PARTEROWY DOM WOLNOSTOJĄCY W
STANIE DEWELOPERSKIM
ZNAJDUJĄCY SIĘ W MIEJSCOWOŚCI WIDOMA
OFERTA BEZPROWIZYJNA DLA KLIENTA KUPUJACEGO

DOM
Do sprzedaży parterowy dom wolnostojący o powierzchni użytkowej 99,83 m2. Dom wykonany jest w technologii tradycyjnej z porothermu.
Ocieplony zostanie styropianem o grubości 20 cm.
Dach pokryty blachodachówką. Ocieplanie dachu pianą PUR po stropie. Okna 3 szybowe. Tynki gipsowe. Docelowo dom ma być ogrzewany piecem gazowym z zasobnikiem.
Ogrzewanie podłogowe w całym domu.

Do domu doprowadzone są media takie jak:
gaz, woda, prąd . Internet światłowodowy w bliskiej okolicy.
Istnieje możliwość zakupu domu w stanie surowym zamkniętym w cenie 720 000,00 zł.

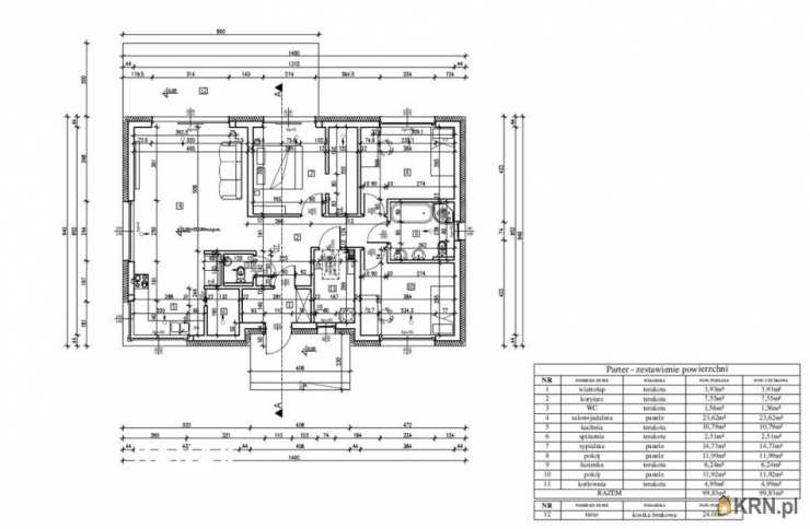
W skład domu wchodzi:
Parter:

Wiatrołap (3,93 m2)

Korytarz (7,55 m2)
Toaleta (1,56 m2)
Spiżarnia (2,51 m2)
Kuchnia (10,79 m2)
Salon + Jadalnia (23,62 m2)
Pokój 1 (14,73 m2)

Pokój 2 (11,99 m2)

Łazienka (6,24 m2)
Pokój 3 (11,92 m2)

Kotłownia (4,99 m2)

Stryszek nieużytkowy

DZIAŁKA
Sprzedawany dom jest posadowiony na działce o powierzchni 493 m2.
Znajduję się ona w cichym i spokojnym miejscu z dala od drogi głównej w piątej linii zabudowy.
Na działkach sąsiednich znajdują się nowe domy. Dojazd do działki zapewniony poprzez współwłasność oraz służebność.
Za dodatkową dopłatą istnieje możliwość postawienia wiaty na 1 lub 2 samochody.

LOKALIZACJA
W bliskiej odległości sklep, szkoła podstawowa.
Dużym atutem jest bliskość węzła Widoma, dzięki, któremu droga ekspresową S7 możemy dostać się do Krakowa w ciągu 15 minut.
W okolicy bardzo duża ilość terenów zielonych oraz rekreacyjnych.

ZACHĘCAM DO KONTAKTU, Z MIŁĄ CHĘCIĄ ODPOWIEM TOBIE NA WSZYSTKIE PYTANIA DOTYCZĄCE TEJ NIERUCHOMOŚCI

::DODATKOWE INFORMACJE
Prąd: jest Gaz: jest Woda: jest Dojazd: droga utwardzona Otoczenie: zabudowa jednorodzinna Kanalizacja: oczyszczalnia ekologiczna Komunikacja publ.: bus Okna: PCV Instalacje: nowe Zagosp. działki: częściowo zagospodarowana Ukształtowanie działki: płaska Kształt działki: prostokąt Rodzaj domu: wolnostojący Stan wybudowania: Stan deweloperski Podst. materiał budowlany: porotherm Pokrycie dachu: blachodachówka Pozwolenie na użytkowanie: tak Powierzchnia użytkowa [m2]: 99,8300 Stan budynku: do wykończenia Podpiwniczenie: nie Ogrodzenie działki: ogrodzona Rok budowy: 2025 Liczba pokoi: 4
::KONTAKT DO AGENTA
Tomasz Trocha Zobacz kontakt502 181 980 Zobacz kontakttomek@danax.pl
Pośrednik odpowiedzialny zawodowo za wykonanie umowy pośrednictwa: Bartłomiej Krosta (licencja nr: 6585)
--------------------------
Od 1993 r. pośredniczymy w transakcjach na krakowskim rynku nieruchomości.
Pomożemy Ci jak przyjacielowi.

Materiał: POROTHERM

Kontakt do agenta:
Tomasz Trocha
Zobacz kontakttomek@danax.pl
Zobacz kontakt502 181 980

Oceń ofertę


0


426 wydruk błąd schowek

Ostatnio przeglądane

 

 

 

pobieranie

Pobierz wzór umowy

Umowa przedwstępna sprzedaży

wybierz plik do pobrania
doc pdf

 

 

Deweloperzy

);