Prosimy, odblokuj wyświetlanie reklam w naszym serwisie, są one związane z rynkiem nieruchomości.
To dzięki nim masz darmowy dostęp do naszych treści.

Z pozdrowieniami zespół KRN.pl :)


telefon

wiadomość

mapa

Dom, Rudawa

Dom na sprzedaż Rudawa (woj. Małopolskie)

Lokalizacja:

Rudawa, , ul.

Powierzchnia:

85.44 m2

Cena:

1 010 000 zł

Dane szczegółowe

lokalizacja:
Małopolskie, Rudawa
typ obiektu:
dom na sprzedaż
cena:
1 010 000 zł
powierzchnia:
85.44 m2
numer ogłoszenia:
PAC-DS-9009-3
data dodania:
24-12-2025
data modyfikacji:
24-12-2025
jakość wypełnienia oferty:
100%

Szczegóły oferty



0% PROWIZJI DLA KUPUJĄCEGO

Do sprzedania dom wolnostojący w miejscowości
Rudawa
gm. Zabierzów. Dom o pow.
85,44 m2
usytuowany na działce o pow. około
3 arów.
Dojazd do nieruchomości drogą gminną asfaltową. Dom położony w cichej i spokojnej okolicy.
Dom zbudowany według indywidualnego projektu.
Budynek sprzedawany w stanie deweloperskim

obejmującym:

fundamenty betonowe + hydroizolacja + ocieplenie Styrodur o gr. 15 cm;
ściany zewnętrzne z pustaka ceramicznego Porotherm, ogr. 25 cm;
ściany wewnętrzne z pustaka ceramicznego o gr. 11,5 cm;
ocieplenie styropian o gr. 20 cm + tynk akrylowy;
konstrukcja dachu drewniana;

dach kryty dachówką ceramiczną;

podbitka drewniana;

okna dachowe drewniane firmy FAKRO;

rynny PCV;

system kominowy SCHIEDEL;

poddasze ocieplone wełną mineralną o gr. 30cm + płyty gipsowo-kartonowe;

okna PCV trzyszybowe;

drzwi wejściowe ocieplone;

parapety zewnętrzne;

parapety wewnętrzne - konglomerat marmurowy;

wylewki wewnętrzne + izolacja;

tynki maszynowo-gipsowe wewnętrzne;

zamontowane schody strychowe;

barierki metalowe na balkonach;
instalacja antenowa i światłowodowa
;

pompa ciepła;

ogrzewanie podłogowe;
instalacja wentylacji mechanicznej - rekuperacja;
zamontowany zestaw podtynkowy GEBERIT;
przygotowana instalacja pod klimatyzację;
zamontowane rolety zewnętrzne w sypialniach;
instalacja alarmowa

działka ogrodzona;

brama wjazdowa oraz furtka;

podjazdy wybrukowane kostką brukową;

taras wybrukowany kostką brukową;

miejsce postojowe;

teren wokół budynku uporządkowany oraz zniwelowany;
zbiornik na deszczówkę.

Media:
kanalizacja, woda, gaz, prąd.

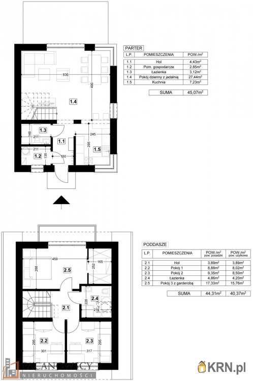
Rozkład pomieszczeń:
Parter:
hol (4,43m2), pom. gospodarcze (2,85m2), kuchnia (7,23m2), salon + jadalnia (27,44m2), łazienka (3,12m2).
Poddasze:
hol (3,89m2), pokój (8,02m2), łazienka (4,2m2) pokój (8,5m2), pokój z garderobą (15,76m2).

LOKALIZACJA:
Dom zlokalizowany w atrakcyjnej okolicy - w sąsiedztwie nowych domów jednorodzinnych oraz licznych terenów niezabudowanych. Nieruchomość położona w bardzo dobrej lokalizacji, blisko pełna infrastruktura: przystanek (700m), sklep (700m), kościół (700m), restauracja (600m), przedszkole i szkoła (1km) przystanek PKP (1km).


Cena 1.010.000 zł. Kupujący nie płaci 2 % podatku PCC.
Serdecznie polecamy i zachęcamy do bezpłatnej prezentacji !!! Więcej podobnych ofert na naszej stronie www.pacanowscy.pl
Kontakt do opiekuna oferty: Zobacz kontakt500-702-305 Michał Sibiga


Pośrednik odpowiedzialny zawodowo za wykonanie umowy pośrednictwa: Mieszko Pacanowski (licencja nr: 21215)
Oferta wysłana z systemu Galactica Virgo
Ogrzewanie: POMPA CIEPLA
Materiał: Pustak

Kontakt do agenta:
Michał Sibiga
Zobacz kontaktmichal@pacanowscy.pl
Zobacz kontakt500-702-305

Oceń ofertę


0


23 wydruk błąd schowek

Ostatnio przeglądane

 

 

 

pobieranie

Pobierz wzór umowy

Umowa przedwstępna sprzedaży

wybierz plik do pobrania
doc pdf

 

 

Deweloperzy

);