Prosimy, odblokuj wyświetlanie reklam w naszym serwisie, są one związane z rynkiem nieruchomości.
To dzięki nim masz darmowy dostęp do naszych treści.

Z pozdrowieniami zespół KRN.pl :)


telefon

wiadomość

mapa

Dom, Wrząsowice

Dom na sprzedaż Wrząsowice (woj. Małopolskie)

Lokalizacja:

Wrząsowice, , ul.

Powierzchnia:

80.07 m2

Cena:

769 000 zł

Dane szczegółowe

lokalizacja:
Małopolskie, Wrząsowice
typ obiektu:
dom na sprzedaż
cena:
769 000 zł
powierzchnia:
80.07 m2
numer ogłoszenia:
PAC-DS-8796-1
data dodania:
04-10-2025
data modyfikacji:
04-10-2025
jakość wypełnienia oferty:
100%

Szczegóły oferty


Do sprzedania
lokal mieszkalny nr 1 w budynku w zabudowie bliźniaczej
położony w miejscowości
Wrząsowice, gm. Świątniki Górne.
Lokal o
pow. użytkowej 74,44m2, pow. podłóg 80,07m2 + strych.
Lokal
usytuowany na ogrodzonej działce o pow. około
1,82
ara
.
Osiedle kameralne, położone w I linii zabudowy, dojazd do domu drogą gminną asfaltową, następnie drogą prywatna (udział).
Lokal z przynależnymi dwoma miejscami postojowymi oraz tarasem. W ofercie segmenty skrajny.

Media:
prąd, woda, gaz, kanalizacja.
Lokal sprzedawany w stanie deweloperskim obejmującym:
ściany konstrukcyjne - beton komórkowy TERMOBET,
pokrycie dachu: dachówka cementowa CREATON,
strop ocieplony wełna mineralną,
wylewki,
tynki wewnętrzne cementowo-wapienne,
budynek ocieplony styropianem gr. 15cm,
ściany oddzielające lokale: pustaki Silka (dobra izolacyjność akustyczna),
stolarka okienna PVC - trzyszybowe, parapet,
kocioł gzowy dwufunkcyjny,
podejście pod kominek,
ogrzewanie podłogowe na parterze i piętrze,
instalacje: wod-kan, gazowa, elektryczna,
ogrodzenie panelowe,
taras, opaska wokół domu, miejsca postojowe: kostka brukowa,
teren uporządkowany,

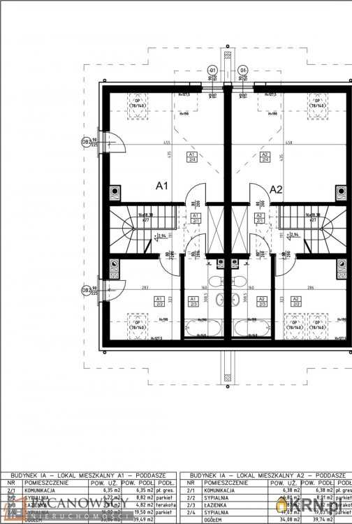
Rozkład pomieszczeń:
Parter:
wiatrołap (2,78m2), komunikacja + klatka schodowa (8,83m2), kuchnia (8,2m2), WC (1,56m2), salon (19,21m2) -
razem 40,58m2
Poddasze:
komunikacja (6,35m2), sypialnia (6,72m2), łazienka (3,87m2), sypialnia (16,92m2) -
razem 33,86m2
Strych (ok. 20m2)

LOKALIZACJA
Nieruchomość położona w cichej i spokojnej okolicy w sąsiedztwie zabudowy jednorodzinnej.
Bardzo dobry dostęp do
niezbędnej infrastruktury - w promieniu 1km:
przystanek MPK, pizzeria, żłobek, przedszkole, szkoła podstawowa, sklep, piekarnia, przychodnia, gabinet stomatologiczny, paczkomat, serwis samochody, salon fryzjerski.
PLANOWANY ODBIÓR: wrzesień/październik 2026r.

Cena: 769.000 zł brutto. Kupujący nie płaci 2 % podatku PCC.

Serdecznie polecamy i zachęcamy do bezpłatnej prezentacji !!! Więcej podobnych ofert na naszej stronie www.pacanowscy.pl
Kontakt do opiekuna oferty:
Zobacz kontakt500-813-213 Tomasz Turek
Pośrednik odpowiedzialny zawodowo za wykonanie umowy pośrednictwa: Mieszko Pacanowski (licencja nr: 21215)
Oferta wysłana z systemu Galactica Virgo
Ogrzewanie: Gazowe
Materiał: BETON KOMORKOWY

Kontakt do agenta:
Tomasz Turek
Zobacz kontakttomasz@pacanowscy.pl
Zobacz kontakt500-813-213
Zobacz kontakt500-813-213

Oceń ofertę


3


260 wydruk błąd schowek

Ostatnio przeglądane

 

 

 

pobieranie

Pobierz wzór umowy

Umowa przedwstępna sprzedaży

wybierz plik do pobrania
doc pdf

 

 

Deweloperzy

);