Prosimy, odblokuj wyświetlanie reklam w naszym serwisie, są one związane z rynkiem nieruchomości.
To dzięki nim masz darmowy dostęp do naszych treści.

Z pozdrowieniami zespół KRN.pl :)


telefon

wiadomość

mapa

Dom, Warszawa, Wawer/Zerzeń

Dom na sprzedaż Warszawa (woj. Mazowieckie), Wawer/Zerzeń

Lokalizacja:

Warszawa, Wawer/Zerzeń, ul.

Powierzchnia:

76.00 m2

Cena:

850 000 zł

Dane szczegółowe

lokalizacja:
Mazowieckie, Warszawa, Wawer/Zerzeń
typ obiektu:
dom na sprzedaż
cena:
850 000 zł
pokoi:
4
powierzchnia:
76.00 m2
numer ogłoszenia:
495
data dodania:
16-05-2025
data modyfikacji:
11-01-2026
jakość wypełnienia oferty:
100%

Szczegóły oferty

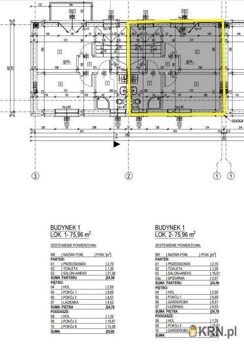
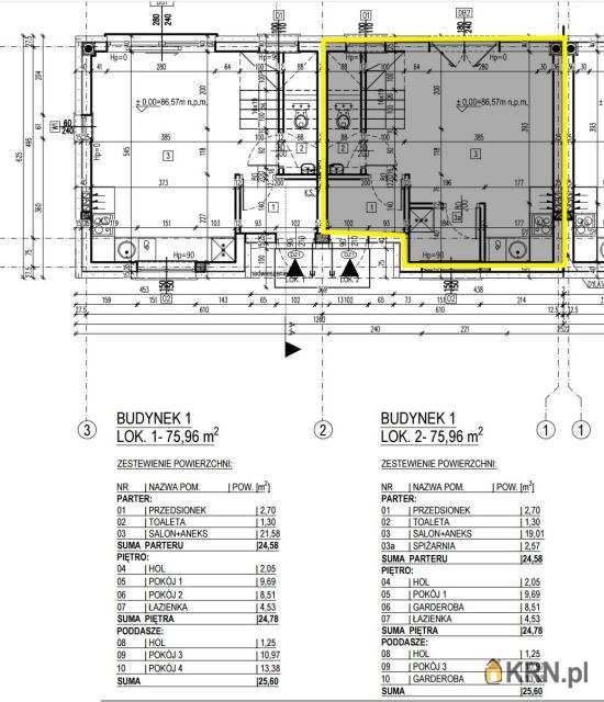
Sprzedam atrakcyjny lokal 75,96m2 z ogródkiem, 2 miejsca postojowe w Wawrze osiedle- Borków w okolicy ul Trakt Lubelski/ul Chodzieska
Lokal bez czynszowy o łącznej powierzchni ok. 75,96m2 znajduje się na dwóch kondygnacjach z poddaszem i ogródkiem ok 60 m2.
Mieszkanie funkcjonalne z przemyślanym rozkładem pomieszczeń:
Parter : Salon 19,01m2 z aneksem kuchennym z wyjściem na ogródek, Spiżarka 2,57m2, WC 1,3m2 Przedsionek 2,7m2 Ip. pokój 9,69m2, garderoba 4,53m2 łazienka 4,53m2, hol 2,05m2
Poddasze: pokój 10, 97m2 garderoba 13,38m2 Hol 1,25m2
Standard wykończenia: - piec , grzejniki, osprzęt elektryczny, tynki wewnętrzne , balustrady na balkonach , ogródki wydzielone , parapety wewnętrzne .
2 Miejsca postojowe przed budynkiem.
Mieszkanie w stanie deweloperskim.
Na planie budynek 1 lokal 2
Media: Woda własna, szambo, Gaz, Prąd
Idealne położenie pod względem komunikacyjnym -ok. 10km co centrum, dojazd samochodem poniżej 20minut nawet w godzinach szczytu.
Bardzo dobry dojazd komunikacją miejską: Przystanek autobusowy w odległości ok.400m.
CAŁKOWITA CENA NIERUCHOMOŚCI:
-mieszkanie 850.000zł -2 miejsca postojowe 30.00zł -ogródek 0.00zł RAZEM: 880.000 zł odbiór 03.2026r
Oferta godna polecenia Zapraszam na prezentację Ewa Zobacz kontakt501-724-826
Oferujemy bezpłatną pomoc w uzyskaniu najlepszego finansowania na zakup nieruchomości.
Za wykonaną usługę pobieramy wynagrodzenie zgodnie z warunkami uzgodnionymi w zawartej umowie. Współpraca po podpisaniu umowy pośrednictwa.
Niniejsze ogłoszenie ma charakter wyłącznie informacyjny i nie stanowi oferty w rozumieniu przepisu art. 66 Kodeksu Cywilnego. Nasze usługi świadczymy w oparciu o umowę pośrednictwa, która gwarantuje Państwu opiekę naszego doradcy przez cały okres trwania współpracy.
Oferta wysłana z programu IMO dla biur nieruchomości

Informacje dodatkowe:
Garaż: Jest

Kontakt do agenta:
Ewa Krawczyk
Zobacz kontakt501-724-826
Zobacz kontaktewanieruchomosci@wp.pl

Oceń ofertę


9.99


1783 wydruk błąd schowek

Ostatnio przeglądane

 

 

 

pobieranie

Pobierz wzór umowy

Umowa przedwstępna sprzedaży

wybierz plik do pobrania
doc pdf

 

 

Deweloperzy

);