Prosimy, odblokuj wyświetlanie reklam w naszym serwisie, są one związane z rynkiem nieruchomości.
To dzięki nim masz darmowy dostęp do naszych treści.

Z pozdrowieniami zespół KRN.pl :)


telefon

wiadomość

mapa

Dom, Modlnica, ul. Graniczna

Dom na sprzedaż Modlnica (woj. Małopolskie), ul. Graniczna

Lokalizacja:

Modlnica, , ul. Graniczna

Powierzchnia:

68.00 m2

Cena:

799 000 zł

Dane szczegółowe

lokalizacja:
Małopolskie, Modlnica, ul. Graniczna
typ obiektu:
dom na sprzedaż
cena:
799 000 zł
powierzchnia:
68.00 m2
numer ogłoszenia:
BS2-DS-300940-5
data dodania:
25-05-2024
data modyfikacji:
25-05-2024
jakość wypełnienia oferty:
100%

Szczegóły oferty


Bracia Sadurscy to oficjalny przedstawiciel handlowy dewelopera - kupując z nami nie płacisz prowizji i ukrytych kosztów.-‹
MODLNICA - NOWOCZESNE DOMY W ZABUDOWIE SZEREGOWEJ ŚWIETNA LOKALIZACJA
Prezentowana inwestycja to atrakcyjne domy w zabudowie bliźniaczej. Powierzchnia użytkowa każdego segmentu wynosi ok. 65 m2. Domy usytuowane na działkach o powierzchni 140 m2
Funkcjonalny rozkład pomieszczeń:
Parter:
1. Wiatrołap - 3,35 m2
2. Pokój dzienny - 19,40 m2
3. Kuchnia - 7,30 m2
4. Łazienka - 3,88 m2
5. Klatka schodowa - 1,89 m2
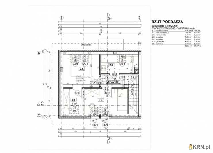
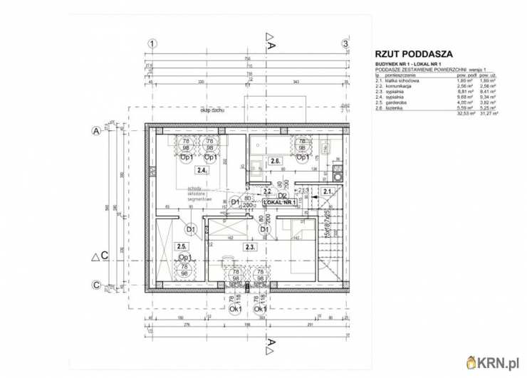
Poddasze:
1. Klatka schodowa - 1,89 m2
2. Komunikacja - 2,56 m2
3. Sypialnia - 8,81 m2
4. Sypialnia - 9,68 m2
5. Garderoba - 4,00 m2
6. Łazienka - 5,59 m2
Domy sprzedawane w stanie deweloperskim (tynki, wylewki, instalacje, ocieplenie ścian i poddasza, stolarka okienna PCV).
- Ogrzewanie podłogowe we wszystkich pomieszczeniach (piec gazowy zamontowany),
- Zamontowane rolety antywłamaniowe na parterze,
- Instalacja alarmowa,
- Działka częściowo ogrodzona, podjazdy wybrukowane kostką brukową.
Do każdego segmentu przynależy ogródek o pow. ok.
110
m2 .
Każdy segment posiada
2
przynależne
miejsca parkingowe .
Świetna lokalizacja! W pobliżu wszelka infrastruktura handlowo - usługowa (szkoła, przedszkole, apteka, centrum medyczne, sklep, klub sportowy).
Dogodny dojazd do Krakowa, 4 minuty drogi samochodem do obwodnicy.
Domy z powoleniem na użytkowanie!
Zapraszam na prezentację:
Michał Bańdo
+ Zobacz kontakt48 518-714-002
Zobacz kontaktmichal2@sadurscy.pl
::DODATKOWE INFORMACJE
Kategoria oferty: Mieszkania dla rodzin z dziećmi Prąd: jest Gaz: jest Woda: jest Dojazd: kostka brukowa Otoczenie: działki zabudowane Ogrzewanie: C.O. GAZOWE Kanalizacja: tak Alarm: TAK Internet: TAK Komunikacja publ.: MPK, miejska Odległość do komunikacji publicznej [m]: 400 Odl. do sklepu [m]: 500 Odl. do szkoły [m]: 700 Odl. do przedszkola [m]: 700 Drzwi antywłamaniowe: TAK Teren ogrodzony: TAK Opłaty wg liczników: woda, prąd, gaz, CO Okna: PCV 3 komorowe Instalacje: nowe Balkon: taras Tarasy: taras Liczba tarasów: 1 Powierzchnia balkonów/tarasów [m2]: 6 Powierzchnia ogródka [m2]: 100 Zagosp. działki: częściowo zagospodarowana Ukształtowanie działki: płaska Kształt działki: w kształcie litery L Rodzaj domu: bliźniak Stan wybudowania: Stan deweloperski Typ elewacji: tynk szlachetny + drewno Pokrycie dachu: dachówka ceramiczna Powierzchnia użytkowa [m2]: 65 Stan budynku: do wykończenia Podpiwniczenie: nie Garaż: miejsce postojowe Ogrodzenie działki: siatka Rok budowy: 2023 Liczba pokoi: 3 Wysokość pomieszczeń [m]: 2,7000 Liczba sypialni: 2 Powierzchnia pokoi [m2]: 19,40; 8,81, 9,68 Podłogi pokoi: wylewka Ściany pokoi: zwykłe Wyposażenie pokoi: nieumeblowane Typ kuchni: jasna z oknem Rodzaj kuchni: aneks kuchenny połączony z jadalnią i salonem Powierzchnia kuchni [m2]: 7,30 Podłoga kuchni: wylewka Typ łazienki: razem z wc Liczba łazienek: 2 Powierzchnia łazienki [m2]: 3,88; 5,59 Glazura łazienki: bez glazury Podłoga łazienki: wylewka Ściany łazienki: zwykłe Liczba przedpokoi: 2 Powierzchnia przedpokoi [m2]: 2,56; 3,35 Podłoga przedpokoi: wylewka Ściany przedpokoi: zwykłe
::LINK DO STRONY
https://sadurscy.pl/offer/BS2-DS-300940
::KONTAKT DO AGENTA
Michał Bańdo + Zobacz kontakt48 518-714-002 Zobacz kontaktmichal2@sadurscy.pl
::DANE BIURA
Oddział BS2, Rynek Pierwotny Królewska 67 30-081 Kraków Zobacz kontakt12 630-90-45
Pośrednik odpowiedzialny zawodowo za wykonanie umowy pośrednictwa: Michał Bańdo (licencja nr: 27635)
--------------------------
::GRATIS | Nasza prowizja zawiera: koszt przedwstępnej notarialnej umowy sprzedaży nieruchomości z rynku wtórnego. ::GWARANCJA | Gwarancja zwrotu zadatku. Więcej informacji na sadurscy.pl/zwrot-zadatku/

Ogrzewanie: Gazowe

Kontakt do agenta:
Michał Bańdo
Zobacz kontaktmichal2@sadurscy.pl
+ Zobacz kontakt48 518-714-002

Oceń ofertę


3.4


488 wydruk błąd schowek

Ostatnio przeglądane

 

 

 

pobieranie

Pobierz wzór umowy

Umowa przedwstępna sprzedaży

wybierz plik do pobrania
doc pdf

 

 

Deweloperzy

);