Prosimy, odblokuj wyświetlanie reklam w naszym serwisie, są one związane z rynkiem nieruchomości.
To dzięki nim masz darmowy dostęp do naszych treści.

Z pozdrowieniami zespół KRN.pl :)


telefon

wiadomość

mapa

Dom, Giebułtów, ul. Graniczna

Dom na sprzedaż Giebułtów (woj. Małopolskie), ul. Graniczna

Lokalizacja:

Giebułtów, , ul. Graniczna

Powierzchnia:

460.00 m2

Cena:

3 600 000 zł

Dane szczegółowe

lokalizacja:
Małopolskie, Giebułtów, ul. Graniczna
typ obiektu:
dom na sprzedaż
cena:
3 600 000 zł
powierzchnia:
460.00 m2
numer ogłoszenia:
BS5-DS-306334-91
data dodania:
26-03-2026
data modyfikacji:
26-03-2026
jakość wypełnienia oferty:
100%

Szczegóły oferty

|
Oferujemy Państwu dom wolnostojący w Giebułtowie
umiejscowiony na zagospodarowanej i pięknie położonej działce z malowniczym ogrodem oraz możliwością prowadzenia działalności usługowej/gospodarczej dzięki blisko 100m budynkowi handlowo-usługowemu, który znajduje się na działce.

Lokalizacja:

Nieruchomość położona w spokojnej i bogatej w zieleń okolicy w miejscowości Giebułtów.
Działka znajduje się przy drodze ale dzięki umiejscowieniu domu, nie jest to uciążliwe, ponieważ niw dochodzi żaden hałas.
Działka zagospodarowana oraz zadbana z pięknym ogrodem, w którym można się zrelaksować po ciężkim dniu w pracy.
Usytuowanie dodaje uroku oraz zapewnia czystość powietrza.
Najbliższa okolica bogata w infrastrukturę handlowo-usługową:
-sklep spożywczy
-kościół
-apteka,
-usługi medyczne,
-przedszkole,
-szkoła podstawowa,
-obiekty sportowe,
-obwodnica Krakowa dzięki ,
-której można szybko dostać się w każdą część Krakowa oraz szybki wyjazd na lotnisko w Balicach,
-Szybki dojazd do centrum, Krakowa spełnia oczekiwania osób pragnących zamieszkać poza miejskim zgiełkiem.

Nieruchomość:
Dom oddany do użytku w 2016r o powierzchni mieszkalnej ok 340m2 a powierzchni całkowitej blisko 460m, usytuowany na działce o powierzchni 2872m.
Dom w pełni użytkowy, może pełnić role domu dwurodzinnego oraz jednorodzinnego.
Dodatkowy atutem jest blisko 100m budynek handlowo-usługowy, znajdujący się na działce oraz pięknie wkomponowany i nie zakłócający wyglądu reszty nieruchomości.
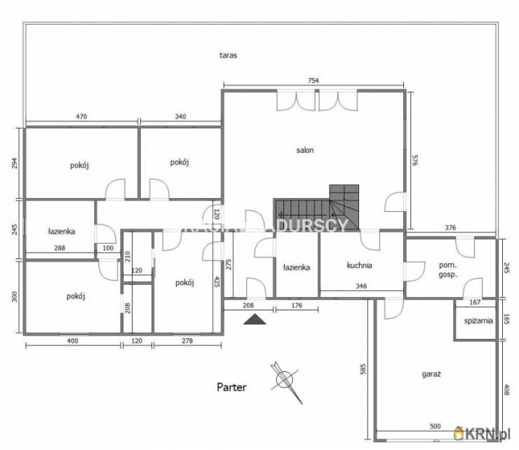
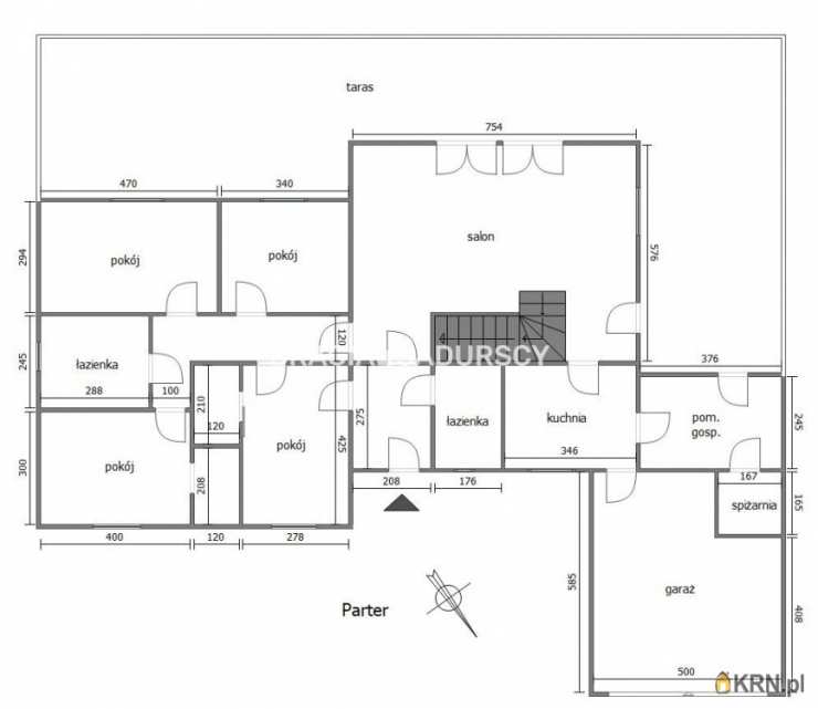
Dom składa się z:
Parter
-4 niezależnych pokoi ( z czego trzy posiadają garderobę)
-przestronnego salonu z kominkiem i wyjściem na taras od strony południowo-zachodniej
-kuchni
-2 łazienek
-pomieszczenia gospodarczego wraz ze spiżarką
-garażu dwustanowiskowego w bryle domu oraz garaż wolnostojący
-obszernego tarasu z grillem na który wyjście mamy z salonu i części jadalnej
Piętro
-4 niezależnych pokoi
-salonu
-kuchni
-łazienki
Dom wykończony w wysokim standardzie obejmujące m. in.
-Klimatyzacją parteru oraz piętra
-zainstalowany zmiękczacz wody
-podgrzewanie podłogowe zamontowane w łazienkach i kuchniach
-instalacja centralnego odkurzania
-kominek z rozprowadzeniem ciepła na piętro w centralnej części obejmującej salon, kuchnię i jadalnie
-ciepła woda z zasobnika z cyrkulacją
-zamontowana instalacja fotowoltaiczna o mocy 7,3 KW co wpływa na bardzo niskie koszty utrzymania domu (dla zainteresowanych wgląd do faktur za media)
Dom przystosowany pod zamieszkanie dla dwóch rodzin
Podłogi pokryte parkietem i gresami.
Media dostępne: woda z wodociągu oraz ze studni głębinowej zdatna do picia, prąd,gaz, kanalizacja gmina

Budynek:
Dom oddany do użytku w 2016r roku. Wybudowany z bloczku
YTONG o grubości 45cm,
budynek w okresie letnim świetnie trzyma chłód a w okresie zimowym, świetnie trzyma ciepło!
Dach pokryty dachówką ceramiczną oraz ocieplony wełną 30cm
ogrzewanie gazowe z kotłem kondensacyjnym
instalacja elektryczna 3-fazowa
Teren zagospodarowany, ogrodzony, droga dojazdowa asfaltowa.
Na terenie działki znajduje się studnia głębinowa, która może służyć do podlewania ogrodu jak i również woda pitna.
Dom posiada pięknie zagospodarowany ogród
Dodatkowym atutem jest wolnostojący budynek handlowo-usługowy znajdujący o powierzchni blisko 100m. Dzięki wysokości pomieszczeń wynoszącej 3m, może on pełnić role gabinetową, usługowa, biurowa, księgową, lub produkcyjną (aktualnie jest prowadzona cukiernia).
Dodatkowo budynek może zostać przekształcony na budynek gościnny lub mieszkalny.
Zapraszam do zapoznania się ze zdjęciami oraz umawiana prezentacji, ponieważ słowami ciężko opisać wyjątkowość tego miejsca.

Chętnie odpowiem na wszystkie pytania
Kuba Obcowski
+ Zobacz kontakt48 510 087 993

Biuro ''Bracia Sadurscy'' pomaga otrzymać najkorzystniejszą ofertę kredytową na zakup nieruchomości.
Dla naszych klientów umowa przedwstępna notarialna bezpłatna. TŁUMACZENIE WYGENEROWANE AUTOMATYCZNIE / AUTO-GENERATED
TRANSLATION
We offer you a detached house in Giebułtów
Located on a developed and beautifully situated plot with a picturesque garden and the possibility of running a service / business activity thanks to a nearly 100m commercial and service building located on the plot.
Location:
The property is located in a quiet and green area in Giebułtów.
The plot is located by the road, but thanks to the location of the house, it is not bothersome because there is no noise.
The plot is developed and well-kept with a beautiful garden where you can relax after a hard day at work.
The location adds charm and ensures air purity.
The closest neighborhood rich in commercial and service infrastructure:
-grocery store
-church
-pharmacy,
-medical services,
-kindergarten,
-primary school,
-sports facilities,
- the ring road of Krakow thanks,
-who can quickly get to every part of Krakow and a quick trip to the airport in Balice,
-Quick access to the center of Krakow meets the expectations of people who want to live outside the city noise.
Property:
The house was put into use in 2016 with a living area of -‹-‹approximately 340m2 and a total area of -‹-‹nearly 460m, located on a plot of 2872m.
A fully usable house, it can act as a two-family house or a single-family house.
An additional advantage is the nearly 100m commercial and service building located on the plot, beautifully integrated and not disturbing the appearance of the rest of the property.
The house consists of:
Ground floor
-4 independent rooms (three of which have a wardrobe)
- a spacious living room with a fireplace and an exit to the terrace on the south-west side
-kitchen
-2 bathrooms
- a utility room with a pantry
- a double garage in the body of the house and a free-standing garage
-a spacious terrace with a barbecue which can be accessed from the living room and dining area
Floor
-4 independent rooms
-salon
-kitchen
-bathrooms
The house is finished to a high standard. in.
-Air conditioning of the ground floor and the first floor
-water softener installed
-heating the floor material in their bathrooms
- vacuuming installation
-fireplace with heat distribution upstairs in the living room, kitchen and dining room
- hot water from the tank with circulation
- mounted system with a power of 3 KW, which results in a photo at the very cost of the house (for those interested, access to invoices for utilities)
The house is adapted to live in for two families
Parquet floors and porcelain stoneware.
Available utilities: water from the mains and deep wells fit for a drink, electricity, gas, sewage system.
Building:
The house was put into use in 2016. Built from YTONG block with a thickness of 45 cm,
the building keeps cool in the summer season, it keeps the heat great!
The roof is covered with ceramic tiles and insulated with 30cm wool
gas heating with condensing boiler
3-phase electrical installation
Developed area, fenced, asphalt access road.
On the plot of land on the premises, which can be in the garden watering, as well as in the area of -‹-‹the well.
The house has a beautifully landscaped garden
An additional advantage is a free-standing commercial and service building within nearly 100m. Thanks to the arrangement of 3m, it can correct the validation, service, office, accounting or production role (currently it is the cake shop floor).
Additionally, the building can be a guest house or a residential building.
I invite you to familiarize yourself with the visits and make an appointment, because it is hard to practice words with marking, presentation of photos, of this place.

::DODATKOWE INFORMACJE |
Prąd: jest |
Gaz: jest |
Woda: jest |
Dojazd: asfalt |
Otoczenie: działki zabudowane |
Ogrzewanie: C.O. GAZOWE |
Kanalizacja: miejska |
Linie telefoniczne: TAK |
Internet: TAK |
Komunikacja publ.: autobus |
Klimatyzacja: TAK |
Teren ogrodzony: TAK |
Okna: PCV |
Instalacje: dobre |
Tarasy: taras duży |
Liczba tarasów: 1 |
Zagosp. działki: zagospodarowana |
Kształt działki: prostokąt |
Rodzaj domu: wolnostojący |
Stan wybudowania: Pod klucz |
Typ elewacji: baranek |
Podst. materiał budowlany: ytong |
Pokrycie dachu: dachówka ceramiczna |
Pozwolenie na użytkowanie: tak |
Powierzchnia użytkowa [m2]: 340 |
Stan budynku: do zamieszkania |
Podpiwniczenie: nie |
Garaż: jest |
Ogrodzenie działki: ogrodzona |
Rok budowy: 2016 |
Liczba pokoi: 10 |
Wysokość pomieszczeń [m]: 2,7500 |
Liczba sypialni: 8 |
Podłogi pokoi: parkiet |
Ściany pokoi: gładzie gipsowe |
Typ kuchni: aneks kuchenny |
Rodzaj kuchni: otwarta na salon |
Podłoga kuchni: gres |
Typ łazienki: nowa |
Liczba łazienek: 3 |
Glazura łazienki: nowego typu |
Podłoga łazienki: terakota |
Wyposażenie łazienki: wanna, prysznic |
Ściany łazienki: gładzie gipsowe, glazura |
Podłoga przedpokoi: terakota |
Ściany przedpokoi: gładzie gipsowe |
::LINK DO STRONY |
https://sadurscy.pl/offer/BS5-DS-306334
Zobacz Wirtualny Spacer: https://tour.feelestate.com/view/fullscreen/id/VV25K
::KONTAKT DO AGENTA |
Jakub Obcowski |
+ Zobacz kontakt48 510-087-993 |
Zobacz kontaktkuba@sadurscy.pl
::DANE BIURA |
Oddział BS5, Nowa Huta |
Bracia Sadurscy Dariusz Sadurski |
Os. Kazimierzowskie 36 |
31-844 Kraków |
Zobacz kontakt12 265 10 29
Pośrednik odpowiedzialny zawodowo za wykonanie umowy pośrednictwa: Dariusz Sadurski (licencja nr: 803)
|
Oferta wysłana z systemu Galactica Virgo
Ogrzewanie: Gazowe
Materiał: YTONG

Kontakt do agenta:
Jakub Obcowski
Zobacz kontaktkuba@sadurscy.pl
+ Zobacz kontakt48 510-087-993

Oceń ofertę


0


16 wydruk błąd schowek

Ostatnio przeglądane

 

 

 

pobieranie

Pobierz wzór umowy

Umowa przedwstępna sprzedaży

wybierz plik do pobrania
doc pdf

 

 

Deweloperzy

);