Prosimy, odblokuj wyświetlanie reklam w naszym serwisie, są one związane z rynkiem nieruchomości.
To dzięki nim masz darmowy dostęp do naszych treści.

Z pozdrowieniami zespół KRN.pl :)


telefon

wiadomość

mapa

Dom, Skała

Dom na sprzedaż Skała (woj. Małopolskie)

Lokalizacja:

Skała, , ul.

Powierzchnia:

362.66 m2

Cena:

1 299 000 zł

Dane szczegółowe

lokalizacja:
Małopolskie, Skała
typ obiektu:
dom na sprzedaż
cena:
1 299 000 zł
powierzchnia:
362.66 m2
numer ogłoszenia:
PAC-DS-9259
data dodania:
14-02-2026
data modyfikacji:
14-02-2026
jakość wypełnienia oferty:
100%

Szczegóły oferty


Do sprzedaży podpiwniczona
kamienica
o pow. całkowitej 362,66m2, pow. użytkowej 229,48m2
zlokalizowana
w centrum Skały.
Nieruchomość ulokowana w I linii zabudowy przy drodze publicznej asfaltowej na działce
o pow. 2,44 ara.
Działka płaska w kształcie prostokąta o wym.:
12m/ 21m.
Za budynkiem spory parking .
Media:
prąd, woda, gaz, internet.
Budynek wybudowany w latach 30-tych XX wieku, po modernizacji, sprzedawany w stanie obejmującym:

dach: pełne deskowanie,
pokrycie dachu: blacha, bez docieplenia,
budynek ocieplony styropianem,
okna: PCV,
od frontu witryny sklepowe,
elewacja północna: tynk wewnętrzny cementowy, mur ceglany (60 cm na parterze, 50 cm na piętrze), styropian 8 cm, tynk zewnętrzny,
elewacja południowa: tynk wewnętrzny cementowy, mur ceglany (60 cm na parterze, 50 cm na piętrze), tynk zewnętrzny,
elewacja zachodnia: tynk wewnętrzny gipsowy, mur ceglany (60 cm na parterze, 50 cm na piętrze), styropian 5 cm, tynk zewnętrzny,
ogrzewanbie: 2x kocioł gazowy (2 liczniki),
grzejniki panelowe,
system przygotowania ciepłej wody użytkowej: grzejniki elektryczne,
system wentylacji: grawitacyjny,
przyłącze elektryczne (2 liczniki). Uzyskano informację z Tauron, że możliwe jest uzyskanie mocy przyłączeniowej nawet do 25 kW,
przyłącze internetowe.

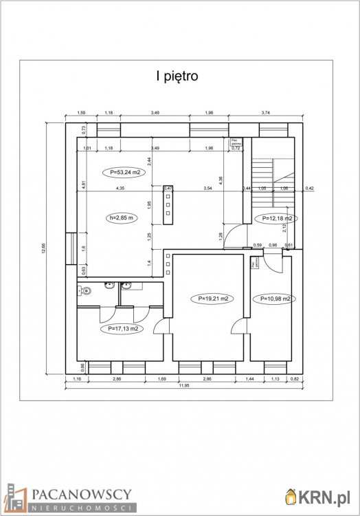
Rozkład kondygnacji:
Piwnica: ok. 40m2
Parter:
89,9m2
Piętro:
89,58m2
Poddasze:
50m2
do adaptacji (złożono wniosek do UMiG Skała o wydanie warunków dla adaptacji do użytkowego uwzględniającego podniesienie połaci dachu).
LOKALIZACJA
Nieruchomość położona w centrum Skały - nieopodal Rynku.
Dostęp do pełnej infrastruktury:
sklepy, restauracje, apteka, piekarnie, poczta, centrum okulistyczne, kościół, salon fryzjerski, salon kosmetyczny, paczkomat, gabinet weterynaryjny, centrum medyczne, żłobek, szkoła podstawowa, przedszkole, ośrodki zdrowia, przystanki autobusowe. W miejscowości szkoła ponadpodstawowa oraz hala widowiskowo-sportowa.
Nieopodal Ojcowski Park Narodowy.
Cena :
1.299.000 zł. Serdecznie polecamy i zachęcamy do bezpłatnej prezentacji !!! Więcej podobnych ofert na naszej stronie www.pacanowscy.pl
Kontakt do opiekuna oferty: Łukasz Koczwara Zobacz kontakt505-304-807
Pośrednik odpowiedzialny zawodowo za wykonanie umowy pośrednictwa: Mieszko Pacanowski (licencja nr: 21215)
Oferta wysłana z systemu Galactica Virgo
Ogrzewanie: Gazowe

Kontakt do agenta:
Łukasz Koczwara
Zobacz kontaktlukasz@pacanowscy.pl
Zobacz kontakt504-112-605
Zobacz kontakt505-304-807

Oceń ofertę


0


36 wydruk błąd schowek

Ostatnio przeglądane

 

 

 

pobieranie

Pobierz wzór umowy

Umowa przedwstępna sprzedaży

wybierz plik do pobrania
doc pdf

 

 

Deweloperzy

);