Prosimy, odblokuj wyświetlanie reklam w naszym serwisie, są one związane z rynkiem nieruchomości.
To dzięki nim masz darmowy dostęp do naszych treści.

Z pozdrowieniami zespół KRN.pl :)


telefon

wiadomość

mapa

Dom, Bochnia, ul. Poniatowskiego

Dom na sprzedaż Bochnia (woj. Małopolskie), ul. Poniatowskiego

Lokalizacja:

Bochnia, , ul. Poniatowskiego

Powierzchnia:

360.00 m2

Cena:

1 550 000 zł

Dane szczegółowe

lokalizacja:
Małopolskie, Bochnia, ul. Poniatowskiego
typ obiektu:
dom na sprzedaż
cena:
1 550 000 zł
powierzchnia:
360.00 m2
media:
gaz
numer ogłoszenia:
BS5-DS-301630-105
data dodania:
15-01-2026
data modyfikacji:
15-01-2026
jakość wypełnienia oferty:
100%

Szczegóły oferty

|

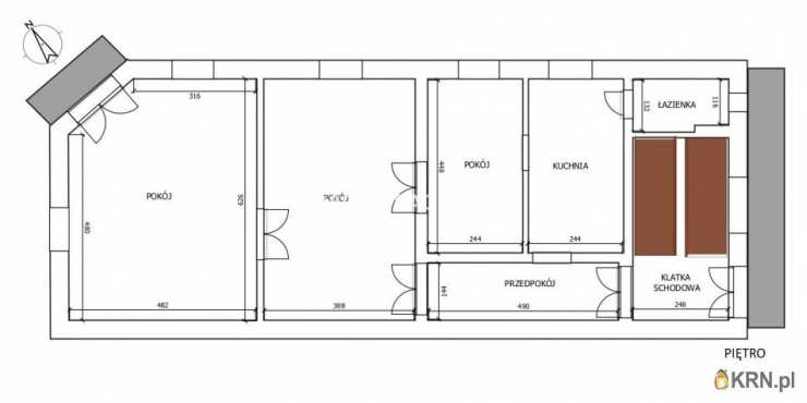
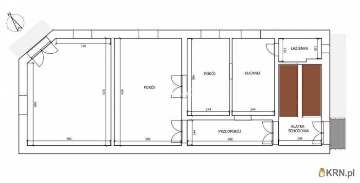
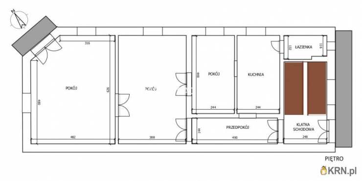
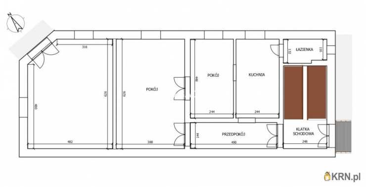
Bochnia, Śródmieście, ul. Poniatowskiego, kamienica z 2 mieszkaniami, lokalem użytkowym i zapleczem gospodarczym na działce o pow. 1020 m 2 .
Nieruchomość położona bezpośrednio na przeciw dworca kolejowego w Bochni.
Na terenie działki znajduje się kamienica z 1920 r., 2-kondygnacyjna, częściowo podpiwniczona i strychem, z dobudowanymi zabudowaniami gospodarczymi (usługowymi) oraz wolnostojący garaż murowany.
Powierzchnia pierwotnej kamienicy wynosi ok.
240 m 2
, w tym pow. piwnicy ok. 44 m 2
oraz 2 kondygnacje o pow. łącznej ok. 196 m 2 . Na parterze o łącznej pow. ok.
98 m 2
znajduje się mieszkanie 2 pokojowe z osobną kuchnią, łazienka i przedpokojem o pow.
ok. 58 m 2
oraz
wydzielony lokal użytkowy z odrębnym wejściem, użytkowany dotychczas jako lokal gastronomiczny o pow. ok. 28 m 2
, pierwotnie stanowiący 3 pokój. Na 1 piętrze znajdują się 3 pokojowe mieszkanie
z osobną kuchnią, łazienką i przedpokojem o pow. użytkowej ok.
86 m 2
.
Wysokość pomieszczeń -
3,3 m.
Każde z mieszkań opomiarowane osobno. W mieszkaniach ogrzewanie centralne z pieca gazowego dwufunkcyjnego, odrębnego dla każdego mieszkania. Woda i kanalizacja z sieci miejskiej. Budynek wybudowany z cegły, stropy między kondygnacyjne belkowe drewniane, nad piwnicą strop Kleina, okna drewniane, dwuszybowe, nowego typu, podłogi w pokojach z deski drewnianej. Wejście do mieszkań wspólną klatką schodową oraz dodatkowe, drugie wejście na poziomie parteru.
W bryle budynku, na poziomie parteru znajdują się 2 pomieszczenia gospodarczo-usługowe o pow. ok. 66 m 2
i ok. 25 m 2 . Lokal o pow. 66 m 2
wykorzystywany jako zaplecze gastronomiczne. Dodatkowo na terenie działki znajduje się garaż murowany o pow. ok. 30 m 2 .
Kamienica poza dotychczasową funkcją mieszkalną, ze względu na położenie i parametry, idealna do prowadzenia szeroko pojętej działalności gospodarczej (gastronomia, biura, hostel, gabinety itp.).
Kamienica objęta ochrona konserwatorską.
Teren nieruchomości objęty jest miejscowym planem zagospodarowania przestrzennego obszaru "Śródmieście" o oznaczeniu
1.US.1
-
teren usług sportu i rekreacji
o brzmieniu:
W granicach terenu wyznaczonego, poza przeznaczeniem podstawowym dopuszcza się: 1) lokalizację obiektów usługowo-handlowych (obsługi turystyki, informacji turystycznej, gastronomii, handlu detalicznego pamiątkami, artykułami codziennego użytku), 2) realizację zaplecza szatniowo-gospodarczego, 3) remont, odbudowę, rozbudowę, przebudowę i nadbudowę istniejącej zabudowy pod warunkiem zachowania zasad zagospodarowania terenu i kształtowania zabudowy jak dla obiektów nowo realizowanych, 4) realizację urządzeń terenowych i obiektów małej architektury, 5) realizację zieleni urządzonej - zieleńce, skwery, 6) realizację ciągów pieszych i ścieżek rowerowych.
W granicach terenu wyznaczonego, ustala się następujące warunki zagospodarowania terenu i kształtowania zabudowy: 1) maksymalny wskaźnik zabudowy - 50%, 2) dopuszcza się zagospodarowanie terenu co najwyżej trzema inwestycjami, 3) wysokość budynków szatniowo-gospodarczych - do 4,5 m, 4) wysokość pozostałych budynków - do 15 m, 5) obowiązek realizacji w ramach inwestycji ogólnodostępnego placu, 6) zachować minimum 20% powierzchni biologicznie czynnej, 7) obowiązek zabezpieczenia w obrębie terenu miejsc parkingowych jak dla obiektów usługowych zgodnie z § 4 ust. 8 pkt 8 uchwały, 6) zachować warunki § 4 ust. 6 pkt 1 wynikające z położenia w strefie ochrony konserwatorskiej B
Szczegóły oferty:
+ Zobacz kontakt48 502 104 545

::DODATKOWE INFORMACJE |
Prąd: jest |
Gaz: tak - miejski |
Woda: piec gazowy dwufunkcyjny |
Dojazd: asfalt |
Otoczenie: centrum miasta |
Ogrzewanie: piec dwufunkcyjny |
Kanalizacja: miejska |
Komunikacja publ.: bus, autobus miejski, PKS, autobus |
Możliwość parkowania: tak |
Liczba wejść: 2 |
Podłogi: deski |
Położenie obiektu: centrum |
Teren ogrodzony: TAK |
Pow. całk. budynku [m2]: 300 |
Pow. całk. handlowa [m2]: 240 |
Okna: częściowo wymienione |
Instalacje: dobre |
Balkon: jest |
Liczba balkonów: 2 |
Ukształtowanie działki: płaska |
Rodzaj domu: kamienica wolnostojąca |
Typ elewacji: klinkier |
Podst. materiał budowlany: cegła |
Pokrycie dachu: blacha |
Powierzchnia użytkowa [m2]: 196 |
Stan budynku: do remontu |
Podpiwniczenie: częściowo podpiwniczony |
Garaż: wolnostojący |
Ogrodzenie działki: ogrodzona |
Rok budowy: 1920 |
Liczba pokoi: 6 |
Wysokość pomieszczeń [m]: 3,3000 |
Powierzchnia pokoi [m2]: 28,90; 28,90; 24,30; 24,30; 11,65; 11,65 |
Podłogi pokoi: deska drewniana |
Ściany pokoi: zwykłe, malowane |
Wystawa okien - pokoje : Pn-Wsch, Pn-Zach |
Typ kuchni: oddzielna |
Rodzaj kuchni: kuchnia jasna, osobno |
Powierzchnia kuchni [m2]: 11,65; 11,65 |
Podłoga kuchni: panele podłogowe |
Wystawa okien - kuchnia: Pn-Wsch |
Typ łazienki: razem z wc |
Liczba łazienek: 2 |
Powierzchnia łazienki [m2]: 2,76; 2,76 |
Glazura łazienki: starszego typu |
Podłoga łazienki: terakota |
Ściany łazienki: zwykłe, malowane, glazura |
Wystawa okien - łazienka : Pd-Wsch |
Liczba przedpokoi: 2 |
Podłoga przedpokoi: deska drewniana |
Ściany przedpokoi: zwykłe, malowane, boazeria |
::LINK DO STRONY |
https://sadurscy.pl/offer/BS5-DS-301630
Zobacz Wirtualny Spacer: https://sb360.online/oiuyl5
::KONTAKT DO AGENTA |
Dariusz Kornaś |
+ Zobacz kontakt48 502-104-545 |
Zobacz kontaktdarek2@sadurscy.pl
::DANE BIURA |
Oddział BS5, Nowa Huta |
Bracia Sadurscy Dariusz Sadurski |
Os. Kazimierzowskie 36 |
31-844 Kraków |
Zobacz kontakt12 265 10 29
Pośrednik odpowiedzialny zawodowo za wykonanie umowy pośrednictwa: Dariusz Sadurski (licencja nr: 803)
|
Oferta wysłana z systemu Galactica Virgo
Ogrzewanie: PIEC DWUFUNKCYJNY
Materiał: Cegła

Kontakt do agenta:
Dariusz Kornaś
Zobacz kontaktdarek2@sadurscy.pl
+ Zobacz kontakt48 502-104-545

Oceń ofertę


0


19 wydruk błąd schowek

Ostatnio przeglądane

 

 

 

pobieranie

Pobierz wzór umowy

Umowa przedwstępna sprzedaży

wybierz plik do pobrania
doc pdf

 

 

Deweloperzy

);