Prosimy, odblokuj wyświetlanie reklam w naszym serwisie, są one związane z rynkiem nieruchomości.
To dzięki nim masz darmowy dostęp do naszych treści.

Z pozdrowieniami zespół KRN.pl :)


telefon

wiadomość

mapa

Dom, Libertów

Dom na sprzedaż Libertów (woj. Małopolskie)

Lokalizacja:

Libertów, , ul.

Powierzchnia:

312.80 m2

Cena:

2 250 000 zł

Dane szczegółowe

lokalizacja:
Małopolskie, Libertów
typ obiektu:
dom na sprzedaż
cena:
2 250 000 zł
powierzchnia:
312.80 m2
media:
woda
numer ogłoszenia:
BS2-DS-258392-217
data dodania:
25-05-2024
data modyfikacji:
25-05-2024
jakość wypełnienia oferty:
100%

Szczegóły oferty



LIBERTÓW - PRZESTRONNY DOM WOLNOSTOJĄCY.

Oferujemy do sprzedaży nowoczesny dom wolnostojący, budowany według projektu firmy ARCHON -
"Dom w Stokezjach (G2)".
Inwestycja znajduje się
w bardzo dobrej lokalizacji
z bardzo dobrym dojazdem do Krakowa.
Duży,
dobrze doświetlony
dom o powierzchni
całkowitej 312,80 m2
(powierzchnia użytkowa 230,58 m2). Położony na działce 1500 m2
z możliwością zakupy mniejszej działki.

Parter:
wiatrołap, otwarta kuchnia, przestronny salon, hol, pokój, garderoba, łazienka, kotłownia, WC oraz dwustanowiskowy garaż.
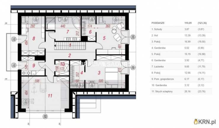
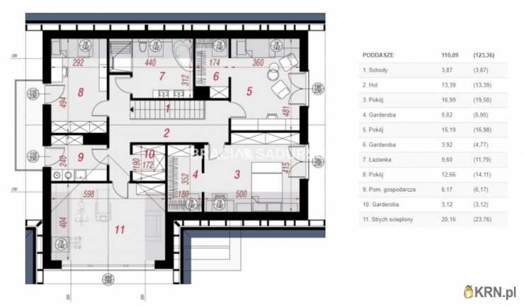
Poddasze:
hol, trzy sypialnie - każda z garderobą, pomieszczenie gospodarcze, łazienka i ocieplony strych.
Dom budowany w technologii tradycyjnej.
Okna 3-szybowe Drutex z profilem 7-komorowym, drzwi zewnętrzne Gerda, dachówka ceramiczna.
Dom sprzedany w stanie deweloperskim
- tynki wewnętrzne cementowo-wapienne, wylewki, instalacje - elektryczna, wod-kan, c.o., gazowa, alarmowa, internetowa, instalacja ogrzewania podłogowego oraz instalacja pod rolety zewnętrzne. Brama garażowa na pilota, działka ogrodzona.
W sąsiedztwie niska zabudowa.
W pobliżu plac zabaw i boisko sportowe, apteka, sklepy spożywcze, restauracja, piekarnia, przystanek MPK (400 m), przedszkole, szkoła.

Zapraszam na prezentację:
Marek Popiela + Zobacz kontakt48 518 967 677
Zobacz kontaktmarek@sadurscy.pl

::DODATKOWE INFORMACJE
Prąd: jest Gaz: jest Woda: tak - miejska Dojazd: asfalt Otoczenie: zabudowa jednorodzinna Ogrzewanie: C.O. GAZOWE Kanalizacja: tak Linie telefoniczne: TAK Internet: TAK Komunikacja publ.: autobus miejski Odległość do komunikacji publicznej [m]: 400 Odl. do szkoły [m]: 300 Odl. do przedszkola [m]: 600 Teren ogrodzony: TAK Okna: nowe PCV Instalacje: nowe Balkon: brak Tarasy: taras Liczba tarasów: 1 Zagosp. działki: zagospodarowana Ukształtowanie działki: płaska Kształt działki: prostokąt Rodzaj domu: wolnostojący Stan wybudowania: Stan deweloperski Podst. materiał budowlany: pustak ceramiczny Pokrycie dachu: dachówka ceramiczna Powierzchnia użytkowa [m2]: 230,5800 Stan budynku: do wykończenia Podpiwniczenie: nie Garaż: na dwa samochody Ogrodzenie działki: ogrodzona Rok budowy: 2020 Liczba pokoi: 5 Liczba sypialni: 4 Powierzchnia pokoi [m2]: 30,46; 10,39; 16,99; 15,19; 12,66 Podłogi pokoi: wylewka Ściany pokoi: zwykłe Typ kuchni: aneks kuchenny - połączony z salonem Rodzaj kuchni: otwarta na salon Powierzchnia kuchni [m2]: 12,61 Podłoga kuchni: wylewka Typ łazienki: razem z wc Liczba łazienek: 2 Powierzchnia łazienki [m2]: 4,32; 9,6 Glazura łazienki: bez glazury Podłoga łazienki: wylewka Ściany łazienki: zwykłe Liczba WC: 1 Powierzchnia WC: 2,14 Glazura WC: bez glazury Podłoga WC: wylewka Ściany WC: zwykłe Liczba przedpokoi: 1 Podłoga przedpokoi: wylewka Ściany przedpokoi: zwykłe
::LINK DO STRONY
https://sadurscy.pl/offer/BS2-DS-258392
::KONTAKT DO AGENTA
Marek Popiela + Zobacz kontakt48 518-967-677 Zobacz kontaktmarek@sadurscy.pl
::DANE BIURA
Oddział BS2, Rynek Pierwotny Królewska 67 30-081 Kraków Zobacz kontakt12 630-90-45
--------------------------
::GRATIS | Nasza prowizja zawiera: koszt przedwstępnej notarialnej umowy sprzedaży nieruchomości z rynku wtórnego. ::GWARANCJA | Gwarancja zwrotu zadatku. Więcej informacji na sadurscy.pl/zwrot-zadatku/

Ogrzewanie: Gazowe
Materiał: Pustak

Kontakt do agenta:
Marek Popiela
Zobacz kontaktmarek@sadurscy.pl
+ Zobacz kontakt48 518-967-677

Oceń ofertę


3


374 wydruk błąd schowek

Ostatnio przeglądane

 

 

 

pobieranie

Pobierz wzór umowy

Umowa przedwstępna sprzedaży

wybierz plik do pobrania
doc pdf

 

 

Deweloperzy

);