Prosimy, odblokuj wyświetlanie reklam w naszym serwisie, są one związane z rynkiem nieruchomości.
To dzięki nim masz darmowy dostęp do naszych treści.

Z pozdrowieniami zespół KRN.pl :)


telefon

wiadomość

mapa

Dom, Walendów, ul. Brzozowa

Dom na sprzedaż Walendów (woj. Mazowieckie), ul. Brzozowa

Lokalizacja:

Walendów, , ul. Brzozowa

Powierzchnia:

300.00 m2

Cena:

4 399 000 zł

Dane szczegółowe

lokalizacja:
Mazowieckie, Walendów, ul. Brzozowa
typ obiektu:
dom na sprzedaż
cena:
4 399 000 zł
pokoi:
5
ilość pięter w budynku:
1
powierzchnia:
300.00 m2
media:
gaz
numer ogłoszenia:
N+159439
data dodania:
01-07-2025
data modyfikacji:
22-11-2025
jakość wypełnienia oferty:
100%

Szczegóły oferty

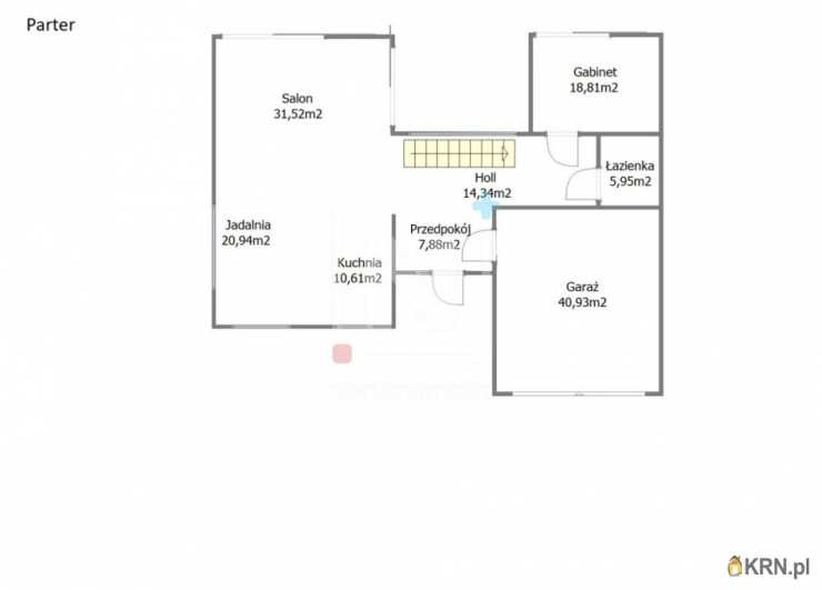
Ten wyjątkowy dom oferuje wszystko, czego można oczekiwać od idealnego miejsca do zamieszkania.Podwójne miejsce garażowe, 4 sypialnie, ekspozycję południowo-zachodnią, duże panoramiczne okna, duży ogród do dowolnej aranżacji, kameralną zabudowę w okolicy oraz mnóstwo miejsc rekreacyjnych w pobliżu.Dom posiada przestronne, podwójne miejsce garażowe, które zapewnia wygodę i bezpieczeństwo dla dwóch samochodów.Znajdujące się w domu cztery sypialnie gwarantują odpowiednią przestrzeń dla całej rodziny. Każda sypialnia jest dobrze doświetlona, posiada dużo miejsca na przechowywanie oraz jest zaprojektowana z myślą o komforcie i relaksie.Dzięki ekspozycji, dom otrzymuje mnóstwo naturalnego światła przez cały dzień. To idealne rozwiązanie dla osób ceniących jasne i słoneczne wnętrza.Wnętrze domu jest doskonale doświetlone dzięki dużym oknom panoramicznym, które nie tylko dają mnóstwo światła, ale również umożliwiają podziwianie pięknych widoków na otaczającą przyrodę.Nieruchomość posiada przestronny ogród, który jest gotowy do aranżacji według własnych preferencji.To wspaniałe miejsce do relaksu, spotkań z rodziną i przyjaciółmi oraz uprawiania różnorodnych aktywności na świeżym powietrzu.Dom znajduje się w kameralnej i spokojnej okolicy, zapewniającej prywatność i spokój. Znajdujące się w pobliżu luksusowe rezydencje i zadbane tereny sprawiają, że jest to miejsce idealne dla osób poszukujących spokojnego i prestiżowego otoczenia.W najbliższej okolicy znajduje się wiele miejsc rekreacyjnych, takich jak parki, ścieżki rowerowe i korty tenisowe. Zapewnia to liczne możliwości aktywnego spędzania czasu wolnego na świeżym powietrzu.To tylko kilka z wielu zalet tego uroczego domu.Jeśli jesteście Państwo zainteresowani bliższym zapoznaniem się z tą nieruchomością, chętnie udzielę dodatkowych informacji oraz umówię na dogodny termin prezentacji.

Oceń ofertę


3


363 wydruk błąd schowek

Ostatnio przeglądane

 

 

 

pobieranie

Pobierz wzór umowy

Umowa przedwstępna sprzedaży

wybierz plik do pobrania
doc pdf

 

 

Deweloperzy

);