Prosimy, odblokuj wyświetlanie reklam w naszym serwisie, są one związane z rynkiem nieruchomości.
To dzięki nim masz darmowy dostęp do naszych treści.

Z pozdrowieniami zespół KRN.pl :)


telefon

wiadomość

mapa

Dom, Kraków, Dębniki/Pychowice, ul. Tyniecka

Dom na sprzedaż Kraków (woj. Małopolskie), Dębniki/Pychowice, ul. Tyniecka

Lokalizacja:

Kraków, Dębniki/Pychowice, ul. Tyniecka

Powierzchnia:

280.00 m2

Cena:

1 299 000 zł

Dane szczegółowe

lokalizacja:
Małopolskie, Kraków, Dębniki/Pychowice, ul. Tyniecka
typ obiektu:
dom na sprzedaż
cena:
1 299 000 zł
powierzchnia:
280.00 m2
media:
gaz
numer ogłoszenia:
BS1-DS-312624-124
data dodania:
12-12-2025
data modyfikacji:
12-12-2025
jakość wypełnienia oferty:
100%

Szczegóły oferty


ZDJĘCIA W OGŁOSZENIU NALEŻĄ DO WŁAŚCICIELA OFERTY

ULICA TYNIECKA - REJON ZAKRZÓWKA / oferta również dla inwestora /

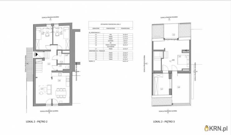
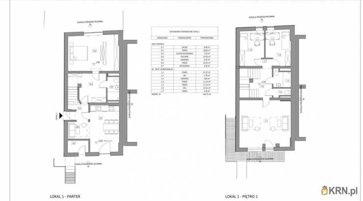
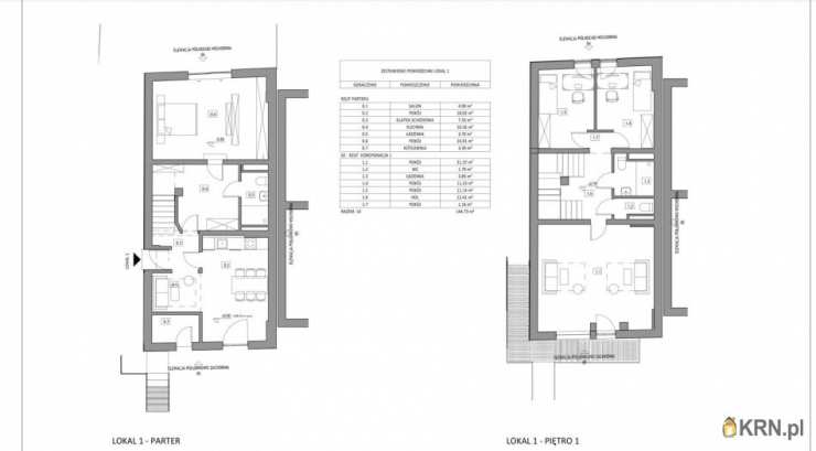
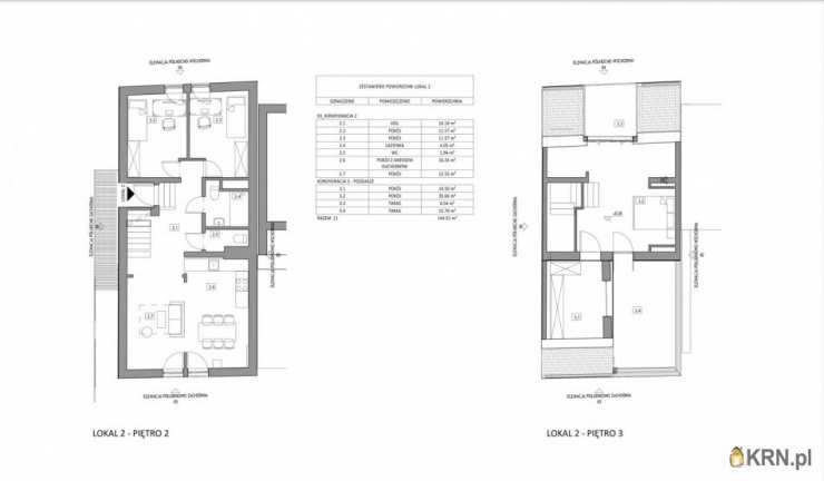
Oferujemy do sprzedaży dom w zabudowie bliźniaczej o pow. około 280 m2 / budynek nie posiada wspólnych elementów konstrukcyjnych z budynkiem sąsiednim /.
Z uwagi na planowaną rozbudowę i nadbudowę, dla budynku przeprowadzono ocenę stanu technicznego konstrukcji i elementów budynku z uwzględnieniem stanu podłoża gruntowego. Ocena jest pozytywna.
Budynek został wzniesiony metodą tradycyjną, z pustaków z wieńcem żelbetowym. Fundamenty stanowią ławy żelbetowe gr. 40 cm i szerokości 70 cm pod ścianami zewnętrznymi i 80 cm pod ścianami wewnętrznymi nośnymi. Ściany zewnętrzne murowane, gr. 40 cm, ściany wewnętrzne 25 cm. Stropy żelbetowe, płytowe gr. 12 cm.

Posiadamy koncepcję architektoniczną przebudowy i rozbudowy budynku, której realizacja pozwoli na uzyskanie 4 mieszkań o pow. po 80 m2 lub 8 po 37 m2. Likwidacja istniejących widokowych tarasów pozwoli uzyskać dodatkowo mieszkania o pow. około 80 m2.

Na terenie posesji znajduje się również parterowy dom z lat 50-tych o pow. około 140 m2, z garażem, którego nadbudowa pozwoli uzyskać dwa kolejne mieszkania o pow. około 95 i 55 m2.

Doskonała lokalizacja, do przystanku autobusowego linii 112 / dojazd do Ronda Grunwaldzkiego /
203 / dojazd do pętli autobusowej i tramwajowej przy Czerwonych Makach / 30 m. Z górnych kondygnacji przepiękny widok na zakole Wisły, Las Bielańsko Tyniecki, Klasztor Kamedułów. Wokół tereny rekreacyjne, m. innymi ścieżka rowerowa do Tyńca, baseny na Zakrzówku. Bardzo blisko do Kampusu UJ oraz szeregu firm o profilu IT położonych na Ruczaju.
Prezentacja nieruchomości po podpisaniu umowy pośrednictwa jest bezpłatna.
Kontakt : Adam + Zobacz kontakt48 510 131 177
Zobacz kontaktadam@sadurscy.pl

::DODATKOWE INFORMACJE
Prąd: w budynku Gaz: tak - miejski Woda: jest Dojazd: asfalt Otoczenie: działki zabudowane Ogrzewanie: gazowe Kanalizacja: w ulicy Komunikacja publ.: autobus miejski Okna: PCV Instalacje: niewymienione Balkon: mały Wymiary działki [m]: 10 x 50 Zagosp. działki: zagospodarowana Ukształtowanie działki: płaska Kształt działki: prostokąt Rodzaj domu: bliźniak Stan wybudowania: Pod klucz Typ elewacji: tynk zwykły Podst. materiał budowlany: beton, pustak Pokrycie dachu: dachówka Stan budynku: do remontu Podpiwniczenie: nie Garaż: garaż Ogrodzenie działki: siatka Rok budowy: 1991 Liczba pokoi: 9 Wysokość pomieszczeń [m]: 2,5000 Liczba sypialni: 4 Podłogi pokoi: panele Ściany pokoi: zwykłe
::LINK DO STRONY
https://sadurscy.pl/offer/BS1-DS-312624
::KONTAKT DO AGENTA
Adam Kubala + Zobacz kontakt48 510-131-177 Zobacz kontaktadam@sadurscy.pl
::DANE BIURA
Oddział BS1, Kapelanka Kapelanka 1A/1 30-347 Kraków Zobacz kontakt12 429-25-12

Ogrzewanie: Gazowe
Materiał: Pustak

Kontakt do agenta:
Adam Kubala
Zobacz kontaktadam@sadurscy.pl
+ Zobacz kontakt48 510-131-177

Oceń ofertę


0


23 wydruk błąd schowek

Ostatnio przeglądane

 

 

 

pobieranie

Pobierz wzór umowy

Umowa przedwstępna sprzedaży

wybierz plik do pobrania
doc pdf

 

 

Deweloperzy

);