Prosimy, odblokuj wyświetlanie reklam w naszym serwisie, są one związane z rynkiem nieruchomości.
To dzięki nim masz darmowy dostęp do naszych treści.

Z pozdrowieniami zespół KRN.pl :)


telefon

wiadomość

mapa

Dom, Kozy

Dom na sprzedaż Kozy (woj. Śląskie)

Lokalizacja:

Kozy, , ul.

Powierzchnia:

276.00 m2

Cena:

1 000 000 zł

Dane szczegółowe

lokalizacja:
Śląskie, Kozy
typ obiektu:
dom na sprzedaż
cena:
1 000 000 zł
powierzchnia:
276.00 m2
numer ogłoszenia:
BS5-DS-295889-90
data dodania:
05-02-2026
data modyfikacji:
05-02-2026
jakość wypełnienia oferty:
100%

Szczegóły oferty

|

Dom jednorodzinny z basenem, strefą SPA oraz windą w Kozach, powiat bielski Oferujemy na sprzedaż dom jednorodzinny, wolnostojący,
w stanie deweloperskim ,
o powierzchni 247 m 2
posadowiony
na działce o powierzchni 1294 m 2
. Dom zlokalizowany jest w odległości 7 km od centrum Bielska-Białej. Dom wyróżnia bryła o niebanalnej, nowoczesnej architekturze, w której poza standardową strefą dzienną i nocną oraz dwustanowiskowy garaż, znalazło się miejsce na strefę SPA z basenem, a nawet na windę. Oferowana przestrzeń wraz z nowoczesnymi rozwiązaniami technicznymi sprawi, iż zamieszkanie w tym miejscu nawet najbardziej wymagającym zapewni wygodę codziennego funkcjonowania oraz komfort wypoczynku z ponadprzeciętnymi możliwościami relaksu.
Budynek
został
zaprojektowany w sposób ułatwiający dostęp oraz użytkowanie przez osoby niepełnosprawne
oraz posiadające ograniczenia w sprawności ruchowej. Komunikację poziomą zaprojektowano
bez barier architektonicznych . Dodatkowo zamontowana winda ułatwia komunikację z parteru na piętro budynku.

Dom może stanowić także idealne miejsce
dla osób wymagających stałej aqua-rehabilitacji czy fizjoterapii
- teraz codzienne, kilkugodzinne zabiegi można realizować we własnym domu!
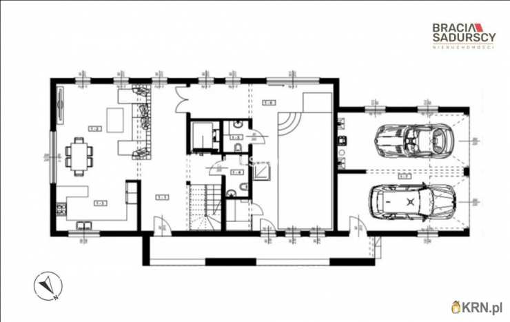
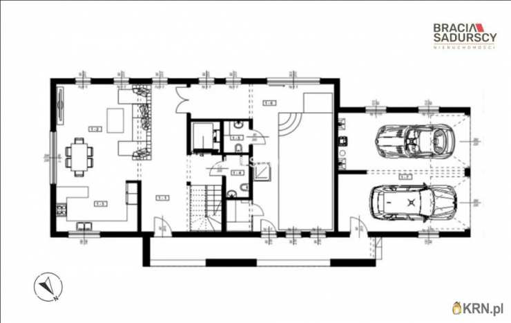
ROZKŁAD POMIESZCZEŃ
Dom został funkcjonalnie zaprojektowany z wyraźnym podziałem na strefę dzienną i nocną (prywatną) oraz strefę SPA z basenem. Oferowana przestrzeń obejmuje:
Na parterze:
Strefę dzienną
z dużym, jasnym salon z otwartą kuchnia i jadalnią, wygodną komunikację oraz toaletę
Strefę SPA , w której znajdziemy basen o wymiarach 6x3m z przeciwprądem i podświetleniem, miejsce na saunę, jakuzzi, toaletę oraz prysznic
Dwustanowiskowy garaż
Na piętrze
Część nocną (prywatną)
obejmującą sypialnię główną z garderobą i łazienką, sypialnię z garderobą, pokój, łazienkę oraz dodatkową garderobę.
OPIS TECHNICZNY, MEDIA, INSTALACJE
Dom
wybudowany w systemie szkieletowym
z 30-letnią gwarancją wg. najnowszej niemieckiej technologii o najwyższej klasie energetycznej „A”.
Pełne instalacje: wodno-kanalizacyjną, elektryczną, centralnego ogrzewania z piecem gazowym, osobne ogrzewanie wody w basenie.
Standard wykończenia:
deweloperski

DODATKOWE ATUTY
dwustanowiskowy garaż naziemny z automatyczną bramą
4-osobowa winda
centralny odkurzacz
rekuperacja dla części mieszkalnej i rekreacyjnej (z osuszaniem powietrza na basenie)
basen wyposażony w instalację filtrującą i podgrzewającą wodę

DOJAZD, KOMUNIKACJA I NAJBLIŻSZA OKOLICA
Dom posadowiony jest na pełnej zieleni działce o regularnym kształcie co daje duży potencjał dla własnej aranżacji oraz zapewnia możliwość niezakłóconego odpoczynku. W pobliżu znajdują się zabudowania jednorodzinne. Szkoła podstawowa, przedszkole oraz inne obiekty użyteczności publicznej znajdują się w odległości ok. 1,5 km.

Dojazd do położonych w odległości zaledwie 7 km Kęt zajmuje ok. 8 minut, a
do Bielska-Białej ok. 15 minut . W obu kierunkach można dostać się także dzięki środkom komunikacji zbiorowej - autobusem lub pociągiem.
W pobliżu znajdują się:
- przystanek autobusowy linii 110 - 350 m
- sklep Lewiatan - 500 m
- stacja PKP - 1,3 km
- droga ekspresowa S1 - 7 km
- centrum Bielsko-Białej - 9 km
- Międzybrodzie Żywieckie - 15 km
FORMA WŁASNOŚCI
Dom posiada uregulowany stan prawny.

TERMIN DOSTĘPNOŚCI
Od zaraz.
INNE
- istnieje możliwość wykończenia pod klucz na indywidualne zamówienie

Podana cena jest ceną
NETTO (!) .

Kupujący nie płaci podatku PCC .

Cena podlega negocjacji. Biuro pomaga bezpiecznie przeprowadzić transakcję.

Szczegóły oferty:
Zobacz kontakt798 352 683
Zobacz kontaktmarek3@sadurscy.pl


::DODATKOWE INFORMACJE |
Prąd: jest |
Gaz: jest |
Woda: jest |
Dojazd: asfalt |
Otoczenie: zabudowa jednorodzinna |
Ogrzewanie: piec dwufunkcyjny |
Kanalizacja: miejska |
Komunikacja publ.: kolej, autobus |
Odległość do komunikacji publicznej [m]: 350 |
Odl. do sklepu [m]: 500 |
Odl. do szkoły [m]: 1500 |
Odl. do przedszkola [m]: 1500 |
Przystosowania dla niepełnosprawnych: TAK |
Okna: PCV |
Instalacje: nowe |
Tarasy: taras duży |
Liczba tarasów: 1 |
Powierzchnia ogródka [m2]: 500 |
Wymiary działki [m]: 20x60 m |
Zagosp. działki: niezagospodarowana |
Ukształtowanie działki: płaska |
Kształt działki: prostokąt |
Rodzaj domu: jednorodzinny |
Stan wybudowania: Stan deweloperski |
Typ elewacji: baranek |
Pokrycie dachu: blachodachówka |
Powierzchnia użytkowa [m2]: 247 |
Stan budynku: do wykończenia |
Podpiwniczenie: nie |
Garaż: dwustanowiskowy |
Ogrodzenie działki: brak |
Rok budowy: 2023 |
Liczba pokoi: 4 |
Wysokość pomieszczeń [m]: 2,6000 |
Liczba sypialni: 3 |
Powierzchnia pokoi [m2]: 24, 21, 14, 12 |
Typ kuchni: aneks kuchenny |
Rodzaj kuchni: aneks kuchenny połączony z jadalnią i salonem |
Powierzchnia kuchni [m2]: 9 |
Liczba łazienek: 2 |
Powierzchnia łazienki [m2]: 7, 6 |
Liczba WC: 2 |
Powierzchnia WC: 2, 2 |
Liczba przedpokoi: 2 |
Powierzchnia przedpokoi [m2]: 14, 11 |
::LINK DO STRONY |
https://sadurscy.pl/offer/BS5-DS-295889
Zobacz Wirtualny Spacer: https://sb360.online/0g327n
::KONTAKT DO AGENTA |
Marek Wawrzeń |
+ Zobacz kontakt48 798-352-683 |
Zobacz kontaktmarek3@sadurscy.pl
::DANE BIURA |
Oddział BS5, Nowa Huta |
Bracia Sadurscy Dariusz Sadurski |
Os. Kazimierzowskie 36 |
31-844 Kraków |
Zobacz kontakt12 265 10 29
Pośrednik odpowiedzialny zawodowo za wykonanie umowy pośrednictwa: Marek Wawrzeń (licencja nr: 26458)
|
Oferta wysłana z systemu Galactica Virgo
Ogrzewanie: PIEC DWUFUNKCYJNY

Kontakt do agenta:
Marek Wawrzeń
Zobacz kontaktmarek3@sadurscy.pl
+ Zobacz kontakt48 798-352-683

Oceń ofertę


0


10 wydruk błąd schowek

Ostatnio przeglądane

 

 

 

pobieranie

Pobierz wzór umowy

Umowa przedwstępna sprzedaży

wybierz plik do pobrania
doc pdf

 

 

Deweloperzy

);