Prosimy, odblokuj wyświetlanie reklam w naszym serwisie, są one związane z rynkiem nieruchomości.
To dzięki nim masz darmowy dostęp do naszych treści.

Z pozdrowieniami zespół KRN.pl :)


telefon

wiadomość

mapa

Dom, Gęś

Dom na sprzedaż Gęś (woj. Pomorskie)

Lokalizacja:

Gęś, , ul.

Powierzchnia:

273.93 m2

Cena:

760 000 zł

Dane szczegółowe

lokalizacja:
Pomorskie, Gęś
typ obiektu:
dom na sprzedaż
cena:
760 000 zł
pokoi:
7
ilość pięter w budynku:
1
powierzchnia:
273.93 m2
numer ogłoszenia:
DJ539065
data dodania:
06-02-2016
data modyfikacji:
16-03-2026
jakość wypełnienia oferty:
100%

Szczegóły oferty

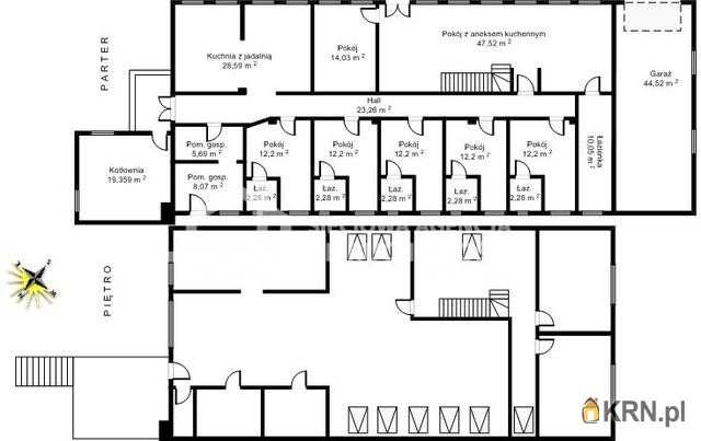
Siedlisko blisko Łeby - obiekt działający - stali goście. Parter o pow. 273,93 m: mieszkanie właścicieli (72,05m2: salon + sypialnia + kuchnia + łazienka) oraz 5 pokoi gościnnych z łazienkami (z prysznicem) + kuchnia + jadalnia z wyjściem na taras. Nowe instalacje, piec na ekogroszek. Piętro do wykończenia - są schody. Murowany grill, można zbudować basen. 30-arowy staw rybny. Z trzech stron blisko do lasu. W pobliżu obwód łowiecki i rzeka Łeba. Doskonałe miejsce do prowadzenia działalności usługowo-hotelowej, atrakcyjne miejsce pod wpływem lokalizacyjnym jak i przyrodniczym. Ogromny potencjał z możliwością rozbudowy infrastruktury i rozszerzenia działalności.

Oceń ofertę


9.99


2311 wydruk błąd schowek

Ostatnio przeglądane

 

 

 

pobieranie

Pobierz wzór umowy

Umowa przedwstępna sprzedaży

wybierz plik do pobrania
doc pdf

 

 

Deweloperzy

);