Prosimy, odblokuj wyświetlanie reklam w naszym serwisie, są one związane z rynkiem nieruchomości.
To dzięki nim masz darmowy dostęp do naszych treści.

Z pozdrowieniami zespół KRN.pl :)


telefon

wiadomość

mapa

Dom, Łagów

Dom na sprzedaż Łagów (woj. Świętokrzyskie)

Lokalizacja:

Łagów, , ul.

Powierzchnia:

245.80 m2

Cena:

660 000 zł

Dane szczegółowe

lokalizacja:
Świętokrzyskie, Łagów
typ obiektu:
dom na sprzedaż
cena:
660 000 zł
powierzchnia:
245.80 m2
numer ogłoszenia:
PRP-DS-75191
data dodania:
22-06-2025
data modyfikacji:
15-08-2025
jakość wypełnienia oferty:
100%

Szczegóły oferty


Na sprzedaż dom o pow. użytkowej
123,5 m2 (całkowitej ok. 245,8 m2),
zlokalizowany na
działce o pow. 1185 m2 w Łagowie
Budowa domu zakończyła się w 2004 roku (rozpoczęcie budowy - 1999r.).
W skład nieruchomości wchodzą: (powierzchnie pomieszczeń mierzone dalmierzem)
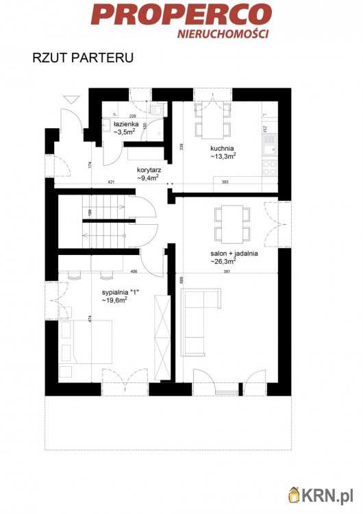
PARTER :
- salon z jadalnią ( pow. 26,3 m2),
- sypialnia (pow.19,6 m2),
- hall (pow. ok. 9,4 m2),
- kuchnia (pow. ok. 13,3 m2),
- łazienka (pow. ok. 3,5 m2),
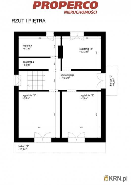
1 PIĘTRO : (w stanie do wykończenia)
- pokój (pow. ok. 20 m2),
- pokój (pow. ok. 19 m2),
- pokój (pow. 13.3 m2),
- łazienka
z WC (pow. ok. 8,7 m2),
- garderoba (pow. ok. 5 m2),
- komunikacja
(pow. ok. 16,5 m2).
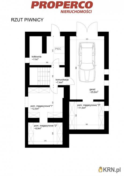
PIWNICA:
-
garaż (pow. ok. 25,6 m2),
- pom. magazynowe (pow. ok. 11,5 m2).
- pom.magazynowe (pom.ok 8,9 m2),
- pom.magazynowe (pom.ok 12,5 m2),
- kotłownia (pom.ok 11 m2),
- komunikacja (pom. ok. 7,4 m2);
Działka płaska, w pierwszej linii zabudowy o kształcie zbliżonym do litery L.
Wymiary działki: 29 (szer. od frontu) x 9 x 12,5 x 22
x 40 x 34 [m].

Media:
- woda - w budynku,
- kanalizacja - w budynku,
- prąd - w budynku,
- gaz - brak.
Podstawowy materiał konstrukcyjny -
cegła max + styropian + cegła czerwona.
Pokrycie dachu - blacha.
Ogrzewanie z pieca na paliwa stałe.
Teren ogrodzony, zagospodarowany i zadbany.
Okna PCV na podłogach mozaika drewniana oraz gres.
Dom położony w cichej i spokojnej okolicy, w pierwszej linii zabudowy przy drodze asfaltowej. W pobliżu szkoła, sklepy.
Dla nieruchomości nie wykonano świadectwa charakterystyki energetycznej.
Dane kontaktowe do agenta: Magdalena Prokopoudi E-mail:
Zobacz kontaktmagdalena.prokopoudi@properco.pl
Tel: Zobacz kontakt888-889-594
--------
For sale: a house with a usable area of 123.5 m² (total area approx. 245.8 m²), located on a plot of 1185 m² in Łagów.
The construction of the house was completed in 2004 (construction started in 1999).
The property includes: (room areas measured with a rangefinder) GROUND FLOOR:

living room with dining area (26.3 m²),
bedroom (19.6 m²),
hall (approx. 9.4 m²),
kitchen (approx. 13.3 m²),
bathroom (approx. 3.5 m²),

1st FLOOR: (unfinished state)

room (approx. 20 m²),
room (approx. 19 m²),
room (13.3 m²),
bathroom with WC (approx. 8.7 m²),
wardrobe (approx. 5 m²),
communication area (approx. 16.5 m²).

BASEMENT:

garage (approx. 25.6 m²),
storage room (approx. 11.5 m²),
storage room (approx. 8.9 m²),
storage room (approx. 12.5 m²),
boiler room (approx. 11 m²),
communication area (approx. 7.4 m²).

The plot is flat, in the first line of buildings, with a shape resembling the letter L.
Plot dimensions: 29 (width from the front) x 9 x 12.5 x 22 x 40 x 34 [m].
Utilities:

water - in the building,
sewage - in the building,
electricity - in the building,
gas - none.

Basic construction material - max brick + styrofoam + red brick. Roof covering - sheet metal. Heating from a solid fuel stove. The area is fenced, developed, and well-maintained. PVC windows with wooden mosaic and tile flooring.
The house is located in a quiet and peaceful area, in the first line of buildings by an asphalt road. Nearby there are schools and shops.
No energy performance certificate has been issued for the property.
Contact details for the agent: Magdalena Prokopoudi E-mail:
Zobacz kontaktmagdalena.prokopoudi@properco.pl
Tel: Zobacz kontakt888-889-594 --------------------------
Biuro Nieruchomości PROPERCO sp. z o.o. sp.k. współpracuje z doświadczonymi specjalistami finansowymi, oferującymi sprawdzenie zdolności kredytowej oraz przedstawienie oferty finansowania nieruchomości / Informacje dotyczące opisu nieruchomości podane są przez właściciela, mają charakter wyłącznie informacyjny i mogą podlegać aktualizacji. Oferta dotycząca nieruchomości nie stanowi oferty określonej w art. 66 i następnych KC. Nasze usługi świadczymy w oparciu o umowę pośrednictwa, która gwarantuje Państwu opiekę naszego doradcy przez cały okres trwania współpracy. Za wykonaną usługę pobieramy wynagrodzenie zgodnie z warunkami uzgodnionymi w zawartej umowie /// The real estate agency PROPERCO sp. z o.o. sp.k. collaborates with experienced financial specialists, offering creditworthiness assessment and presenting property financing offers. Information regarding property descriptions is provided by the owner, is purely informational, and may be subject to updates. The property offer does not constitute a specific offer as defined in Art. 66 and subsequent articles of the Civil Code. Our services are provided based on a brokerage agreement, ensuring you the care of our advisor throughout the entire collaboration period. We charge a fee for the services rendered according to the terms agreed upon in the concluded agreement.
Zapraszamy do siedziby naszego biura w Kielcach przy ul. Koziej 3a/1. /// We invite you to visit our office located in Kielce at 3a/1 Kozia Street.
Dane adresowe /// Address details:
PROPERCO sp. z o.o. sp.k ul. Kozia 3a/1 25-514 Kielce tel. kom: + Zobacz kontakt48 692-024-827 https://www.properco.pl/

Ogrzewanie: PIEC
Materiał: Cegła

Kontakt do agenta:
Magdalena Prokopoudi
Zobacz kontaktmagdalena.prokopoudi@properco.pl
+ Zobacz kontakt48 41 310 90 71
+ Zobacz kontakt48 888 889 594

Oceń ofertę


3


298 wydruk błąd schowek

Ostatnio przeglądane

 

 

 

pobieranie

Pobierz wzór umowy

Umowa przedwstępna sprzedaży

wybierz plik do pobrania
doc pdf

 

 

Deweloperzy

);