Prosimy, odblokuj wyświetlanie reklam w naszym serwisie, są one związane z rynkiem nieruchomości.
To dzięki nim masz darmowy dostęp do naszych treści.

Z pozdrowieniami zespół KRN.pl :)


telefon

wiadomość

mapa

Dom, Węgrzce

Dom na sprzedaż Węgrzce (woj. Małopolskie)

Lokalizacja:

Węgrzce, , ul.

Powierzchnia:

243.00 m2

Cena:

1 529 000 zł

Dane szczegółowe

lokalizacja:
Małopolskie, Węgrzce
typ obiektu:
dom na sprzedaż
cena:
1 529 000 zł
powierzchnia:
243.00 m2
numer ogłoszenia:
DNX-DS-30752-1
data dodania:
10-04-2026
data modyfikacji:
28-04-2026
jakość wypełnienia oferty:
100%

Szczegóły oferty


DO SPRZEDAŻY DOM W STANIE DEWELOPERSKIM WĘGRZCE GMINA ZIELONKI

PRAWY SEGMENT 243 m2 POŁOŻONY NA DZIAŁCE 10 ARÓW.
Na sprzedaż ciekawy segment w zabudowie bliźniaczej,
zlokalizowany w zielonej i spokojnej części Węgrzc.
Podwaliny budynku to lata 90-te.
Nastąpił generalny remont. Remont obejmował wymianę :
- dachu,
- nowe okna,
- nowe instalacje ( prąd, woda, gaz, CO, domofon ),
- nowa brama garażowa, -
płytki na schodach zew, nowe drzwi wejściowe, nowe ogrodzenie oraz brama wjazdowa, zagospodarowany ogród od frontu.
MEDIA
wszystkie dostępne media: prąd, woda, gaz, kanalizacja ( instalacja pod ogrzewanie gazowe bez kaloryferów )
Działka o powierzchni 10 arów.
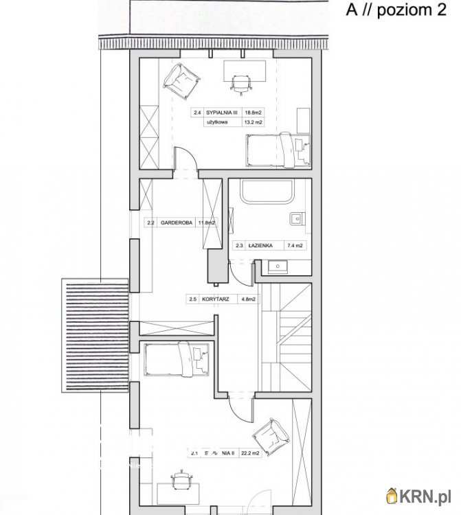
ROZKŁAD POMIESZCZEŃ:

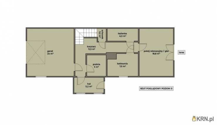
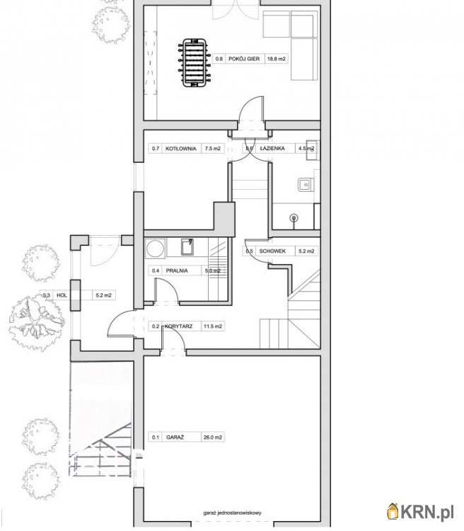
Parter (poziom 0):
-garaż w bryle , łazienka,
- pokój z wyjściem do ogrodu
- pomieszczenia techniczne: kotłownia +pralnia
I piętro:
- salon,
- kuchnia z jadalnią, częściowo otwarta na salon,
- gabinet/sypialnia/
- garderoba
- łazienka
II piętro:
- trzy sypialnie,
- łazienka
- garderoba
. III piętro (poddasze):
UKŁAD I FUNKCJONALNOŚĆ
Ogromna przestrzeń i wysokość kondygnacji pozwalają na dowolną aranżację:

dom wielopokoleniowy,

przestrzeń biurowa,

strefa rekreacyjna,

Doskonała, świetnie skomunikowana lokalizacja — dojazd do Krakowa zajmuje zaledwie kilka minut, a jednocześnie domy znajdują się w cichej, wiejskiej okolicy, dającej poczucie spokoju i prywatności.
W sąsiedztwie zabudowa jednorodzinna, dużo zieleni, pełna infrastruktura: sklepy, szkoły, usługi, komunikacja.
Szybki dostęp do trasy E7, co gwarantuje komfortowy dojazd zarówno do centrum miasta, jak i w kierunku Warszawy.


DO OFERTY DOŁĄCZONE RZUTY ORAZ FILM !!!!!!!
NIE MA OGRANICZEŃ CZASOWYCH W PREZENTACJI NIERUCHOMOŚCI GDYŻ KLUCZE W POSIADANIU BIURA "DANAX"

::DODATKOWE INFORMACJE
Prąd: jest Woda: jest Dojazd: ASFALTOWA Ogrzewanie: gazowe Komunikacja publ.: autobus Instalacje: nowe Ukształtowanie działki: płaska Rodzaj domu: bliźniak Pozwolenie na użytkowanie: tak Powierzchnia użytkowa [m2]: 243 Stan budynku: do wykończenia Garaż: garaż Ogrodzenie działki: ogrodzona Liczba pokoi: 6
::KONTAKT DO AGENTA
Bogusława Kapera Zobacz kontakt501 187 897 Zobacz kontaktbogusia@danax.pl
Pośrednik odpowiedzialny zawodowo za wykonanie umowy pośrednictwa: Bartłomiej Krosta (licencja nr: 6585)
--------------------------
Od 1993 r. pośredniczymy w transakcjach na krakowskim rynku nieruchomości.
Pomożemy Ci jak przyjacielowi.

Ogrzewanie: Gazowe

Kontakt do agenta:
Bogusława Kapera
Zobacz kontaktbogusia@danax.pl
Zobacz kontakt501 187 897

Oceń ofertę


0


673 wydruk błąd schowek

Ostatnio przeglądane

 

 

 

pobieranie

Pobierz wzór umowy

Umowa przedwstępna sprzedaży

wybierz plik do pobrania
doc pdf

 

 

Deweloperzy

);