Prosimy, odblokuj wyświetlanie reklam w naszym serwisie, są one związane z rynkiem nieruchomości.
To dzięki nim masz darmowy dostęp do naszych treści.

Z pozdrowieniami zespół KRN.pl :)


telefon

wiadomość

mapa

Dom, Sławkowice

Dom na sprzedaż Sławkowice (woj. Małopolskie)

Lokalizacja:

Sławkowice, , ul.

Powierzchnia:

242.59 m2

Cena:

767 460 zł

Dane szczegółowe

lokalizacja:
Małopolskie, Sławkowice
typ obiektu:
dom na sprzedaż
cena:
767 460 zł
powierzchnia:
242.59 m2
numer ogłoszenia:
BS2-DS-284807-190
data dodania:
25-05-2024
data modyfikacji:
25-05-2024
jakość wypełnienia oferty:
100%

Szczegóły oferty



DOMY W TECHNOLOGII SZKIELETOWEJ FIRMY "OMDOM"
DREWNIANE, EKOLOGICZNE, ZDROWE.

Projekt
"dębina 13 dws" z firmy
Dom-projekt

Oferujemy do sprzedaży wolnostojący dom, wykonany w technologii szkieletowej. Wykończenie elewacją systemową z tynkiem szlachetnym cienkowarstwowym. Budynek parterowy o powierzchni całkowitej 242,59 m2.
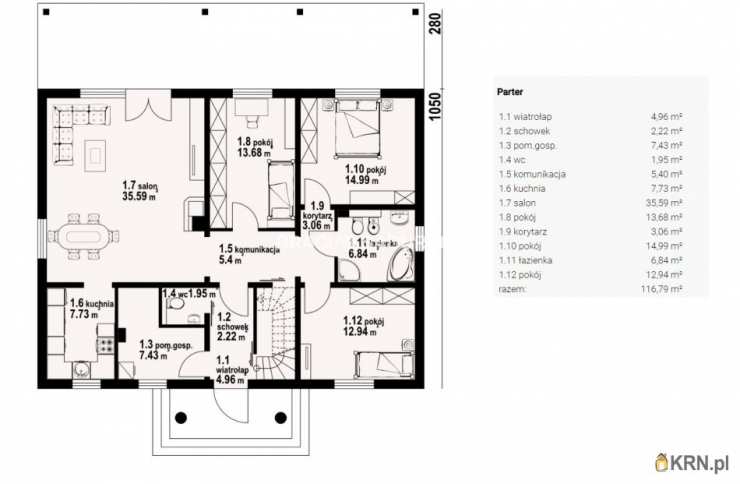
Rozkład pomieszczeń:
Parter; salon 35,59 m2, kuchnia 7,73 m2, pokój 13,68 m2, pokój 14,99 m2, pokój 12,94 m2,
wc 1,95 m2, łazienka 6,84 m2, pomieszczenie gospodarcze 7,43 m2 ,komunikacja 5,4 m2 , wiatrołap 4,96 m2,
Poddasze;
pokój 13,37 m2 pokój 17 m2 schowek 1,16m2 , komunikacja 9,77 m2 , łazienka 7,08 m2 garderoba 3,73 m2.
Powierzchnia użytkowa 168,9 m²
powierzchnia zabudowy 142,5 m²
powierzchnia netto 242,59 m² kubatura 720,8 m³ kąt nachylenia dachu 36° wys. kalenicy 8,18 m min. wymiary działki 21,55x19 m
Szkielet domu składa się z połączonych drewnianych belek 50×150 mm. Wewnątrz szkieletu jest układana wełna izolacyjna o grubości 150 mm, od wewnątrz jest odseparowana za pomocą paroizolacji, a od zewnątrz za pomocą odpornej na wilgoć membrany, która zapobiega przenikaniu wilgoci do wnętrza konstrukcji. Ściany są obłożone za pomocą twardych wodoodpornych płyt OSB-3. Od wewnątrz
płyty gipsowo-kartonowe. Okładzinę zewnętrzną stanowi systemowe ocieplenie z pokryciem tynkiem szlachetnym zbrojonym siatką z włókna szklanego. Taka kombinacja zapewnia; estetykę, wysoką wytrzymałość i izolację termiczną przy niewielkiej grubości ścian. Funkcje izolacji zapewnia wełna mineralna/skalna. Cała konstrukcja jest bardzo wytrzymała dzięki okładzinom z płyt OSB, które zamykają izolację i łączą całość konstrukcji belek drewnianych drewnianych, która może wytrzymać duże obciążenia.

Dom według projektu firmy Dom-projekt "dębina 13 dws".

Cena obejmująca wykonanie: Konstrukcja ścian zewnętrznych C24 150x50 *mm+ Szkielety ścianek działowych 100x50 *mm+ Oblicowanie szkieletu od zewnątrz płytami OSB 12mm Zabezpieczenie ścian zewnętrznych wiatroizolacją, wykonanie elewacji systemowej (ocieplenie+ tynk akrylowy, silikonowy lub mineralny). Więźba dachowa zgodna z projektem Konstrukcja dachu obłożona płytami OSB 18mm Ściana kolankowa zgodna z projektem Pokrycie dachu papą Wykonanie pokrycia dachowego (blachodachówką) W domach z poddaszem użytkowym wykonanie stropopodłogi z płyt OSB 22mm Drzwi zewnętrzne Stolarka okienna PCV.
Cena nie obejmuje wykonania fundamentów, ewentualnego podpiwniczenia oraz kosztów wykończenia i rozprowadzenia instalacji.
Kontakt:
Romuald Niemiec + Zobacz kontakt48 576 853 289
Zobacz kontaktromuald@sadurscy.pl

::DODATKOWE INFORMACJE
Kategoria oferty: Mieszkania dla rodzin z dziećmi Ogrzewanie: inne Rodzaj domu: wolnostojący Typ elewacji: tynk szlachetny Pokrycie dachu: blachodachówka Powierzchnia użytkowa [m2]: 168,9000 Stan budynku: do wykończenia Rok budowy: 2021 Liczba pokoi: 6
::LINK DO STRONY
https://sadurscy.pl/offer/BS2-DS-284807
::KONTAKT DO AGENTA
Romuald Mieniec + Zobacz kontakt48 576-853-289 Zobacz kontaktromuald@sadurscy.pl
::DANE BIURA
Oddział BS2, Rynek Pierwotny Królewska 67 30-081 Kraków Zobacz kontakt12 630-90-45
--------------------------
::GRATIS | Nasza prowizja zawiera: koszt przedwstępnej notarialnej umowy sprzedaży nieruchomości z rynku wtórnego. ::GWARANCJA | Gwarancja zwrotu zadatku. Więcej informacji na sadurscy.pl/zwrot-zadatku/

Ogrzewanie: INNE

Kontakt do agenta:
Romuald Mieniec
Zobacz kontaktromuald@sadurscy.pl
+ Zobacz kontakt48 576-853-289

Oceń ofertę


3.4


466 wydruk błąd schowek

Ostatnio przeglądane

 

 

 

pobieranie

Pobierz wzór umowy

Umowa przedwstępna sprzedaży

wybierz plik do pobrania
doc pdf

 

 

Deweloperzy

);