Prosimy, odblokuj wyświetlanie reklam w naszym serwisie, są one związane z rynkiem nieruchomości.
To dzięki nim masz darmowy dostęp do naszych treści.

Z pozdrowieniami zespół KRN.pl :)


telefon

wiadomość

mapa

Dom, Kraków, Czyżyny, ul. Nastrojowa

Dom na sprzedaż Kraków (woj. Małopolskie), Czyżyny, ul. Nastrojowa

Lokalizacja:

Kraków, Czyżyny, ul. Nastrojowa

Powierzchnia:

230.03 m2

Cena:

3 200 000 zł

Dane szczegółowe

lokalizacja:
Małopolskie, Kraków, Czyżyny, ul. Nastrojowa
typ obiektu:
dom na sprzedaż
cena:
3 200 000 zł
powierzchnia:
230.03 m2
media:
gaz, woda
numer ogłoszenia:
BS5-DS-298779-70
data dodania:
18-12-2025
data modyfikacji:
18-12-2025
jakość wypełnienia oferty:
100%

Szczegóły oferty

|
*zdjęcia należą do właściciela oferty.
Dom wolno stojący na osiedlu domów jednorodzinnych w Czyżynach o pow.: 230,03 m 2 , na działce - 665 m 2 .
Przestronny, komfortowy dom w bardzo dobrym stanie, 3 kondygnacyjny z 2-ma garażami na działce o regularnym kształcie i wymiarach: 19x35 m.
Dom z przełomu lat 60 i 70 -tych XX w., po gruntownym remoncie w roku 2005 i 2015.
Wymienione zostały wszystkie instalacje wewnętrzne, zostały ocieplone ściany fundamentowe, dach oraz wymieniona stolarka okienna. W roku 2023 zostały ocieplone ściany zewnętrzne.
Dom składa się:
-
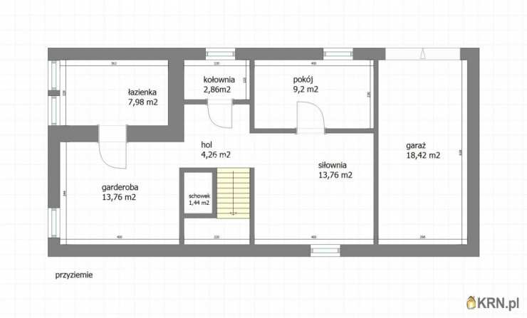
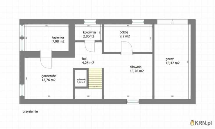
z kondygnacji przyziemnej
o pow.:
71,66 m 2
, zawierającej: garaż jednostanowiskowy o pow.: 18,42 m 2 , kotłownię (2,86 m 2 ), garderobę (13,76 m 2 ), łazienkę (7,96 m 2 ), pokój (siłownia) o pow.: 13,76 m 2 ; pokój (9,20 m 2 ), schowek (1,44 m 2 ) oraz Hol (4,26 m 2 ).
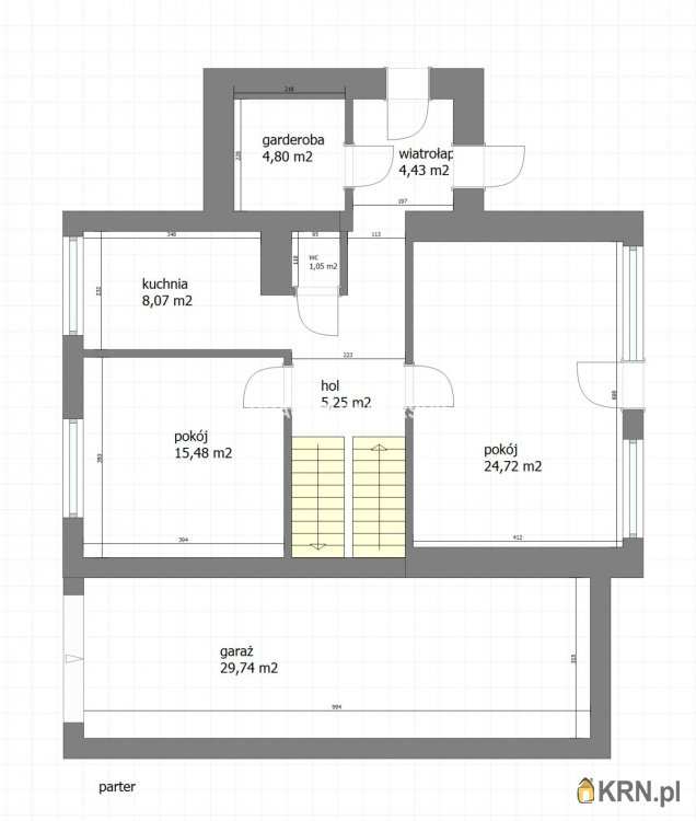
-
parteru
o pow:
93,45 m 2
, zawierającego: garaż o pow.: 29,74 m 2 , wiatrołap (4,34 m 2 ), garderobę (4,80 m 2 ), wc (1,05 m 2 ), kuchnię (8,07 m 2 ), pokój (15,48 m 2 ) oraz salon (24,72 m 2 ) z wyjściem na taras,
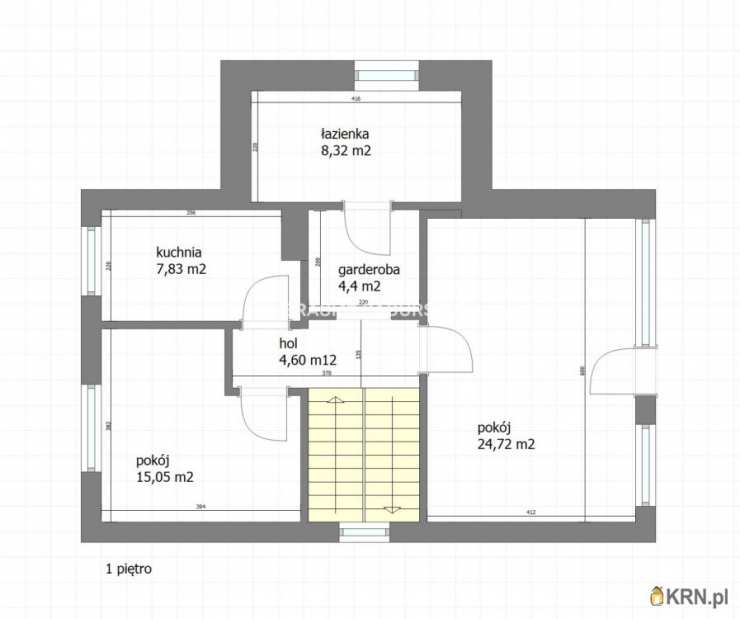
-
piętra
o pow.:
64,92 m 2
, zawierającego: hol (4,60 m 2 ), garderobę (4,40 m 2 ), łazienkę (8,32 m 2 ), pokój (15,05 m 2 ) i pokój (24,72 m 2 ) z wyjściem na balkon.
Media: woda z sieci miejskiej, gaz, kanalizacja miejska, prąd,
przyłącze siły do zasilania pojazdów elektrycznych
w garażu.
Ogrzewanie i ciepła woda z pieca gazowego kondensacyjnego, dwufunkcyjnego (z roku 2020).

Dom z powodzeniem może pełnić rolę dwurodzinnego. Idealny dostęp do komunikacji miejskiej oraz bogatej infrastruktury handlowej i usługowej.
Szczegóły oferty:
+ Zobacz kontakt48 502 104 545
::DODATKOWE INFORMACJE |
Prąd: jest |
Gaz: tak - miejski |
Woda: tak - miejska |
Dojazd: asfalt |
Otoczenie: zabudowa jednorodzinna |
Ogrzewanie: piec dwufunkcyjny |
Kanalizacja: miejska |
Komunikacja publ.: autobus miejski, tramwaj |
Okna: PCV |
Instalacje: wymienione |
Balkon: jest |
Liczba balkonów: 1 |
Tarasy: taras duży |
Liczba tarasów: 1 |
Ukształtowanie działki: płaska |
Kształt działki: prostokąt |
Rodzaj domu: wolnostojący |
Typ elewacji: tynk szlachetny |
Podst. materiał budowlany: cegła |
Pokrycie dachu: papa termozgrzewalna |
Pozwolenie na użytkowanie: tak |
Powierzchnia użytkowa [m2]: 230,0300 |
Stan budynku: do zamieszkania |
Garaż: w budynku |
Ogrodzenie działki: ogrodzona |
Rok budowy: 1970 |
Liczba pokoi: 5 |
Wysokość pomieszczeń [m]: 2,5000 |
Powierzchnia pokoi [m2]: 9,31; 24,70; 13,76; 24,70; 13,45 |
Powierzchnia kuchni [m2]: 8,73; 8,00 |
Liczba łazienek: 2 |
Powierzchnia łazienki [m2]: 8,24; 9,10 |
Liczba WC: 1 |
Powierzchnia WC: 1,0 |
::LINK DO STRONY |
https://sadurscy.pl/offer/BS5-DS-298779
::KONTAKT DO AGENTA |
Dariusz Kornaś |
+ Zobacz kontakt48 502-104-545 |
Zobacz kontaktdarek2@sadurscy.pl
::DANE BIURA |
Oddział BS5, Nowa Huta |
Bracia Sadurscy Dariusz Sadurski |
Os. Kazimierzowskie 36 |
31-844 Kraków |
Zobacz kontakt12 265 10 29
Pośrednik odpowiedzialny zawodowo za wykonanie umowy pośrednictwa: Dariusz Sadurski (licencja nr: 803)
|
Oferta wysłana z systemu Galactica Virgo
Ogrzewanie: PIEC DWUFUNKCYJNY
Materiał: Cegła

Kontakt do agenta:
Dariusz Kornaś
Zobacz kontaktdarek2@sadurscy.pl
+ Zobacz kontakt48 502-104-545

Oceń ofertę


0


10 wydruk błąd schowek

Ostatnio przeglądane

 

 

 

pobieranie

Pobierz wzór umowy

Umowa przedwstępna sprzedaży

wybierz plik do pobrania
doc pdf

 

 

Deweloperzy

);