Prosimy, odblokuj wyświetlanie reklam w naszym serwisie, są one związane z rynkiem nieruchomości.
To dzięki nim masz darmowy dostęp do naszych treści.

Z pozdrowieniami zespół KRN.pl :)


telefon

wiadomość

mapa

Dom, Jangrot

Dom na sprzedaż Jangrot (woj. Małopolskie)

Lokalizacja:

Jangrot, , ul.

Powierzchnia:

230.00 m2

Cena:

750 000 zł

Dane szczegółowe

lokalizacja:
Małopolskie, Jangrot
typ obiektu:
dom na sprzedaż
cena:
750 000 zł
powierzchnia:
230.00 m2
numer ogłoszenia:
BS5-DS-307534-101
data dodania:
26-03-2026
data modyfikacji:
26-03-2026
jakość wypełnienia oferty:
100%

Szczegóły oferty

|
Jangrot gm. Trzyciąż - dom wolnostojący o pow. 212 m2 na działce o pow. 99
ar.
Nieruchomość znajdująca się w
Jangrocie
gm. Trzyciąż składająca się z
działek gruntu
o pow. 99 ar. zabudowanych
domem wolnostojącym
oraz
budynkiem gospodarczym .
Dom jednorodzinny wykonany w technologii tradycyjnej murowanej, został wybudowany w 1975 r. a następnie rozbudowany w 1996 r. Dom jest budynkiem dwukondygnacyjnym, podpiwniczonym z poddaszem wykorzystywanym do celów niemieszkalnych. Stropy żelbetowe (płyta o grubości 10 cm) wylewane na mokro, pokrycie dachu wykonane z blachy ocynkowanej, więźba dachowa w dobrym stanie technicznym.
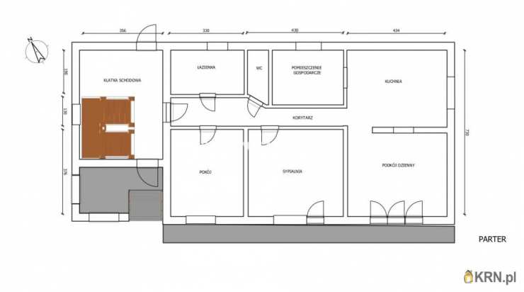
Parter
o pow. użytkowej
108,30 m2
składa się z: 3 pokoi, kuchni, łazienki, przedpokoju oraz pomieszczenia gospodarczego.
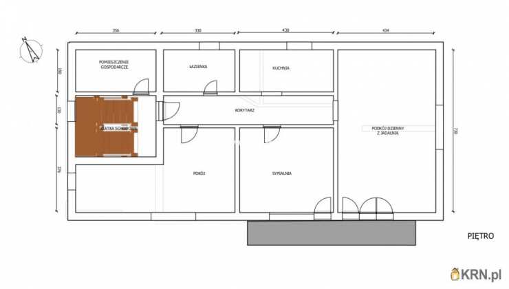
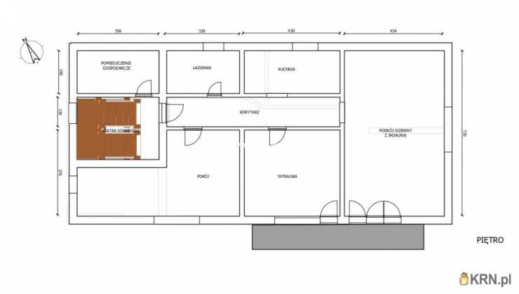
Na piętrze
o pow. użytkowej
104,40 m2
wydzielono: salon z wyjściem na balkon, 2 pokoje, kuchnię, łazienkę, przedpokój oraz schowek.
Dom jest w pełni wyposażony i umeblowany, ze względu na przeprowadzone remonty wnętrza domu (parter - 2015 r., piętro - 2019 r.) stan techniczny pomieszczeń pozwala na zamieszkanie bez konieczności ponoszenia dodatkowych kosztów remontowych.
Układ pomieszczeń jest bardzo funkcjonalny, a ich rozmieszczenie na poszczególnych kondygnacjach umożliwia wykorzystanie budynku mieszkalnego zarówno jako jednorodzinnego jaki i dwurodzinnego. Media przyłączone do budynku: sieć wodna, energia elektryczna, system kanalizacji sanitarnej w oparciu o przydomową oczyszczalnię ścieków, centralne ogrzewanie i system zaopatrzenia w ciepłą wodę zasilane z pieca na paliwo stałe z podajnikiem (ekogroszek), dodatkowo na każdym poziomie mieszkalnym znajdują się elektryczne przepływowe podgrzewacze wody.
W skład zabudowy wchodzi również budynek gospodarczy murowany, dwukondygnacyjny o pow. użytkowej ok. 190 m2 wykorzystywany jako garaż oraz warsztat.
Nieruchomość gruntowa składa się z 4 działek ewidencyjnych, które są objęte miejscowym planem zagospodarowanie przestrzennego i są oznaczone jako tereny rolne (R1) z możliwością zabudowy zagrodowej. Większa część nieruchomości gruntowej jest położona na stoku o ekspozycji
południowo-zachodniej , która gwarantuje
maksymalne nasłonecznienie
i dzięki temu może zostać wykorzystana do
uprawy
roślinnej
wymagającej korzystnego nasłonecznienia
(np.
sad
lub
winnica ), bądź też na
cele
budowy
urządzeń
stanowiących
pasywne źródło energii elektrycznej
(np.
farma fotowoltaiczna ).
Przedmiotem oferty jest nieruchomość gruntowa o powierzchni 99 arów, jednak
jest możliwość nabycia gruntu o łącznej powierzchni 1,92 ha .
Nieruchomość posiada dostęp do drogi publicznej (droga gminna asfaltowa) położona jest w spokojnej okolicy, w bezpośrednim sąsiedztwie otwarte tereny zielone oraz luźna zabudowa jednorodzinna. Lokalizacja jest korzystnie skomunikowana, znajduje się 15 km od centrum Olkusza oraz
35
km
od granicy Krakowa. Najbliższy
sklep
spożywczy
w odległości
2000 m ,
przystanek
komunikacji miejskiej
na trasie
Olkusz - Trzyciąż
(linia
A12 ) -
900 m , odległość do
szkoły
podstawowej i
przedszkola
samorządowego w Jangrocie
3
500 m .
Link do kompozycji mapowej.

Biuro pomaga bezpiecznie przeprowadzić transakcję.

Zapraszam do kontaktu i na prezentację nieruchomości.

Wojciech Sudoł
+ Zobacz kontakt48 509 907 533
Zobacz kontaktwojtek@sadurscy.pl

::DODATKOWE INFORMACJE |
Parking strzeżony (odległość w metrach) [m]: 2000 |
Prąd: w budynku |
Gaz: brak |
Woda: piecyk gazowy |
Dojazd: ASFALTOWA |
Dojazd - opis: droga asfaltowa, droga wewnętrzna utwardzona |
Otoczenie: panorama |
Ogrzewanie: ekogroszek |
Kanalizacja: oczyszczalnia ekologiczna |
Komunikacja publ.: bus, autobus podmiejski |
Odległość do komunikacji publicznej [m]: 900 |
Odl. do sklepu [m]: 2000 |
Odl. do szkoły [m]: 3500 |
Odl. do przedszkola [m]: 3500 |
Odległość od plaży: 2000 |
Opłaty wg liczników: woda, prąd, gaz |
Okna: PCV |
Instalacje: dobre |
Balkon: duży |
Liczba balkonów: 1 |
Tarasy: taras |
Liczba tarasów: 1 |
Powierzchnia ogródka [m2]: 2000 |
Zagosp. działki: zagospodarowana |
Ukształtowanie działki: pochyła |
Kształt działki: nieregularny |
Rodzaj domu: jednorodzinny |
Stan wybudowania: Pod klucz |
Typ elewacji: brak |
Pokrycie dachu: blacha |
Powierzchnia użytkowa [m2]: 212 |
Stan budynku: do zamieszkania |
Podpiwniczenie: tak |
Garaż: w budynku |
Ogrodzenie działki: częściowo ogrodzona |
Grunt utwardzany: TAK |
Rok budowy: 1990 |
Liczba pokoi: 6 |
Wysokość pomieszczeń [m]: 2,5500 |
Liczba sypialni: 4 |
Powierzchnia pokoi [m2]: 120 |
Podłogi pokoi: panele podłogowe |
Ściany pokoi: malowane, gładzie gipsowe |
Wystawa okien - pokoje : Pd, Zach, Wsch |
Typ kuchni: oddzielna |
Rodzaj kuchni: oddzielna |
Powierzchnia kuchni [m2]: 20 |
Podłoga kuchni: gres |
Typ łazienki: osobno z wc |
Liczba łazienek: 2 |
Powierzchnia łazienki [m2]: 10 |
Glazura łazienki: nowego typu |
Podłoga łazienki: terakota |
Wyposażenie łazienki: WC, wanna, umywalka, prysznic, pralka |
Ściany łazienki: glazura |
Liczba przedpokoi: 2 |
Powierzchnia przedpokoi [m2]: 20 |
Podłoga przedpokoi: panele podłogowe |
Ściany przedpokoi: malowane, gładzie gipsowe |
::LINK DO STRONY |
https://sadurscy.pl/offer/BS5-DS-307534
Zobacz Wirtualny Spacer: https://sb360.online/nkgmvi
::KONTAKT DO AGENTA |
Wojciech Sudoł |
+ Zobacz kontakt48 509-907-533 |
Zobacz kontaktwojtek@sadurscy.pl
::DANE BIURA |
Oddział BS5, Nowa Huta |
Bracia Sadurscy Dariusz Sadurski |
Os. Kazimierzowskie 36 |
31-844 Kraków |
Zobacz kontakt12 265 10 29
|
Oferta wysłana z systemu Galactica Virgo
Ogrzewanie: EKOGROSZEK

Kontakt do agenta:
Wojciech Sudoł
Zobacz kontaktwojtek@sadurscy.pl
+ Zobacz kontakt48 509-907-533

Oceń ofertę


0


12 wydruk błąd schowek

Ostatnio przeglądane

 

 

 

pobieranie

Pobierz wzór umowy

Umowa przedwstępna sprzedaży

wybierz plik do pobrania
doc pdf

 

 

Deweloperzy

);