Prosimy, odblokuj wyświetlanie reklam w naszym serwisie, są one związane z rynkiem nieruchomości.
To dzięki nim masz darmowy dostęp do naszych treści.

Z pozdrowieniami zespół KRN.pl :)


telefon

wiadomość

mapa

Dom, Wilków

Dom na sprzedaż Wilków (woj. Małopolskie)

Lokalizacja:

Wilków, , ul.

Powierzchnia:

228.00 m2

Cena:

499 000 zł

Dane szczegółowe

lokalizacja:
Małopolskie, Wilków
typ obiektu:
dom na sprzedaż
cena:
499 000 zł
powierzchnia:
228.00 m2
numer ogłoszenia:
BS4-DS-309819-253
data dodania:
17-01-2026
data modyfikacji:
17-01-2026
jakość wypełnienia oferty:
100%

Szczegóły oferty

|
Do sprzedaży dom wolnostojący na nowym osiedlu w miejscowości Wilków, gmina Kocmyrzów-Luborzyca.

Domy budowane na pięknych widokowych działkach pod lasem.

Dom według
projektu "Dom w Aurorach 14" Archon
o powierzchni użytkowej
154m2 , całkowitej 228m2.

Dom parterowy z użytkowym poddaszem, na działce
około 700 m2 .
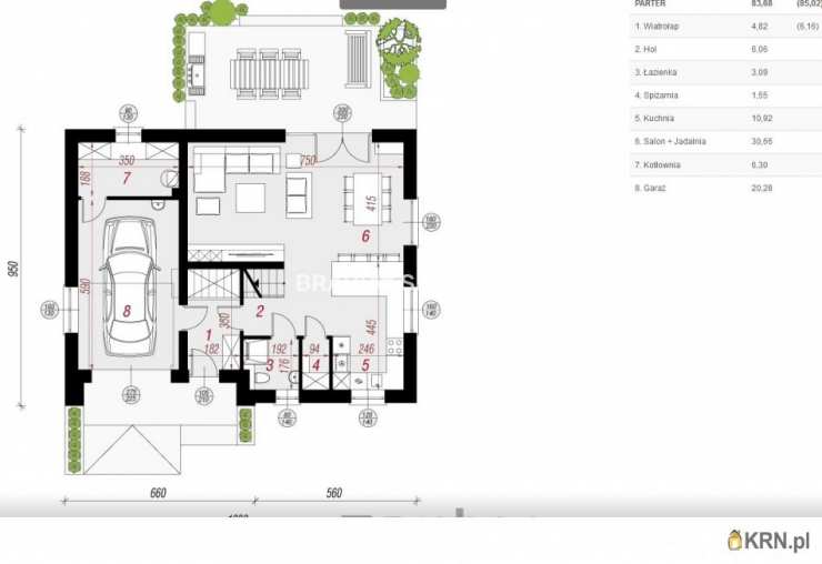
Parter domu składa się:
- garażu 20,38m2
- salonu z jadalnią 30,66m2
- łazienki 3m2
- pomieszczenie gospodarcze 6 m2
- spiżarni 1,55m2
- hol+ wiatrołap 11m2
Piętro domu składa się z:
- 3 pokoi 11 m2, 11 m2, 10 m2
- łazienka 9m2
- garderoby 4m2
- pralnia 4,8m2

Domy sprzedawane w stanie
surowym otwartym
(bez okien, drzwi, instalacji). Dach kryty dachówką ceramiczną. Ściany z betonu komórkowego Ytong, fundamenty ocieplone styrodurem.
W działkach są sieci z mediami (gaz, prąd, woda) - przyłącza we własnym zakresie (ceny są stałe gaz ok. 2200 zł, prąd ok. 850 zł, woda ok. 2000 zł). Szamba będą wrysowane - ich budowa w zakresie klienta, podobnie jak zbiornik do tzw. wody deszczowej.
Dojazd do osiedla drogą utwardzoną.
W pobliżu sklepy spożywcze. W centrum Gminy
Biedronka, dwie szkoły podstawowe, trzy przychodnie, apteki, poczta, galeria Kocmyrzów, Centrum Kultury, Kościół, pizzeria, piekarnia, tor gokartowy,
składy budowlane, Urząd Gminy.
Komunikacja busy lub szybki pociąg (15 min) w Baranówce lub Łuczycach do Centrum Krakowa.
Kontakt:
Michał + Zobacz kontakt48 518 810 080

::DODATKOWE INFORMACJE |
Kategoria oferty: Pewny Partner, Mieszkania dla rodzin z dziećmi |
Prąd: na działce |
Gaz: na działce |
Woda: przepływowy piec gazowy |
Dojazd: kostka brukowa |
Otoczenie: działki zabudowane |
Ogrzewanie: własne gazowe |
Kanalizacja: szambo |
Komunikacja publ.: bus, autobus podmiejski, autobus miejski |
Instalacje: nowe |
Balkon: drzwi balkonowe |
Liczba balkonów: 1 |
Tarasy: taras duży |
Wymiary działki [m]: 23x30 |
Zagosp. działki: niezagospodarowana |
Ukształtowanie działki: lekko nachylona |
Kształt działki: prostokąt |
Rodzaj domu: wolnostojący |
Stan wybudowania: Stan surowy otwarty |
Typ elewacji: baranek |
Podst. materiał budowlany: beton komórkowy |
Pokrycie dachu: dachówka ceramiczna |
Pozwolenie na użytkowanie: w trakcie uzyskiwania |
Powierzchnia użytkowa [m2]: 154 |
Stan budynku: do wykończenia |
Podpiwniczenie: nie |
Garaż: w budynku |
Ogrodzenie działki: brak |
Rok budowy: 2024 |
Liczba pokoi: 4 |
Wysokość pomieszczeń [m]: 2,7000 |
Liczba sypialni: 4 |
Powierzchnia pokoi [m2]: 30,66m2,11m2,11m2, 10m2 |
Podłogi pokoi: wylewka |
Ściany pokoi: zwykłe |
Wystawa okien - pokoje : Pd-Zach, Pn-Wsch |
Typ kuchni: aneks kuchenny - połączony z salonem |
Rodzaj kuchni: jasna z oknem |
Powierzchnia kuchni [m2]: 11 |
Podłoga kuchni: wylewka |
Wystawa okien - kuchnia: Zach |
Typ łazienki: razem z wc |
Liczba łazienek: 2 |
Powierzchnia łazienki [m2]: 4,5m2 i 8m2 |
Glazura łazienki: bez glazury |
Podłoga łazienki: wylewka |
Wyposażenie łazienki: wanna, natrysk |
Ściany łazienki: zwykłe |
Liczba przedpokoi: 2 |
Powierzchnia przedpokoi [m2]: 20 |
Podłoga przedpokoi: wylewka |
Ściany przedpokoi: zwykłe |
::LINK DO STRONY |
sadurscy.pl/offer/BS4-DS-309819
::KONTAKT DO AGENTA |
Michał Dzięcioł |
+ Zobacz kontakt48 518-810-080 |
Zobacz kontaktmichal@sadurscy.pl
::DANE BIURA |
Oddział BS4, Krowodrza |
Kołowa 5/3 |
30-134 Kraków |
Zobacz kontakt12 633-90-20
Pośrednik odpowiedzialny zawodowo za wykonanie umowy pośrednictwa: Dariusz Sadurski (licencja nr: 803)
|
Oferta wysłana z systemu Galactica Virgo
Ogrzewanie: Gazowe
Materiał: BETON KOMORKOWY

Kontakt do agenta:
Michał Dzięcioł
Zobacz kontaktmichal@sadurscy.pl
+ Zobacz kontakt48 518-810-080

Oceń ofertę


0


15 wydruk błąd schowek

Ostatnio przeglądane

 

 

 

pobieranie

Pobierz wzór umowy

Umowa przedwstępna sprzedaży

wybierz plik do pobrania
doc pdf

 

 

Deweloperzy

);