Prosimy, odblokuj wyświetlanie reklam w naszym serwisie, są one związane z rynkiem nieruchomości.
To dzięki nim masz darmowy dostęp do naszych treści.

Z pozdrowieniami zespół KRN.pl :)


telefon

wiadomość

mapa

Dom, Wola Batorska

Dom na sprzedaż Wola Batorska (woj. Małopolskie)

Lokalizacja:

Wola Batorska, , ul.

Powierzchnia:

216.48 m2

Cena:

980 000 zł

Dane szczegółowe

lokalizacja:
Małopolskie, Wola Batorska
typ obiektu:
dom na sprzedaż
cena:
980 000 zł
powierzchnia:
216.48 m2
numer ogłoszenia:
BS2-DS-300073-179
data dodania:
19-12-2025
data modyfikacji:
19-12-2025
jakość wypełnienia oferty:
100%

Szczegóły oferty



NOWE DOMY WOLNOSTOJĄCE GM. NIEPOŁOMICE
STAN SUROWY OTWARTY.

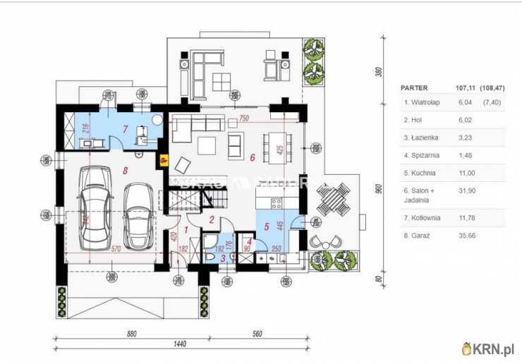
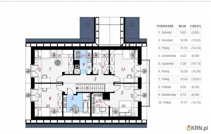
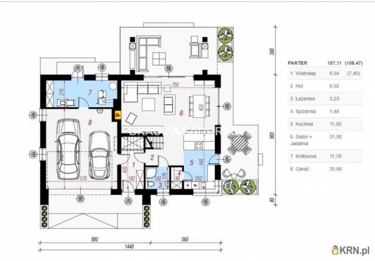
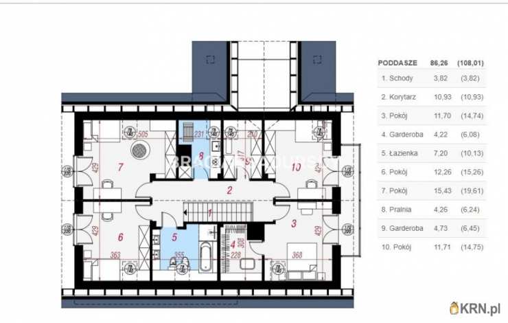
Prezentowana inwestycja to dom położony w miejscowości Wola Batorska w gm. Niepołomice. Nieruchomość o powierzchni całkowitej 216,48 m2 (powierzchnia użytkowa wynosi 193,37 m2). Dom parterowy z użytkowym poddaszem. Położony jest na działce 1000 m2.
Parter składa się z wiatrołapu, łazienki, spiżarni, kuchni, salonu z jadalnią,
kotłowni i garażu. Na poddaszu znajdują się cztery sypialnie, pralnia, garderoba, łazienka.
Dom budowany do stanu surowego otwartego z możliwością doprowadzenia do stanu deweloperskiego. Media na działce: prąd, gaz, kanalizacja.

Cicha, spokojna miejscowość, sąsiedztwo zabudowy jednorodzinnej i zielonych terenów. W okolicy znajduje się przystanek (bus i autobus), sklepy, szkoła, stacja paliw, centrum handlowe.
Do granicy Krakowa ok. 5 km.
Dom budowany według projektu firmy ARCHON "Dom Aurorach 7 G2"
Możliwość zakupu w stanie surowym zamkniętym w cenie 1.080.000 zł lub doprowadzenie do stanu deweloperskiego w cenie 1.380.000
zł.

Polecam serdecznie i zapraszam do kontaktu:
Marek Popiela
+ Zobacz kontakt48 518 967 677
Zobacz kontaktmarek@sadurscy.pl
pl

::DODATKOWE INFORMACJE
Kategoria oferty: Mieszkania dla rodzin z dziećmi Prąd: na działce Gaz: jest Woda: jest Dojazd: asfalt Otoczenie: zabudowa jednorodzinna Ogrzewanie: inne Kanalizacja: tak Linie telefoniczne: TAK Komunikacja publ.: bus, autobus Instalacje: brak Balkon: jest Liczba balkonów: 1 Tarasy: taras Liczba tarasów: 1 Zagosp. działki: niezagospodarowana Ukształtowanie działki: płaska Kształt działki: nieregularny Rodzaj domu: wolnostojący Stan wybudowania: Stan surowy otwarty Typ elewacji: brak Podst. materiał budowlany: pustak ceramiczny Pokrycie dachu: dachówka ceramiczna Powierzchnia użytkowa [m2]: 193,3700 Stan budynku: do wykończenia Podpiwniczenie: nie Garaż: na jeden samochód Ogrodzenie działki: brak Rok budowy: 2026 Liczba pokoi: 5 Liczba sypialni: 4 Powierzchnia pokoi [m2]: 11,7; 12,26; 15,43; 11,71 Podłogi pokoi: inne Ściany pokoi: inne Typ kuchni: aneks kuchenny Rodzaj kuchni: aneks kuchenny połączony z jadalnią i salonem Podłoga kuchni: inne Typ łazienki: razem z wc Liczba łazienek: 2 Powierzchnia łazienki [m2]: 7,2; 3,23 Glazura łazienki: bez glazury Podłoga łazienki: inne Ściany łazienki: inne Liczba przedpokoi: 1 Podłoga przedpokoi: inne Ściany przedpokoi: inne
::LINK DO STRONY
https://sadurscy.pl/offer/BS2-DS-300073
::KONTAKT DO AGENTA
Marek Popiela + Zobacz kontakt48 518-967-677 Zobacz kontaktmarek@sadurscy.pl
::DANE BIURA
Oddział BS2, Rynek Pierwotny Przewóz
47 30-081 Kraków Zobacz kontakt12 630-90-45
--------------------------
::GRATIS | Nasza prowizja zawiera: koszt przedwstępnej notarialnej umowy sprzedaży nieruchomości z rynku wtórnego. ::GWARANCJA | Gwarancja zwrotu zadatku. Więcej informacji na sadurscy.pl/zwrot-zadatku/

Ogrzewanie: INNE
Materiał: Pustak

Kontakt do agenta:
Marek Popiela
Zobacz kontaktmarek@sadurscy.pl
+ Zobacz kontakt48 518-967-677

Oceń ofertę


0


8 wydruk błąd schowek

Ostatnio przeglądane

 

 

 

pobieranie

Pobierz wzór umowy

Umowa przedwstępna sprzedaży

wybierz plik do pobrania
doc pdf

 

 

Deweloperzy

);