Prosimy, odblokuj wyświetlanie reklam w naszym serwisie, są one związane z rynkiem nieruchomości.
To dzięki nim masz darmowy dostęp do naszych treści.

Z pozdrowieniami zespół KRN.pl :)


telefon

wiadomość

mapa

Dom, Przebieczany

Dom na sprzedaż Przebieczany (woj. Małopolskie)

Lokalizacja:

Przebieczany, , ul.

Powierzchnia:

203.68 m2

Cena:

1 170 000 zł

Dane szczegółowe

lokalizacja:
Małopolskie, Przebieczany
typ obiektu:
dom na sprzedaż
cena:
1 170 000 zł
powierzchnia:
203.68 m2
numer ogłoszenia:
BS2-DS-302622-132
data dodania:
13-03-2026
data modyfikacji:
13-03-2026
jakość wypełnienia oferty:
100%

Szczegóły oferty



Stan surowy
- Dom Wolnostojący
w Przebieczanach.

Oferujemy do sprzedaży nowy dom w, położony w miejscowości Przebieczany gm. Wieliczka.
Domy o powierzchni użytkowej 189,54 m2, a całkowitej 203,68 m2. Położone na działkach 800 m2.
Parter
składa się z salonu połączonego z aneksem kuchennym, wiatrołapu, łazienki,
pokoju, kotłowni oraz dwustanowiskowego garażu.
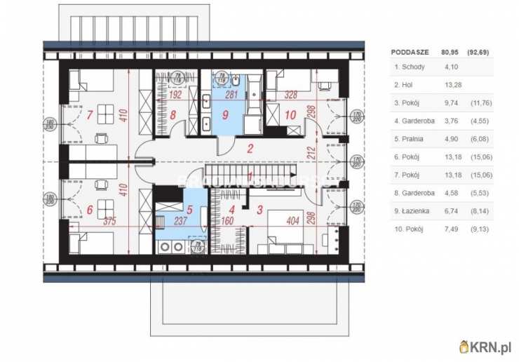
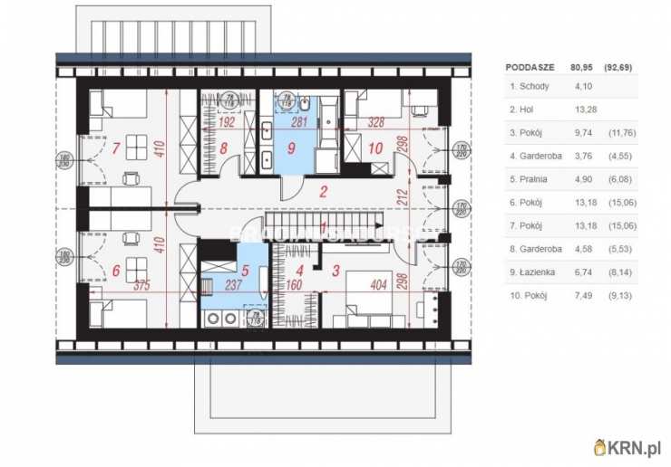
Na poddaszu
znajdują się cztery sypialnie, dwie garderoby, pralnia oraz łazienka.

Cicha, spokojna miejscowość , sąsiedztwo zabudowy jednorodzinnej i zielonych terenów. Dogodny dojazd zarówno do Krakowa, jak i Wieliczki.
Możliwość doprowadzenia domu do stanu deweloperskiego w cenie 1.450.000 zł

Domy budowane według projektu firmy Archon "Dom w naradkach G2"
Termin zakończenia budowy: III kwartał 2025 r. Polecam serdecznie i zapraszam do kontaktu: Marek Popiela + Zobacz kontakt48 518 967 677
Zobacz kontaktmarek@sadurscy.pl

::DODATKOWE INFORMACJE
Kategoria oferty: Mieszkania dla rodzin z dziećmi Prąd: na działce Gaz: jest Woda: jest Dojazd: asfalt Otoczenie: zabudowa jednorodzinna Ogrzewanie: gazowe Kanalizacja: tak Komunikacja publ.: bus, autobus Okna: PCV Instalacje: brak Balkon: brak Tarasy: taras Liczba tarasów: 1 Zagosp. działki: niezagospodarowana Ukształtowanie działki: płaska Kształt działki: nieregularny Rodzaj domu: wolnostojący Stan wybudowania: Stan surowy otwarty Typ elewacji: brak Podst. materiał budowlany: pustak ceramiczny Powierzchnia użytkowa [m2]: 189,5400 Stan budynku: do wykończenia Podpiwniczenie: nie Garaż: na jeden samochód Ogrodzenie działki: brak Rok budowy: 2025 Liczba pokoi: 6 Liczba sypialni: 5 Powierzchnia pokoi [m2]: 31,06; 11,89; 9,74; 13,18; 13,18; 7,49 Podłogi pokoi: inne Ściany pokoi: inne Typ kuchni: aneks kuchenny Rodzaj kuchni: aneks kuchenny połączony z jadalnią i salonem Powierzchnia kuchni [m2]: 10,32 Podłoga kuchni: inne Typ łazienki: razem z wc Liczba łazienek: 1 Powierzchnia łazienki [m2]: 5,03; 6,79 Glazura łazienki: bez glazury Podłoga łazienki: inne Ściany łazienki: inne Liczba WC: 1 Glazura WC: bez glazury Podłoga WC: inne Ściany WC: inne Liczba przedpokoi: 1 Podłoga przedpokoi: inne Ściany przedpokoi: inne
::LINK DO STRONY
https://sadurscy.pl/offer/BS2-DS-302622
::KONTAKT DO AGENTA
Marek Popiela + Zobacz kontakt48 518-967-677 Zobacz kontaktmarek@sadurscy.pl
::DANE BIURA
Oddział BS2, Rynek Pierwotny Przewóz
47 30-081 Kraków Zobacz kontakt12 630-90-45
--------------------------
::GRATIS | Nasza prowizja zawiera: koszt przedwstępnej notarialnej umowy sprzedaży nieruchomości z rynku wtórnego. ::GWARANCJA | Gwarancja zwrotu zadatku. Więcej informacji na sadurscy.pl/zwrot-zadatku/

Ogrzewanie: Gazowe
Materiał: Pustak

Kontakt do agenta:
Marek Popiela
Zobacz kontaktmarek@sadurscy.pl
+ Zobacz kontakt48 518-967-677

Oceń ofertę


0


25 wydruk błąd schowek

Ostatnio przeglądane

 

 

 

pobieranie

Pobierz wzór umowy

Umowa przedwstępna sprzedaży

wybierz plik do pobrania
doc pdf

 

 

Deweloperzy

);