Prosimy, odblokuj wyświetlanie reklam w naszym serwisie, są one związane z rynkiem nieruchomości.
To dzięki nim masz darmowy dostęp do naszych treści.

Z pozdrowieniami zespół KRN.pl :)


telefon

wiadomość

mapa

Dom, Straszyn, ul. Zwrotnikowa

Dom na sprzedaż Straszyn (woj. Pomorskie), ul. Zwrotnikowa

Lokalizacja:

Straszyn, , ul. Zwrotnikowa

Powierzchnia:

198.00 m2

Cena:

1 680 000 zł

oferta nieaktualna

Dane szczegółowe

lokalizacja:
Pomorskie, Straszyn, ul. Zwrotnikowa
typ obiektu:
dom na sprzedaż
cena:
1 680 000 zł
pokoi:
4
ilość pięter w budynku:
1
powierzchnia:
198.00 m2
numer ogłoszenia:
PAN686679
data dodania:
15-11-2024
data modyfikacji:
10-02-2025
jakość wypełnienia oferty:
100%

Szczegóły oferty

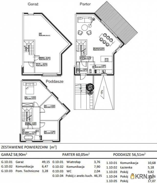
UWAGA! Planowane zakończenie budowy to koniec 2025 rokuINFORMACJA:Sprzedawana nieruchomość to część kameralnej inwestycji “Straszyn Zwrotnikowa”położonej w otoczeniu lasów. Inwestycja składa się z dwóch bliźniaków w zabudowie szeregowej o pięknej architekturze. Przedmiotem sprzedaży jest lokal mieszkalny z ogródkiem do własnej dyspozycji i garażem na 2 samochody.DOM:Budowany w Straszynie, nieopodal rzeki Radunia i ok. 1,5 km od Jeziora Straszyńskiego. Do najbliższego węzła Obwodnicy Trójmiejskiej ok. 3 km, a stamtąd dogodny dojazd do całej Gdańska, Gdyni i Sopotu. Dobry dojazd również na Kaszuby.Powierzchnia użytkowa to ok. 117 m2, natomiast łącznie z powierzchnią kondygnacji garażowej na 2 samochody (jeden za drugim) to łącznie ok. 175 m2. Planowane oddanie do użytkowania to przełom 2024/2025 roku.PARTER składa się z:- dużego salonu dziennego z aneksem kuchennym o pow. łącznej ok. 46 m2 z wyjściem do ogrodu; z boku pokoju schody prowadzące na piętro,- toalety o pow. ok. 2 m2,- komunikacji i wiatrołapu o łącznej pow. ok. 12 m2,PIĘTROskłada się z:- 3 pokoi o pow. odpowiednio ok. 17 m2, 14 m2 i 10 m2,- łazienki o pow. ok. 5 m2,- komunikacji o pow. ok. 11 m2,PIWNICA to powierzchnia garażowa:- garaż na 2 samochody (jeden za drugim) o pow. ok. 49 m2,- pom. techniczne o pow. ok. 3 m2,- komunikacja o pow. ok. 6 m2.OGRÓD: Skrajny szereg, ogródek obsadzony trawnikiem i ogrodzony siatką panelową. Od frontu brak ogrodzenia, dwa murki odgradzające wejście do domu i wjazd do garażu. Na posesji wkopany zbiornik na deszczówkę.OKOLICA:W pobliżu wiele miejsc spacerowych i rekreacyjnych.Odległość od centrum Gdańska to ok. 10 km,od centrum handlowego ok. 2 km,od przedszkola ok. 1,4 km,od szkoły ok. 2,8 km.POZOSTAŁE INFORMACJE:- całość wykonywana będzie z materiałów wysokiej jakości, ściany zewnętrzne to Silka 24 cm docieplona grafitowym styropianem 15 cm, okna PCV 3-szybowe, pod wjazdem do garażu ułożony kabel grzewczy,- ogrzewanie i ciepła woda użytkowa za pomocą pieca gazowego,- okna PCV 3-szybowe,- monitoring z 2 kamerami, od strony ulicy i ogrodu,- do domu doprowadzony światłowód,- podany metraż 198 m2 różni się od powierzchni pokazanych w galerii rzutów przede wszystkim ze względu na dodatkowo wygospodarowane pod tarasem pomieszczenie o funkcji gospodarczej.Zapraszam na prezentację!KUP Z NAMI - KORZYSTNIE I BEZPIECZNIE!- 0% prowizji od Kupującego (dotyczy ofert oznaczonych znaczkiem KUP bez prowizji) i żadnych dodatkowych lub ukrytych kosztów- gwarantujemy bezpieczny zakup i najlepszą cenę- oferujemy skuteczną i bezpłatną pomoc w uzyskaniu kredytu- zapewniamy fachowe doradztwo przy zakupie pod inwestycję

Oceń ofertę


3


108 wydruk błąd schowek

Ostatnio przeglądane

 

 

 

pobieranie

Pobierz wzór umowy

Umowa przedwstępna sprzedaży

wybierz plik do pobrania
doc pdf

 

 

Deweloperzy

);