Prosimy, odblokuj wyświetlanie reklam w naszym serwisie, są one związane z rynkiem nieruchomości.
To dzięki nim masz darmowy dostęp do naszych treści.

Z pozdrowieniami zespół KRN.pl :)


telefon

wiadomość

mapa

Dom, Kostrzyn, ul. Krzywoustego

Dom na sprzedaż Kostrzyn (woj. Wielkopolskie), ul. Krzywoustego

Lokalizacja:

Kostrzyn, , ul. Krzywoustego

Powierzchnia:

197.20 m2

Cena:

1 470 000 zł

Dane szczegółowe

lokalizacja:
Wielkopolskie, Kostrzyn, ul. Krzywoustego
typ obiektu:
dom na sprzedaż
cena:
1 470 000 zł
powierzchnia:
197.20 m2
media:
prąd, gaz, woda
numer ogłoszenia:
28390140
data dodania:
26-01-2026
data modyfikacji:
04-03-2026
jakość wypełnienia oferty:
100%

Szczegóły oferty

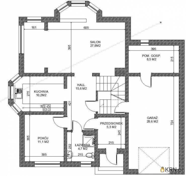
BEZPIECZNA TRANSAKCJA TYLKO Z LICENCJONOWANYM POŚREDNIKIEM!!!  ~~Na sprzedaż dom wolnostojący w Kostrzynie, przy ul. B. Krzywoustego, na narożnej działce, w spokojnej i dobrze skomunikowanej okolicy. ~~Nieruchomość idealna dla osób poszukujących komfortowego domu z bardzo dobrym zapleczem technicznym i dużą funkcjonalnością.  ~~Dom wybudowany w 2009 roku, a od 2015 roku systematycznie modernizowany i unowocześniany. Budynek wzniesiony z Porothermu, ocieplony styropianem, z dachem pokrytym dachówką ceramiczną. Około 5 lat temu wykonano dodatkowe ocieplenie dachu i stropu pianą PUR oraz wełną mineralną. ~~Układ pomieszczeń: ~~ Parter: ~~salon - 27,8 m (z oddzielonym ścianą z akwarium wykuszem przeznaczonym do relaksu z widokiem na ogród); w tej przestrzeni znajduje się także w pełni funkcjonalny barek,  ~~oddzielna kuchnia z możliwością przyłączenia do salonu - 10,2 m, ~~pokój - 11,1 m, ~~łazienka z prysznicem - 4,7 m, ~~przedsionek - 5,1 m, ~~przestrzeń pod schodami wykorzystana na spiżarnię (przejście do garażu), ~~garaż - 28,6 m z pralnią/kotłownią - 8,5 m   ~~Piętro: ~~sypialnia - 24,7 m (z wydzieloną garderobą i bezpośrednim przejściem do łazienki), ~~pokój - 13,8 m, ~~pokój - 12,3 m z balkonem,~~pokój - 12,2 m z balkonem,~~łazienka z dużą wanną z hydromasażem i prysznicem - 10,8 m, ~~korytarz - 11,6 m,~~ogród zimowy powstały z zabudowanego balkonu.~~Dodatkowo jest także strych jako miejsce do przechowywania.  ~~Sprzedaż domu następuje z pełnym wyposażeniem (poza niewielkimi wyjątkami).  ~~Ogrzewanie gazowe - piec dwufunkcyjny gazowy z zasobnikiem ciepłej wody 300 l. Ogrzewanie podłogowe na parterze (z wyjątkiem pokoju). Panele solarne do podgrzewania wody. Kominek w pokoju dziennym z rozprowadzeniem ciepła na piętro. Rolety zewnętrzne elektryczne we wszystkich oknach (poza tarasowym). Klimatyzacja praktycznie w całym domu. Centralny odkurzacz. Zmiękczacz wody. Instalacja alarmowa z osprzętem i powiadomieniami GSM. Czujnik gazu i czadu. Budynek posiada także awaryjne zasilanie elektryczne.  ~~Dom został w ostatnim czasie przygotowany pod system Smart home, pod instalację fotowoltaiczną oraz do zmiany ogrzewania na pompę ciepła. ~~ Media: prąd, woda, gaz, kanalizacja, światłowód.  ~~Działka (729m2) narożna, w pełni zagospodarowana, z automatycznym systemem nawadniania. Na terenie posesji znajduje się zadaszony taras z murowanym grillem i wędzarnią, miejsce na ognisko oraz basen wolnostojący (pozostaje). Wykonano również przyłącze pod saunę. Ogród posiada system odwodnienia oraz rozprowadzenie wody. Właściciel planował budowę wiaty garażowej - zakupione materiały mogą pozostać w cenie nieruchomości. ~~Cena: 1 470 000 zł ~~Nieruchomość położona jest w Kostrzynie, w spokojnej części miasta, w otoczeniu zabudowy jednorodzinnej. Lokalizacja zapewnia komfort codziennego życia oraz dobrą dostępność infrastruktury miejskiej. W niedalekiej odległości znajdują się sklepy, szkoła, przedszkole oraz punkty usługowe. Dogodny dojazd do Poznania zarówno samochodem, jak i komunikacją publiczną. ~~ Informacji udziela Martyna Wewiór, tel. Zobacz kontakt796 80 11 50. ~~e-maill: Zobacz kontaktmartyna@nieruchomoscivendo.pl ~~Powyższy opis nie stanowi oferty w rozumieniu kodeksu cywilnego, a dane w nim zawarte mają charakter informacyjny i mogą ulec zmianie.  ~~~

Oceń ofertę


0


537 wydruk błąd schowek

Ostatnio przeglądane

 

 

 

pobieranie

Pobierz wzór umowy

Umowa przedwstępna sprzedaży

wybierz plik do pobrania
doc pdf

 

 

Deweloperzy

);