Prosimy, odblokuj wyświetlanie reklam w naszym serwisie, są one związane z rynkiem nieruchomości.
To dzięki nim masz darmowy dostęp do naszych treści.

Z pozdrowieniami zespół KRN.pl :)


telefon

wiadomość

mapa

Dom, Wrocław, Psie Pole/Widawa

Dom na sprzedaż Wrocław (woj. Dolnośląskie), Psie Pole/Widawa

Lokalizacja:

Wrocław, Psie Pole/Widawa, ul.

Powierzchnia:

194.00 m2

Cena:

2 245 000 zł

Dane szczegółowe

lokalizacja:
Dolnośląskie, Wrocław, Psie Pole/Widawa
typ obiektu:
dom na sprzedaż
cena:
2 245 000 zł
pokoi:
4
ilość pięter w budynku:
1
powierzchnia:
194.00 m2
media:
prąd, gaz
numer ogłoszenia:
2831/3265/ODS
data dodania:
10-04-2025
data modyfikacji:
07-05-2026
jakość wypełnienia oferty:
100%

Szczegóły oferty

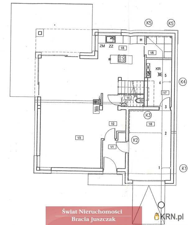
Polecamy do sprzedaży wygodny, wolnostojący budynek mieszkalny z ładnie zagospodarowanym ogrodem. Dom jest niepodpiwniczony, posiada dwie pełne kondygnacje i jest kryty dachem kopertowym z nieużytkowym poddaszem. W budynku znajdują się: na parterze - hol wejściowy, wc, garaż, kotłownia, salon z kuchnią i spiżarką, na piętrze zaś cztery sypialnie, hol i pokój kąpielowy. Dom bardzo solidnie zbudowany około 10 lat temu. Niektóre elementy wykończenia - do odświeżenia.

Obecnie parter budynku został zaaranżowany na cele związane z prowadzeniem małej, klimatycznej restauracji. W związku z tym można nabyć nieruchomość zarówno na cele mieszkalne, jak również na cele związane z gastronomią lub inną działalnością gospodarczą. Możliwe jest przejęcie marki firmy wraz z wszystkimi urządzeniami oraz wartościami niematerialnymi i prawnymi.

W sąsiedztwie znajdują się nowe budynki mieszkalne oraz mieszkalno - usługowe. Okolica cicha i spokojna. Niewielka odległość do węzła autostradowego Wrocław - Północ.

Serdecznie polecamy i zapraszamy na prezentację !


Cena oferowana: Nieruchomość - 2 245 000 zł, Nieruchomość z Restauracją - 2 790 000 zł.


Świadectwo charakterystyki energetycznej zostanie przedłożone do zawarcia umowy, zgodnie z wymogami USTAWY z dnia 7 października 2022 r. o zmianie ustawy o charakterystyce energetycznej budynków oraz ustawy - Prawo budowlane.

Kontakt:

Mirosław Juszczak
tel.: Zobacz kontakt695-33-55-00
e-mail: Zobacz kontaktm.juszczak@swiat.nieruchomosci.pl

ŚWIAT NIERUCHOMOŚCI - BRACIA JUSZCZAK S. C.

Plac Solny 16, 50-062 Wrocław
Biuro czynne: poniedziałek - piątek 9.00 - 17.00

Ul. Oławska 28, 50-123 Wrocław
Biuro czynne: poniedziałek - piątek 9.00 - 18.00.

POMAGAMY RÓWNIEŻ W UZYSKANIU KREDYTÓW HIPOTECZNYCH W RAMACH WSPÓŁPRACY Z FIRMĄ "CENTRUM KREDYTOWE z KREDYTem ZA PAN BRAT".

Uwaga!
Prezentowane w serwisie oferty nie stanowią oferty handlowej w porozumieniu art. 66 Kodeksu Cywilnego i mogą być nieaktualne.

NOTA PRAWNA:
Opis oferty zawarty na stronie internetowej sporządzany jest na podstawie oględzin nieruchomości oraz informacji uzyskanych od właściciela, może podlegać aktualizacji i nie stanowi oferty określonej w art. 66 i następnych K.C

Polecamy !!!




Prezentowana oferta nie stanowi oferty handlowej w rozumieniu Art. 66 par. 1 Kodeksu Cywilnego, a dane w niej zawarte mają charakter jedynie informacyjny i mogą ulec zmianie.

Ofertę poleca ŚWIAT NIERUCHOMOŚCI oraz Centrum Kredytowe - z KREDYTem ZA PAN BRAT.

CENTRUM NOWYCH MIESZKAŃ zaprasza - Wrocław, ul. Oławska 28.



Oferta wysłana z programu dla biur nieruchomości ASARI CRM (asaricrm.com)



Kontakt:
Numer telefonu: + Zobacz kontakt48 695 33 55 00, Zobacz kontakt71 330 55 03
Adres email: Zobacz kontaktm.juszczak@swiat.nieruchomosci.pl
Numer licencji pośrednika: 646

Oceń ofertę


9.99


1214 wydruk błąd schowek

Ostatnio przeglądane

 

 

 

pobieranie

Pobierz wzór umowy

Umowa przedwstępna sprzedaży

wybierz plik do pobrania
doc pdf

 

 

Deweloperzy

);