Prosimy, odblokuj wyświetlanie reklam w naszym serwisie, są one związane z rynkiem nieruchomości.
To dzięki nim masz darmowy dostęp do naszych treści.

Z pozdrowieniami zespół KRN.pl :)


telefon

wiadomość

mapa

Dom, Rupniów

Dom na sprzedaż Rupniów (woj. Małopolskie)

Lokalizacja:

Rupniów, , ul.

Powierzchnia:

192.19 m2

Cena:

430 000 zł

Dane szczegółowe

lokalizacja:
Małopolskie, Rupniów
typ obiektu:
dom na sprzedaż
cena:
430 000 zł
powierzchnia:
192.19 m2
numer ogłoszenia:
BS5-DS-312087-6
data dodania:
15-01-2026
data modyfikacji:
15-01-2026
jakość wypełnienia oferty:
100%

Szczegóły oferty

|
DOM / 192,19 M2 / 7 POKOI / 2 ŁAZIENKI / STAN SUROWY / RUPNIÓW / GMINA WIEJSKA LIMANOWA / POWIAT LIMANOWSKI

KTO MOŻE ZAMIESZKAĆ --
Mieszkanie jest idealne dla
rodziny z dziećmi nawet 2+6, inwestorzy którzy chcieliby prowadzić mały "pensjonat"
JAKIE JEST ROZMIESZCZENIE DOMU --

-œ… PARTER
-œ…

-œ… SALON / SYPIALNIA 1 [ ok. 25 M2 ]
południe

-œ… POKÓJ 2 [ ok. 17,6 M2 ]
południe
- z tarasem
-œ… POKÓJ 3 [ ok. 16,8 M2 ]

północ
-œ… KUCHNIA [ ok. 13,2 M2 ]
północ
-œ… ŁAZIENKA [ ok. 8,4 M2 ]
północ
-œ… WIATROŁAP [ ok. 3,3 M2 ]
zachód

-œ… KORYTARZ [ ok. 8,4 M2 ]
-œ… PIERWSZE PIĘTRO
-œ…

-œ… POKÓJ 4 [ ok. 26,4 M2 ]

południe
- Z balkonem

-œ… POKÓJ 5 [ ok. 18,5 M2 ]

południe
- Z balkonem

-œ… POKÓJ 6 [ ok. 11,9 M2 ]

północ

-œ… POKÓJ 7 [ ok. 13,5 M2 ]

północ
- może też pełnić funkcje kuchni
-œ… ŁAZIENKA [ ok. 9,1 M2 ]
północ

-œ… KORYTARZ [ ok. 8,4 M2 ]

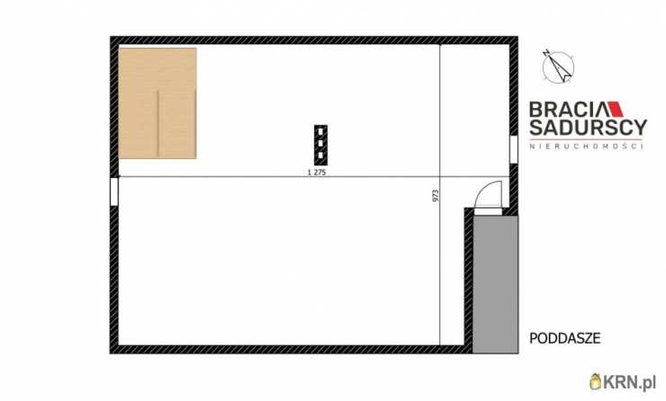
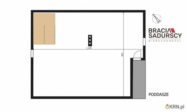
-œ… PODDASZE
-œ…
[ ok. 100 M2 ]
Można wstawić okna i dowolnie dostosować do
potrzeb użytkowych
lub zrobić
duży strych Z CZEGO JEST ZROBIONY DOM--

-œ… Pustak żużlowy

-œ… Okna
do wymiany
-œ… Dach
do wymiany
JAKIE SĄ OGÓLNE CECHY DOMU
--

-šĄ dom z
1994
-šĄ pokoje można przerobić dowolnie na garderobę / siłownie / gabinet / pokój tematyczny
-šĄ
widokowa
działka (góry)
-šĄ wymiary działki 30,54 x 49,02 x 29,2 x
37,7 m
-šĄ powierzchnia działki
12,52 ara
-šĄ przyjazne sąsiedztwo
-šĄ w tej samej miejscowości sklep spożywczo-przemysłowy
Centrum Delikatesy
- tania sieciówka
-šĄ blisko do
Krakowa
60 min,
Limanowa
18 min
-šĄogrzewanie planowane centralne
CZY DZIAŁKA JEST UZBROJONA--

-œ”
podjazd do domu
- droga żwirowa prywatna / współwłasność - nowy właściciel będzie wpisany do aktu notarialnego
-œ”
prąd
- doprowadzony do domu, / założona skrzynka
-œ”
woda
- miejska podłączona do domu
-œ”
gaz
- w sąsiedztwie, można zroibić przyłącze
-œ”
kanalizacja
- szambo, 3 zbiorniki
GDZIE MOŻNA ZAMIESZKAĆ
--

RUPNIÓW / POW. LIMANOWSKI / GM. LIMANOWA

-œ… Sklep spożywczo-przemysłowy DELIKATESY CENTRUM
2 min samochodem
-œ… Lokalny sklep spożywczy
3 min samochodem
-œ… Sklep budowlany / hurtownia / skład budowlany
3 min samochodem
-œ… Szkoła podstawowa
3 min samochodem
-œ… Przedszkole
3 min samochodem
-œ… Przystanek autobusowy
1 min samochodem Trasa
Kraków - Limanowa
-œ… Kościół
3 min samochodem

ZAPRASZAM NA PREZENTACJĘ DOMU I !!! OBEJRZENIA VIDEO !!! ORAZ WIRTUALNEGO SPACERU PO DOMU
Prezentacja bezpłatna
Biuro pobiera jednorazową prowizję w momencie zakupu
Korzystając z usług biura kupujący może liczyć na gwarancję zwrotu zadatku (szczegóły ustalane indywidualnie)
Kontakt do agenta
Marzena Wróbel
537 - 765 - 461

-œł-œł-œł-œł-œł-œł-œł-œł-œł-œł-œł-œł-œł-œł-œł-œł-œł-œł-œł-œł-œł-œł-œł-œł-œł-œł-œł-œł-œł-œł-œł-œł-œł-œł-œł-œł-œł-œł-œł-œł-œł-œł-œł-œł-œł-œł-œł-œł-œł-œł-œł-œł-œł-œł-œł-œł-œł-œł-œł-œł-œł-œł-œł-œł-œł-œł-œł-œł-œł-œł-œł-œł-œł-œł-œł-œł-œł-œł-œł
HOUSE / 192.19 M2 / 7 ROOMS / 2 BATHROOMS / SHELL CONDITION / RUPNIÓW / LIMANOWA RURAL MUNICIPALITY / LIMANOWA COUNTY WHO CAN LIVE HERE --

The house is ideal for
a family with children, even 2+6, or investors who would like to run a small guesthouse. WHAT IS THE LAYOUT OF THE HOUSE -- -œ…
GROUND FLOOR
-œ…

-œ…
LIVING ROOM / BEDROOM 1
[approx. 25 M2] south
-œ…
ROOM 2
[approx. 17.6 M2] south
- with terrace
-œ…
ROOM 3
[approx. 16.8 M2] north
-œ…
KITCHEN
[approx. 13.2 M2] north
-œ…
BATHROOM
[approx. 8.4 M2] north
-œ…
VESTIBULE
[approx. 3.3 M2] west
-œ…
CORRIDOR
[approx. 8.4 M2]

-œ…
FIRST FLOOR
-œ…

-œ…
ROOM 4
[approx. 26.4 M2] south
- with balcony
-œ…
ROOM 5
[approx. 18.5 M2] south
- with balcony
-œ…
ROOM 6
[approx. 11.9 M2] north
-œ…
ROOM 7
[approx. 13.5 M2] north
- can also serve as a kitchen
-œ…
BATHROOM
[approx. 9.1 M2] north
-œ…
CORRIDOR
[approx. 8.4 M2]

-œ…
ATTIC
-œ…
[approx. 100 M2]
Windows can be installed and the space can be
adapted for use
or converted into
a large attic. WHAT IS THE HOUSE MADE OF -- -œ…
Cinder block
-œ…
Windows
need replacement
-œ…
Roof
needs replacement

GENERAL FEATURES OF THE HOUSE --

-šĄ House from
1994
-šĄ
Rooms can be freely converted into a wardrobe / gym / office / themed room
-šĄ Plot with
a mountain view
-šĄ Plot dimensions 30.54 x 49.02 x 29.2 x 37.7 m
-šĄ Plot area
12.52 ares
-šĄ Friendly neighborhood
-šĄ In the same village there is a grocery and general store “ Delikatesy Centrum ” - affordable chain
-šĄ Close to
Kraków
(60 min),
Limanowa
(18 min)
-šĄ Planned central heating

IS THE PLOT EQUIPPED WITH UTILITIES --

-œ”
Driveway to the house
- private gravel road / co-ownership - the new owner will be included in the notarial deed
-œ”
Electricity
- connected to the house, fuse box installed
-œ”
Water
- municipal, connected to the house
-œ”
Gas
- available in the neighborhood, connection possible
-œ”
Sewage
- septic tank, 3 containers

WHERE CAN YOU LIVE -- RUPNIÓW / LIMANOWA COUNTY / LIMANOWA MUNICIPALITY

-œ…

Grocery and general store
DELIKATESY CENTRUM
2 min by car
-œ…
Local grocery store
3 min by car
-œ…

Building materials store / warehouse
3 min by car
-œ…
Primary
school
3 min by car
-œ…
Kindergarten
3 min by car
-œ…
Bus
stop
1 min by car Route Kraków - Limanowa
-œ…
Church
3 min by car

I INVITE YOU TO A PRESENTATION OF THE HOUSE AND TO WATCH THE VIDEO AND VIRTUAL TOUR OF THE PROPERTY
Presentation free of charge
The agency charges a one-time commission at the time of purchase
By using the agency’s services, the buyer can count on a deposit refund guarantee (details arranged individually)
Contact agent
Marzena Wróbel
537 - 765 - 461
::DODATKOWE INFORMACJE |
Dojazd: UTWARDZONA |
Otoczenie: góry |
Ogrzewanie: inne |
Komunikacja publ.: bus |
Odległość do komunikacji publicznej [m]: 650 |
Odl. do sklepu [m]: 1600 |
Odl. do szkoły [m]: 2300 |
Odl. do przedszkola [m]: 2300 |
Odległość od plaży: 650000 |
Okna: stare drewniane |
Instalacje: ELEKTRYCZNA, WODNA, GAZOWA |
Balkon: jest |
Liczba balkonów: 2 |
Wymiary działki [m]: 30,54 x 49,02 x 29,2 x
37,7 |
Zagosp. działki: częściowo zagospodarowana |
Ukształtowanie działki: lekko nachylona |
Kształt działki: trapez |
Rodzaj domu: jednorodzinny |
Stan wybudowania: Stan surowy zamknięty |
Typ elewacji: brak |
Pokrycie dachu: inne |
Powierzchnia użytkowa [m2]: 192,1900 |
Stan budynku: do remontu |
Podpiwniczenie: częściowo podpiwniczony |
Garaż: blaszak |
Ogrodzenie działki: brak |
Rok budowy: 1994 |
Liczba pokoi: 7 |
Liczba sypialni: 7 |
Powierzchnia pokoi [m2]: 143 |
Wystawa okien - pokoje : Wsch, Pd, Pn |
Typ kuchni: oddzielna |
Rodzaj kuchni: oddzielna |
Powierzchnia kuchni [m2]: 13,25 |
Wystawa okien - kuchnia: Pn |
Typ łazienki: razem z wc |
Liczba łazienek: 2 |
Powierzchnia łazienki [m2]: 17,55 |
Wystawa okien - łazienka : Pn |
Liczba przedpokoi: 2 |
Powierzchnia przedpokoi [m2]: 16,75 |
::LINK DO STRONY |
https://sadurscy.pl/offer/BS5-DS-312087
Zobacz Wirtualny Spacer: https://sb360.online/ntgnrv
::KONTAKT DO AGENTA |
Marzena Wróbel |
+ Zobacz kontakt48 537-765-461 |
+ Zobacz kontakt48 537-765-461 |
Zobacz kontaktmarzena@sadurscy.pl
::DANE BIURA |
Oddział BS5, Nowa Huta |
Bracia Sadurscy Dariusz Sadurski |
Os. Kazimierzowskie 36 |
31-844 Kraków |
Zobacz kontakt12 265 10 29
|
Oferta wysłana z systemu Galactica Virgo
Ogrzewanie: INNE

Kontakt do agenta:
Marzena Wróbel
Zobacz kontaktmarzena@sadurscy.pl
+ Zobacz kontakt48 537-765-461
+ Zobacz kontakt48 537-765-461

Oceń ofertę


0


24 wydruk błąd schowek

Ostatnio przeglądane

 

 

 

pobieranie

Pobierz wzór umowy

Umowa przedwstępna sprzedaży

wybierz plik do pobrania
doc pdf

 

 

Deweloperzy

);