Prosimy, odblokuj wyświetlanie reklam w naszym serwisie, są one związane z rynkiem nieruchomości.
To dzięki nim masz darmowy dostęp do naszych treści.

Z pozdrowieniami zespół KRN.pl :)


telefon

wiadomość

mapa

Dom, Kowala

Dom na sprzedaż Kowala (woj. Świętokrzyskie)

Lokalizacja:

Kowala, , ul.

Powierzchnia:

183.96 m2

Cena:

620 000 zł

Dane szczegółowe

lokalizacja:
Świętokrzyskie, Kowala
typ obiektu:
dom na sprzedaż
cena:
620 000 zł
powierzchnia:
183.96 m2
numer ogłoszenia:
PRP-DS-75943
data dodania:
09-02-2026
data modyfikacji:
25-04-2026
jakość wypełnienia oferty:
100%

Szczegóły oferty


REZERWACJA
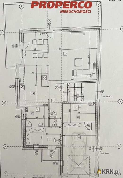
Na sprzedaż 4-pokojowy dom o pow.
183,96 m2,
pow. mieszkalnej
141,96 m2,
zlokalizowany na działce o pow.
1089 m2
w
Kowali, gm. Nowiny.

W skład domu wchodzą:
PARTER
- Wiatrołap 7,84 m2,
- Kuchnia 13,88 m2,
- Salon + jadalnia
35,81 m2,
- Hol 6,94 m2,
- Łazienka 5,66 m2,
- Kotłownia
7,42 m2,
- Garaż 20,81 m2.
PODDASZE
-
Pokój 21,79 m2,
-
Pokój 14,62 m2,
-
Pokój 15,39 m2,
-
Łazienka 10,55 m2,
-
Korytarz 6,71 m2.
Dom wybudowany z pustaka ceramicznego, kryty blachodachówką, ocieplony styropianem i otynkowany. Planowane ogrzewanie: piec na paliwa stałe albo pompa ciepła. Nieruchomość w stanie surowym zamkniętym.

Media:
woda - w chodniku przy działce,
prąd - na działce,
kanalizacja - w ulicy przy działce,
gaz - brak.
Dom usytuowany na
działce o pow.
1089 m2
w kształcie prostokąta, o przybliżonych wymiarach 20 x 60 x 20 x 63 [m]. Bardzo dobra lokalizacja, w pobliżu nowo powstała zabudowa jednorodzinna, bezproblemowy dojazd do Kielc , Bilczy i Morawicy.
Dla nieruchomości sporządzono świadectwo charakterystyki energetycznej.
Wskaźnik rocznego zapotrzebowania na energię użytkową
EU= 84,6 kWh/(m2 -ˆ™rok)
Wskaźnik rocznego zapotrzebowania na energię końcową
EK= 191,6 kWh/(m2 -ˆ™rok)
Wskaźnik rocznego zapotrzebowania na nieodnawialną energię pierwotną
EP= 43,1 kWh/(m2 -ˆ™rok)
Jednostkowa wielkość emisji
CO2
ECO2= 0,00057 t CO2/(m 2 -ˆ™rok).
Udział odnawialnych źródeł energii w rocznym zapotrzebowaniu na energię końcową
UOZE= 99,12 % Dane kontaktowe do agenta: Magdalena Prokopoudi Tel: Zobacz kontakt888-889-594 E-mail:
Zobacz kontaktmagdalena.prokopoudi@properco.pl

-------

For sale: a 4-room house with an area of 183.96 m², living space of 141.96 m², located on a plot of 1089 m² in Kowala, Nowiny municipality.
The house consists of:
GROUND FLOOR

Vestibule 7.84 m²,
Kitchen 13.88 m²,
Living room + dining area 35.81 m²,
Hall 6.94 m²,
Bathroom 5.66 m²,
Boiler room 7.42 m²,
Garage 20.81 m².

ATTIC

Room 21.79 m²,
Room 14.62 m²,
Room 15.39 m²,
Bathroom 10.55 m²,
Corridor 6.71 m².

The house is built of ceramic blocks, covered with metal roofing tiles, insulated with styrofoam, and plastered. Planned heating: solid fuel boiler or heat pump. The property is in a closed shell state.
Utilities:

Water: in the sidewalk near the plot,
Electricity: on the plot,
Sewerage: in the street next to the plot,
Gas: not available.

The house is situated on a rectangular plot of 1089 m², with approximate dimensions of 20 x 60 x 20 x 63 meters. Excellent location, with newly built single-family houses nearby, and easy access to Kielce, Bilcza, and Morawica.
An energy performance certificate has been prepared for the property.

Annual energy demand indicator (EU) = 84.6 kWh/(m²-ˆ™year)
Annual final energy demand indicator (EK) = 191.6 kWh/(m²-ˆ™year)
Annual non-renewable primary energy demand indicator (EP) = 43.1 kWh/(m²-ˆ™year)
CO2 emission rate ECO2 = 0.00057 t CO2/(m²-ˆ™year)
Share of renewable energy sources in the annual final energy demand (UOZE) = 99.12%

Contact details for the agent:
Magdalena Prokopoudi
Phone: + Zobacz kontakt48 888-889-594.
Email:
Zobacz kontaktmagdalena.prokopoudi@properco.pl --------------------------
Biuro Nieruchomości PROPERCO sp. z o.o. sp.k. współpracuje z doświadczonymi specjalistami finansowymi, oferującymi sprawdzenie zdolności kredytowej oraz przedstawienie oferty finansowania nieruchomości /// Informacje dotyczące opisu nieruchomości podane są przez właściciela, mają charakter wyłącznie informacyjny i mogą podlegać aktualizacji. Oferta dotycząca nieruchomości nie stanowi oferty określonej w art. 66 i następnych KC. ///Nasze usługi świadczymy w oparciu o umowę pośrednictwa, która gwarantuje Państwu opiekę naszego doradcy przez cały okres trwania współpracy. Za wykonaną usługę pobieramy wynagrodzenie zgodnie z warunkami uzgodnionymi w zawartej umowie. /// The real estate agency PROPERCO sp. z o.o. sp.k. collaborates with experienced financial specialists, offering creditworthiness assessment and presenting property financing offers. Information regarding property descriptions is provided by the owner, is purely informational, and may be subject to updates. The property offer does not constitute a specific offer as defined in Art. 66 and subsequent articles of the Civil Code. Our services are provided based on a brokerage agreement, ensuring you the care of our advisor throughout the entire collaboration period. We charge a fee for the services rendered according to the terms agreed upon in the concluded agreement.
Zapraszamy do siedziby naszego biura w Kielcach przy ul. Koziej 3a/1. /// We invite you to visit our office located in Kielce at 3a/1 Kozia Street.
Dane adresowe /// Address details:
PROPERCO sp. z o.o. sp.k ul. Kozia 3a/1 25-514 Kielce tel. kom: + Zobacz kontakt48 692-024-827 https://www.properco.pl/

Ogrzewanie: INNE
Materiał: Cegła

Kontakt do agenta:
Magdalena Prokopoudi
Zobacz kontaktmagdalena.prokopoudi@properco.pl
+ Zobacz kontakt48 41 310 90 71
+ Zobacz kontakt48 888 889 594

Oceń ofertę


9.99


1931 wydruk błąd schowek

Ostatnio przeglądane

 

 

 

pobieranie

Pobierz wzór umowy

Umowa przedwstępna sprzedaży

wybierz plik do pobrania
doc pdf

 

 

Deweloperzy

);