Prosimy, odblokuj wyświetlanie reklam w naszym serwisie, są one związane z rynkiem nieruchomości.
To dzięki nim masz darmowy dostęp do naszych treści.

Z pozdrowieniami zespół KRN.pl :)


telefon

wiadomość

mapa

Dom, Wołowice

Dom na sprzedaż Wołowice (woj. Małopolskie)

Lokalizacja:

Wołowice, , ul.

Powierzchnia:

180.00 m2

Cena:

1 390 000 zł

Dane szczegółowe

lokalizacja:
Małopolskie, Wołowice
typ obiektu:
dom na sprzedaż
cena:
1 390 000 zł
powierzchnia:
180.00 m2
media:
woda
numer ogłoszenia:
DNX-DS-30472-29
data dodania:
10-01-2026
data modyfikacji:
10-01-2026
jakość wypełnienia oferty:
100%

Szczegóły oferty



OFERTA NOWEGO DOMU DO SPRZEDAŻY W WOŁOWICACH !
Do sprzedaży dom WOLNOSTOJĄCY do wejścia
w gminie Czernichów.
Nieruchomość stale pielęgnowana, starannie zagospodarowana - dom gotowy wprost do zamieszkania jedynie z nakładami na indywidualną aranżację wg upodobań nabywców.

Położony na 13-arowej działce, wymiarami zbliżonej do kwadratu. Rozpoczęta budowa w 2011 roku, zamieszkały w 2017 r.
Projekt domu nowoczesnego, zwracający uwagę dużymi przeszkleniami, ciekawie zaprojektowanym podziałem i wykończeniem elewacji. Efektowny podcień wejściowy łączy w sobie funkcję praktyczną i dekoracyjną.
Duże otwarcia na taras pięknie doświetlają strefę dzienną oraz naturalnie łączą ją z ogrodem.
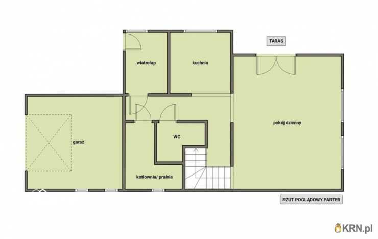
Na parterze poprzez hol mamy wejście do salonu, WC, jasnej kuchni, kotłowni z pralnią, garażu zamykanego na bramę automatyczną Wiśniowskiego. /MOŻLIWOŚĆ UZYSKANIA KOLEJNEGO POPKOJU/.
Półotwarta kuchnia z oknem
w kształcie litery
"U" umeblowana
i całkowicie wyposażona w sprzęt AGD.
Drewniane
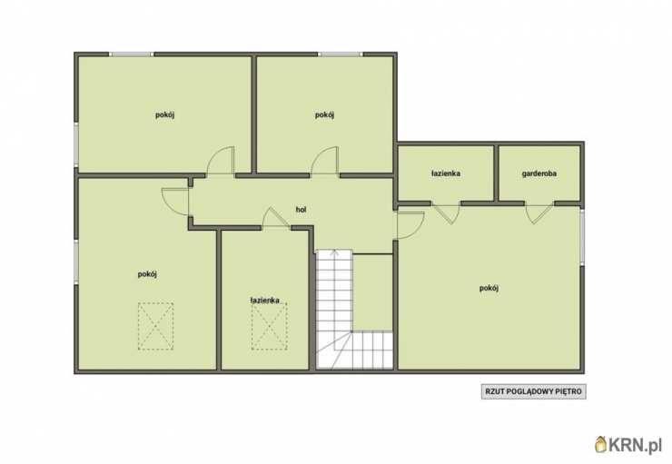
schody prowadzą na poddasze, gdzie mieści się strefa nocna domu
- CZTERY ustawne i jasne sypialnie, komfortowa łazienka z wanną i prysznicem + jedna łazienka do częściowego wykończenia z wejściem ze sypialni i garderobą.
Nad całością stryszek.
Standard wykończenia z najwyższej jakości materiałów
- Ściany konstrukcyjne z pustaka
Porotherm
grubości 25 cm
- Ścianki działowe z pustaka Porotherm grubości 12 cm.
- Na całej powierzchni parteru ogrzewanie podłogowe + łazienka górna
- Dachówka ceramiczna
- Okna drewniane, pakiet trzyszybowy
- Elewacja pokryta tynkiem akrylowym
- Dojście i dojazd do domu z kostki brukowej
- Instalacja alarmowa i przeciwpożarowa
- Rolety zewnętrzne elektryczne w całym domu
- Kominek w salonie z płaszczem wodnym /w gminie jeszcze nie ma zakazu palenia w kominku/
W domu zamontowana instalacja alarmowa i przeciwpożarowa.
MEDIA:
-gaz, woda z wodociągu miejskiego, prąd, kanalizacja miejska, światłowód

Działka płaska z dużą ilością nasadzeń. Brama wjazdowa na pilota.
Okolica - zaliczana do miejscowości rekreacyjnej, pozwoli na aktywne spędzanie wolnego czasu. Spokojna lokalizacja i bliskość Krakowa

PRZYBLIŻONE ODLEGŁOŚCI:

18 km - Rynek Główny w Krakowie
150 m - przystanek autobusowy
700 m - szkoła podstawowa
600 m - przedszkole
200 m - sklep spożywczy
8 km - obwodnica
9 km - granice Krakowa
5 km - ośrodek sportu i rekreacji w Piekarach
7 km - zalew w Kryspinowie
10 km - lotnisko w Balicach
Zainteresowane osoby prosimy o kontakt z podanym agentem w celu umówienia prezentacji.

DO OFERTY JEST DOŁĄCZONY FILM -ZAPRASZAMY NA WIRTULNĄ WIZYTĘ !
ZADZWOŃ: Zobacz kontakt501 187 897
Czekamy na telefon od Ciebie.
::DODATKOWE INFORMACJE
Prąd: jest Gaz: jest Woda: tak - miejska Dojazd: asfalt Ogrzewanie: C.O. GAZOWE Kanalizacja: miejska Komunikacja publ.: bus, autobus podmiejski Okna: PCV Tarasy: taras Rodzaj domu: wolnostojący Stan wybudowania: Pod klucz Podst. materiał budowlany: pustak ceramiczny Pokrycie dachu: dachówka Pozwolenie na użytkowanie: tak Powierzchnia użytkowa [m2]: 137,3300 Podpiwniczenie: nie Garaż: w bryle Ogrodzenie działki: ogrodzona Rok budowy: 2017 Liczba pokoi: 5 Typ kuchni: oddzielna widna Rodzaj kuchni: z zabudową kuchenną Liczba łazienek: 2
::KONTAKT DO AGENTA
Patryk Brzeżawski Zobacz kontakt506 963 113 Zobacz kontaktpatryk@danax.pl
Pośrednik odpowiedzialny zawodowo za wykonanie umowy pośrednictwa: Bartłomiej Krosta (licencja nr: 6585)
--------------------------
Od 1993 r. pośredniczymy w transakcjach na krakowskim rynku nieruchomości.
Pomożemy Ci jak przyjacielowi.

Ogrzewanie: Gazowe
Materiał: Pustak

Kontakt do agenta:
Patryk Brzeżawski
Zobacz kontaktpatryk@danax.pl
Zobacz kontakt506 963 113

Oceń ofertę


0


452 wydruk błąd schowek

Ostatnio przeglądane

 

 

 

pobieranie

Pobierz wzór umowy

Umowa przedwstępna sprzedaży

wybierz plik do pobrania
doc pdf

 

 

Deweloperzy

);