Prosimy, odblokuj wyświetlanie reklam w naszym serwisie, są one związane z rynkiem nieruchomości.
To dzięki nim masz darmowy dostęp do naszych treści.

Z pozdrowieniami zespół KRN.pl :)


telefon

wiadomość

mapa

Dom, Szyce

Dom na sprzedaż Szyce (woj. Małopolskie)

Lokalizacja:

Szyce, , ul.

Powierzchnia:

177.22 m2

Cena:

1 099 000 zł

Dane szczegółowe

lokalizacja:
Małopolskie, Szyce
typ obiektu:
dom na sprzedaż
cena:
1 099 000 zł
powierzchnia:
177.22 m2
numer ogłoszenia:
PAC-DS-9030-2
data dodania:
13-12-2025
data modyfikacji:
13-12-2025
jakość wypełnienia oferty:
100%

Szczegóły oferty


OFERTA BEZPOŚREDNIO OD DEWELOPERA - 0 % PROWIZJI - BRAK DODATKOWYCH KOSZTÓW!
Do sprzedania
dom jednorodzinny
w zabudowie bliźniaczej
(formalnie lokal mieszkalny)
położony w miejscowości
Szyce, gm. Wielka Wieś.
Budynek o pow. użytkowej
116,11m2, pow. podłóg 128,62m2, pow. całkowitej 177,22m2
usytuowany na ogrodzonej działce o pow.
2,8 ara
.
Dojazd do nieruchomości drogą gminną asfaltową, następnie utwardzoną drogą prywatną.

Dom z
trzema sypialniami, dwoma balkonami, dwiema łazienkami
oraz
garażem ulokowanym w bryle budynku .
Dom wybudowany wg. projektu firmy Archon
"Dom w Perłówce" .

Media:
prąd, woda, gaz, kanalizacja.

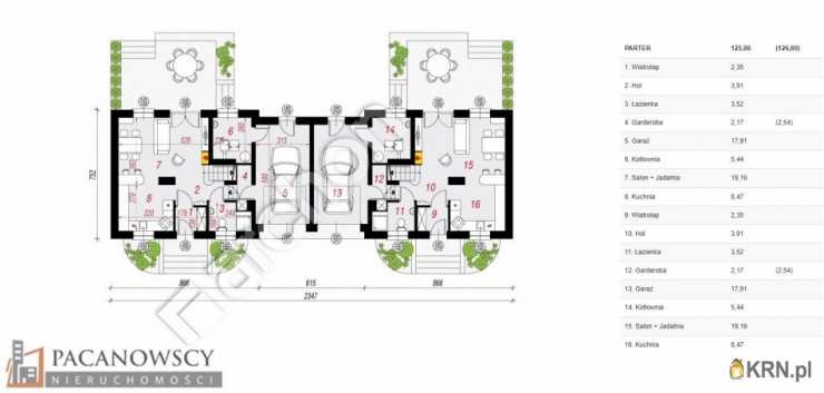
Rozkład pomieszczeń:
Parter:
wiatrołap (2,35m2), hol (3,91m2), łazienka (3,52m2), garderoba (2,17), garaż (17,91m2), kotłownia (5,44m2), salon + jadalnia (19,16m20, kuchnia (8,47m2)
- razem 62,93m2
Poddasze:
hol (3,36m2), pom. gospodarcze (1,87m2), pokój (12,27m2), pokój (11,99), łazienka (5,66m2), pokój (13,59m2), schody (4,44m2) -
razem 53,18m2

Dom wybudowany w technologii tradycyjnej, sprzedawany w stanie deweloperskim obejmującym:

ławy fundamentowe żelbetonowe z betonu
klasy C16/B20,

ściany zewnętrzne 20cm porothen 25,

tynki wewnętrzne gipsowe,

płyty gipsowo kartonowe o zwiększonej ognioodporności F grubość 12,5mm na ruszcie metalowym w łazienkach dodatkowo o zwiększone wodoodporności FH2,

ogrzewanie podłogowe na całości lokalu,

grzejnik łazienkowy elektryczny,
wyłaz schodowy,

wyłaz dachowy, pokrycie dachu dachówka betonowa,

więźba dachowa folia paroprzepuszczalna,

wyłaz dachowy
na dach,

poddasze - wełna mineralna 30 cm,
okna PCV,
parapety zewnętrzne z blachy powlekanej,
rynny z tworzywa sztucznego,

tynki zewnętrzne,

wylewki cementowe,

ogrodzenie budynku -
ogrodzenie panele,

drzwi zewnętrzne,

miejsce postojowe i dojście do budynku w kruszywie, za dopłatą możliwość w kostce,

doprowadzenie instalacji pod uzdatniasz
(osprzęt po stronie kupującego,

doprowadzenie instalacji pod klimatyzację
(osprzęt po stronie kupującego),
drzwi garażowe (bez napędu),
rozprowadzenie mediów
wew. i zew. gaz, prąd, wod-kan, co. gaz,
zamontowane zbiorniki na deszczówkę (pompa i wąż po stronie kupującego),

kocioł gazowy kondensacyjny dwu-funkcyjny ze sterownikiem.

LOKALIZACJA
Nieruchomość położona w sąsiedztwie zabudowy jednorodzinnej oraz działek niezabudowanych.
W promieniu 1km:
Urząd Gminy, paczkomat, bankomat, piekarnia, fizjoterapia, sklep, plac zabaw.
Najbliższy przystanek MPK zaledwie 300m , komunikację dodatkowo usprawnia biegnąca nieopodal droga krajowa 94. Zespół szkolno-przedszkolny 2km.
Ewidencyjna granica Krakowa 2km.

Planowany odbiór: II KW 2026r.

Cena: 1.099.000 zł brutto. Kupujący nie płaci 2% podatku PCC.
Serdecznie polecamy i zachęcamy do bezpłatnej prezentacji !!! Więcej podobnych ofert na naszej stronie www.pacanowscy.pl
Kontakt do opiekuna oferty: Zobacz kontakt500-702-305 Michał Sibiga
Pośrednik odpowiedzialny zawodowo za wykonanie umowy pośrednictwa: Mieszko Pacanowski (licencja nr: 21215)
Oferta wysłana z systemu Galactica Virgo
Ogrzewanie: Gazowe
Materiał: Pustak

Kontakt do agenta:
Michał Sibiga
Zobacz kontaktmichal@pacanowscy.pl
Zobacz kontakt500-702-305

Oceń ofertę


0


22 wydruk błąd schowek

Ostatnio przeglądane

 

 

 

pobieranie

Pobierz wzór umowy

Umowa przedwstępna sprzedaży

wybierz plik do pobrania
doc pdf

 

 

Deweloperzy

);