Prosimy, odblokuj wyświetlanie reklam w naszym serwisie, są one związane z rynkiem nieruchomości.
To dzięki nim masz darmowy dostęp do naszych treści.

Z pozdrowieniami zespół KRN.pl :)


telefon

wiadomość

mapa

Dom, Krzyszkowice

Dom na sprzedaż Krzyszkowice (woj. Małopolskie)

Lokalizacja:

Krzyszkowice, , ul.

Powierzchnia:

173.29 m2

Cena:

750 000 zł

Dane szczegółowe

lokalizacja:
Małopolskie, Krzyszkowice
typ obiektu:
dom na sprzedaż
cena:
750 000 zł
powierzchnia:
173.29 m2
media:
woda
numer ogłoszenia:
DNX-DS-30861-9
data dodania:
25-04-2026
data modyfikacji:
25-04-2026
jakość wypełnienia oferty:
100%

Szczegóły oferty


Krzyszkowice - nowy, komfortowy, 5 pokojowy dom w zabudowie bliźniaczej z garażem, położony na 2,64 arowej zagospodarowanej działce.

Oferta na wyłączność - dostępna tylko w naszym biurze!
Bez podatku PCC oraz prowizji dla Kupującego!
Kontakt wyłącznie przez agenta.

Ostatni segment, do szybkiego objęcia.
Dom położony w
spokojnym miejscu ,
na wzgórzu , z widokiem na okolicę.
Funkcjonalny projekt
-
przestronne wnętrza, 4 sypialnie, garaż, prywatny ogródek, ekologiczne ogrzewanie pompą ciepła, a to wszystko w cenie 2 pokojowego mieszkania w Krakowie, czynią tą ofertę godną uwagi.
Inwestycja ukończona, budynek odebrany, uruchomiona pompa ciepła.
Dom wybudowany w technologii tradycyjnej z materiałów ceramicznych, ocieplony styropianem (20 cm). Dachówka cementowa Braas, ocieplenie poddasza wełną mineralną.
Okna PCV trzyszybowe. Ogrzewanie
pompą ciepła , w całym domu
ogrzewanie podłogowe .
Przygotowana instalacja pod fotowoltaikę.
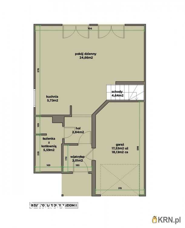
Powierzchnia całkowita 173,29 m2, użytkowa 121,29 m2 (w tym garaż 17,53 m2).
Rozkład pomieszcz
eń:

parter : przestronny salon z aneksem kuchennym (30,39 m2), łazienka (5,59 m2), komunikacja, wiatrołap, garaż (17,53 m2)
piętro : 4 niezależne sypialnie (11,66, 11,30, 10,88, 9,94 m2), łazienka (5,21 m2), komunikacja
Dodatkowo
poddasze
z funkcją przechowywania.
Działka 2,64 ara, płaska, zagospodarowana. Słoneczny ogródek od strony południowej. Podjazd z kostki brukowej. Teren inwestycji ogrodzony. Istnieje możliwość rozmowy o dokupieniu sąsiedniej działki.
Dobry dojazd do Krakowa (20 km) i Myślenic (7 km), zarówno samochodem jak i komunikacją miejską.
W pobliżu szkoła, przedszkola, żłobki, sklepy, kościół, przychodnia, plac zabaw, fryzjer.
Zdjęcia oraz film przedstawiają drugi segment (lustrzane odbicie) na etapie wykańczania. Wirtualny spacer na podstawie wizualizacji wykończenia domu.
Zadzwoń! Opowiem o szczegółach, zaproszę na prezentację i doradzę jak przyjacielowi!

::DODATKOWE INFORMACJE
Prąd: jest Gaz: brak Woda: tak - miejska Dojazd: asfalt Otoczenie: zabudowa jednorodzinna Ogrzewanie: pompa ciepła Kanalizacja: miejska Komunikacja publ.: autobus Okna: PCV Instalacje: nowe Balkon: jest Zagosp. działki: zagospodarowana Ukształtowanie działki: płaska Kształt działki: prostokąt Rodzaj domu: bliźniak Stan wybudowania: Stan deweloperski Podst. materiał budowlany: ceramika Pokrycie dachu: dachówka cementowa Pozwolenie na użytkowanie: tak Powierzchnia użytkowa [m2]: 121,2900 Stan budynku: do wykończenia Podpiwniczenie: nie Garaż: w bryle Ogrodzenie działki: częściowo ogrodzona Rok budowy: 2025 Liczba pokoi: 5 Liczba sypialni: 4 Powierzchnia pokoi [m2]: 24,66/11,66/11,30/10,88/9,94 Typ kuchni: jasna z oknem Rodzaj kuchni: otwarta na salon Powierzchnia kuchni [m2]: 5,73 Liczba łazienek: 2
Zobacz Wirtualny Spacer: https://tours.3destate.pl/43c63534-f45e-4e1b-a792-d8d39f65e24e/blizniak-krzyszkowice_1.3d
::KONTAKT DO AGENTA
Krystyna Krzesińska Zobacz kontakt797 646 332 Zobacz kontaktkrysia@danax.pl
Pośrednik odpowiedzialny zawodowo za wykonanie umowy pośrednictwa: Bartłomiej Krosta (licencja nr: 6585)
--------------------------
Od 1993 r. pośredniczymy w transakcjach na krakowskim rynku nieruchomości.
Pomożemy Ci jak przyjacielowi.

Ogrzewanie: POMPA CIEPLA
Materiał: CERAMIKA

Kontakt do agenta:
Krystyna Krzesińska
Zobacz kontaktkrysia@danax.pl
Zobacz kontakt797 646 332

Oceń ofertę


0


27 wydruk błąd schowek

Ostatnio przeglądane

 

 

 

pobieranie

Pobierz wzór umowy

Umowa przedwstępna sprzedaży

wybierz plik do pobrania
doc pdf

 

 

Deweloperzy

);