Prosimy, odblokuj wyświetlanie reklam w naszym serwisie, są one związane z rynkiem nieruchomości.
To dzięki nim masz darmowy dostęp do naszych treści.

Z pozdrowieniami zespół KRN.pl :)


telefon

wiadomość

mapa

Dom, Kończyce

Dom na sprzedaż Kończyce (woj. Małopolskie)

Lokalizacja:

Kończyce, , ul.

Powierzchnia:

156.68 m2

Cena:

850 000 zł

Dane szczegółowe

lokalizacja:
Małopolskie, Kończyce
typ obiektu:
dom na sprzedaż
cena:
850 000 zł
powierzchnia:
156.68 m2
numer ogłoszenia:
PAC-DS-9449-1
data dodania:
02-04-2026
data modyfikacji:
02-04-2026
jakość wypełnienia oferty:
100%

Szczegóły oferty


Do sprzedania
wolnostojący dom
jednorodzinny
zlokalizowany w miejscowości
Kończyce , gm.
Michałowice
.
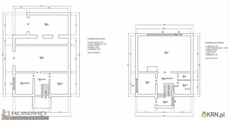
Budynek o pow. całkowitej
312,30m2,
pow. użytkowej 156,68m2,
usytuowany na działce o pow.
5,91 ara.
Działka lekko nachylona w kształcie nieregularnym .
Nieruchomość położona w I linii zabudowy bezpośrednio przy drodze powiatowej asfaltowej.
Dom
do gruntownego remontu,
z przynależnym garażem ulokowanym w bryle budynku.
Media:
prąd, woda, gaz, szambo.
Dom wybudowany w latach 60-tych w technologii tradycyjnej. Rozkład kondygnacji:
Piwnica (85,85m2):
garaż (32,60m2), garaż (27,30m2), hall + schody (7,65m2), pom. gospodarcze (9,05m2), kotłownia (9,25m2)
Parter (73,50m2):
wiatrołap (2,9m2), hall + klatka schodowa (10,65m2), kuchnia (9,05m2), pokój dzienny (44,05m2), WC (2,10m2), łazienka (4,75m2)
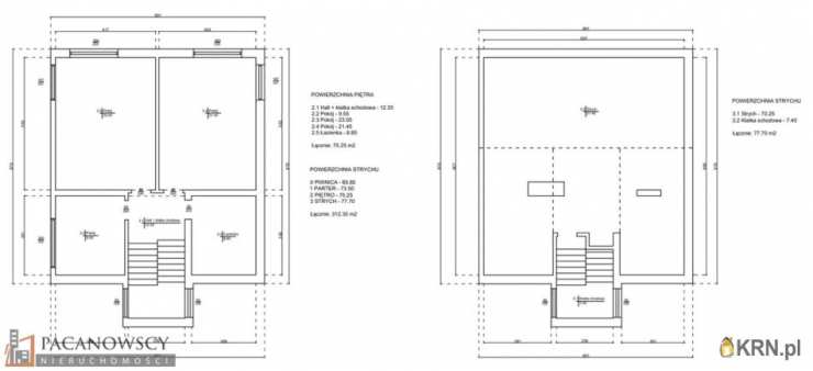
Piętro (75,25m2):
hall + klatka schodowa (12,35m2), pokój (9,55m2), pokój (23,05m2), pokój (21,45m2), łazienka (8,85m2)
Strych (77,70m2)
LOKALIZACJA
Nieruchomość położona w cichej i spokojnej części miejscowości w sąsiedztwie luźnej zabudowy domów jednorodzinnych.
Bardzo dobra komunikacja z Krakowem -
przystanek MPK 300m.
W promieniu 1,5 km: szkoła, przedszkole, sklep, biblioteka, kościół. W odległości około 3 km ewidencyjna granica Krakowa.
Cena: 850.000 zł.

Serdecznie polecamy i zachęcamy do bezpłatnej prezentacji !!! Więcej podobnych ofert na naszej stronie www.pacanowscy.pl
Kontakt do opiekuna oferty: Zobacz kontakt500-813-213 Tomasz Turek

Pośrednik odpowiedzialny zawodowo za wykonanie umowy pośrednictwa: Mieszko Pacanowski (licencja nr: 21215)
Oferta wysłana z systemu Galactica Virgo
Ogrzewanie: PIEC WEGLOWY
Materiał: Pustak

Kontakt do agenta:
Tomasz Turek
Zobacz kontakttomasz@pacanowscy.pl
Zobacz kontakt500-813-213
Zobacz kontakt500-813-213

Oceń ofertę


0


389 wydruk błąd schowek

Ostatnio przeglądane

 

 

 

pobieranie

Pobierz wzór umowy

Umowa przedwstępna sprzedaży

wybierz plik do pobrania
doc pdf

 

 

Deweloperzy

);